
















- 3 bd
- 2.5 ba
- 1,837 sqft
5006 Erwin Ct, Elgin, SC 29045
- Single-Family
- $144.26/sqft
- 88 days on Jome
New Homes for Sale Near 5006 Erwin Ct, Elgin, SC 29045
About this Home
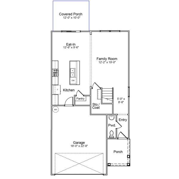
This Highland plan features three bedrooms and two-and one-half bathrooms! Enter from the covered front porch to see luxury vinyl plank flooring throughout the main level. A powder room is situated off the foyer hallway, which leads to the great room. The kitchen overlooks the great room and eat-in area, and features a stainless-steel gas cooktop, birch quill cabinetry with crown, pendant lighting, quartz countertops, and spacious pantry! A covered back porch completes the main level and includes an extended slab, perfect for enjoying your outdoor space. The primary suite is located on the second level and houses a boxed ceiling, dual sinks, a large tile shower, linen closet, and sizable walk-in closet. The laundry room is situated just off the primary suite and includes cabinetry for added storage. Pass through the large loft on the second level to find two secondary bedrooms, each with walk-in closets, and a full bathroom. This Highland plan is one you don't want to miss—come make it yours at Ellington!
May also be listed on the Mungo Homes website
Information last verified by Jome: Sunday at 5:34 AM (December 21, 2025)
Home details
- Property status:
- Sold
- Size:
- 1,837 sqft
- Stories:
- 2
- Beds:
- 3
- Baths:
- 2
- Half baths:
- 1
- Garage spaces:
- 2
Construction details
- Builder Name:
- Mungo Homes
- Completion Date:
- January, 2026
Home features & finishes
- Garage/Parking:
- Garage
- Rooms:
- Primary Bedroom Upstairs

Community details
Ellington
by Mungo Homes, Elgin, SC
- 33 homes
- 18 plans
- 1,148 - 3,033 sqft
View Ellington details
More homes in Ellington
Floor plans in Ellington
About the builder - Mungo Homes
Neighborhood
Home address
Schools in Kershaw County School District
GreatSchools’ Summary Rating calculation is based on 4 of the school’s themed ratings, including test scores, student/academic progress, college readiness, and equity. This information should only be used as a reference. Jome is not affiliated with GreatSchools and does not endorse or guarantee this information. Please reach out to schools directly to verify all information and enrollment eligibility. Data provided by GreatSchools.org © 2025
Places of interest
Getting around
Air quality
Noise level
A Soundscore™ rating is a number between 50 (very loud) and 100 (very quiet) that tells you how loud a location is due to environmental noise.
Natural hazards risk
Climate hazards can impact homes and communities, with risks varying by location. These scores reflect the potential impact of natural disasters and climate-related risks on Kershaw County
Provided by FEMA
Financials
Nearby communities in Elgin
Homes in Elgin by Mungo Homes
Recently added communities in this area
Other Builders in Elgin, SC
Nearby sold homes
New homes in nearby cities
More New Homes in Elgin, SC
- Jome
- New homes search
- South Carolina
- Kershaw County
- Elgin
- Ellington
- 5006 Erwin Ct, Elgin, SC 29045
















































































