




- 5 bd
- 3 ba
- 2,578 sqft
3015 Hallsdale Dr, Elgin, SC 29045
- Single-Family
- $131.89/sqft
- 198 days on Jome
New Homes for Sale Near 3015 Hallsdale Dr, Elgin, SC 29045
About this Home
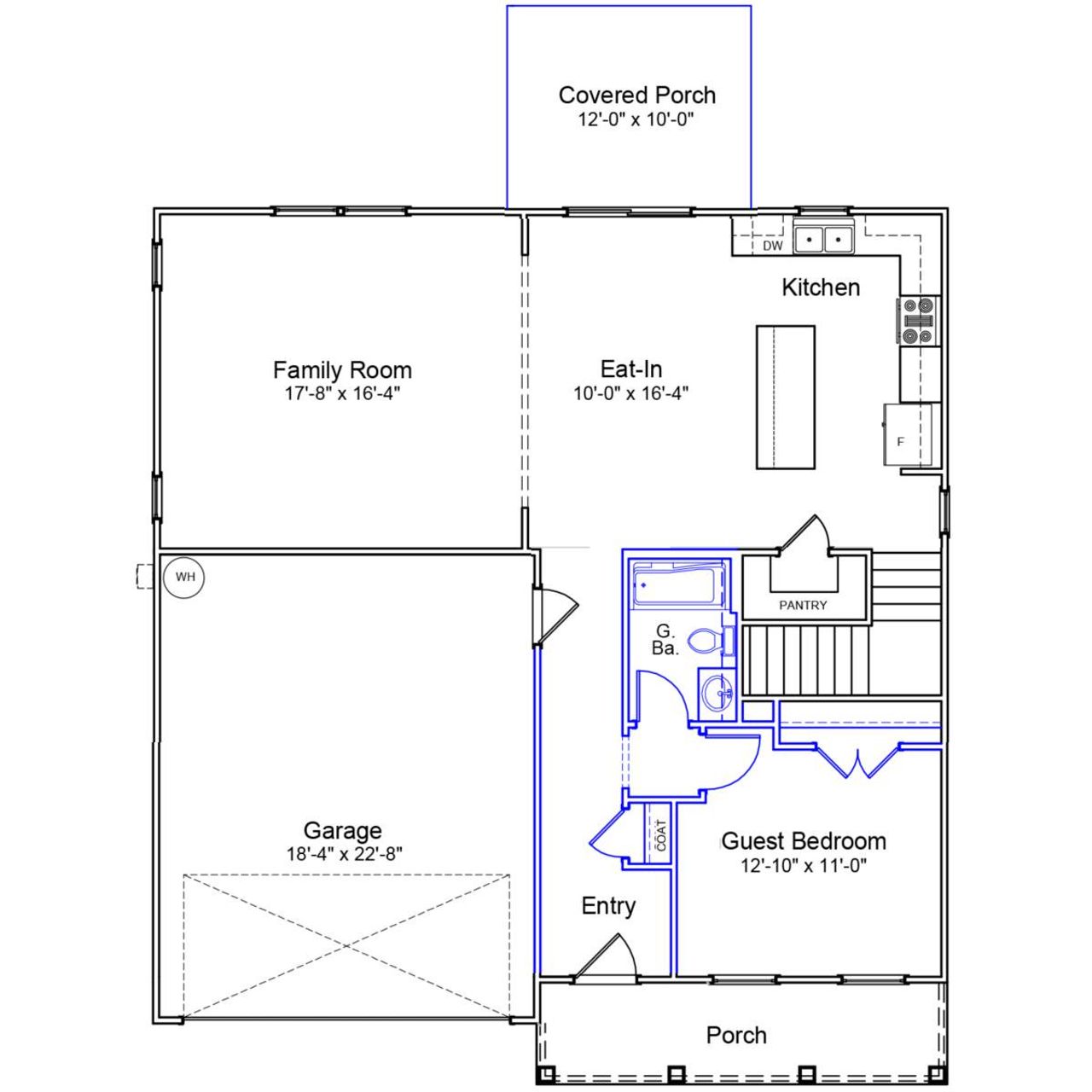
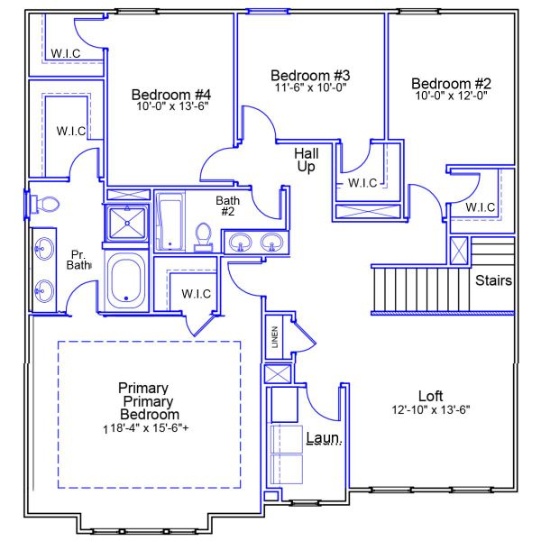
This Russell plan features five bedrooms and three full bathrooms with a guest suite on the main level! Enter the home from the front porch to find soft beige luxury vinyl plank flooring throughout the main living areas. A guest suite with a full bathroom is situated right off the foyer. The kitchen houses stainless steel appliances with an electric cooktop, pendant lighting over a large center island, stone gray cabinetry with crown and hardware, quartz countertops, and tile backsplash. The kitchen overlooks the eat-in area and great room, and a covered back porch with an extended slab completes the main level. Finished hardwood treads take you to the second level of the home, where a spacious loft awaits. The laundry room is conveniently located on this level and includes cabinets galore. The primary suite offers a boxed ceiling, two large walk-in closets, dual sinks, and a separate tub and shower. Three secondary bedrooms all feature walk-in closets and share a bathroom with dual sinks. Come make this Russell plan your home at Ellington!
May also be listed on the Mungo Homes website
Information last verified by Jome: Tuesday at 5:42 AM (February 24, 2026)
Home details
- Property status:
- Sold
- Size:
- 2,578 sqft
- Stories:
- 2
- Beds:
- 5
- Baths:
- 3
- Garage spaces:
- 2
Construction details
- Builder Name:
- Mungo Homes
- Completion Date:
- February, 2026
Home features & finishes
- Garage/Parking:
- Garage
- Rooms:
- Primary Bedroom Upstairs

Community details
Ellington
by Mungo Homes, Elgin, SC
- 18 homes
- 18 plans
- 1,148 - 3,033 sqft
View Ellington details
More homes in Ellington
- Home at address 2070 County Line Trl, Elgin, SC 29045

$307,534
Under construction- 5 bd
- 3 ba
- 2,166 sqft
2070 County Line Trl, Elgin, SC 29045
- Home at address 6026 Edgemont Ct, Elgin, SC 29045

$317,218
Under construction- 5 bd
- 3 ba
- 2,175 sqft
6026 Edgemont Ct, Elgin, SC 29045
- Home at address 1130 Crescent Corner Dr, Elgin, SC 29045

$358,632
Under construction- 5 bd
- 2.5 ba
- 3,033 sqft
1130 Crescent Corner Dr, Elgin, SC 29045
- Home at address 1137 Crescent Corner Dr, Elgin, SC 29045

$371,944
Under construction- 6 bd
- 3.5 ba
- 2,985 sqft
1137 Crescent Corner Dr, Elgin, SC 29045
Floor plans in Ellington
- View details for Rutherford - Genesis Value Collection

Rutherford - Genesis Value Collection
$293,000+- 5 bd
- 3.5 ba
- 2,621 sqft
- View details for Turner - Genesis Value Collection

Turner - Genesis Value Collection
$310,000+- 5 bd
- 2.5 ba
- 2,985 sqft
About the builder - Mungo Homes
Neighborhood
Home address
Schools in Kershaw County School District
GreatSchools’ Summary Rating calculation is based on 4 of the school’s themed ratings, including test scores, student/academic progress, college readiness, and equity. This information should only be used as a reference. Jome is not affiliated with GreatSchools and does not endorse or guarantee this information. Please reach out to schools directly to verify all information and enrollment eligibility. Data provided by GreatSchools.org © 2025
Places of interest
Getting around
Air quality
Noise level
A Soundscore™ rating is a number between 50 (very loud) and 100 (very quiet) that tells you how loud a location is due to environmental noise.
Financials
Nearby communities in Elgin
Homes in Elgin by Mungo Homes
Recently added communities in this area
Other Builders in Elgin, SC
Nearby sold homes
New homes in nearby cities
More New Homes in Elgin, SC
- Jome
- New homes search
- South Carolina
- Kershaw County
- Elgin
- Ellington
- 3015 Hallsdale Dr, Elgin, SC 29045


































































