




Book your tour. Save an average of $18,473. We'll handle the rest.
- Confirmed tours
- Get matched & compare top deals
- Expert help, no pressure
- No added fees
Estimated value based on Jome data, T&C apply
Why tour with Jome?
- No pressure toursTour at your own pace with no sales pressure
- Expert guidanceGet insights from our home buying experts
- Exclusive accessSee homes and deals not available elsewhere
Jome is featured in
- Single-Family
- Ready by March 2026
- $137.41/sqft
- 74 days on Jome
Home description
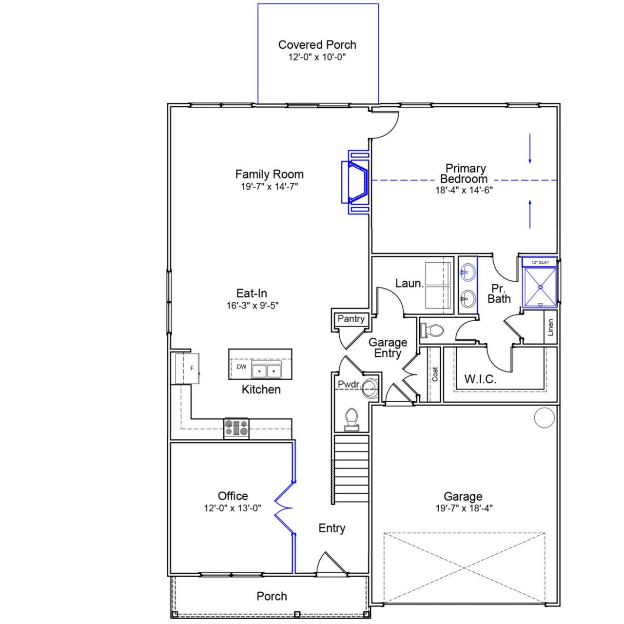
Welcome to the Pickens at Ellington! With the primary suite on the main level and three bedrooms and a loft upstairs, this home is one you don't want to miss. Enter from the front porch to find luxury vinyl plank flooring throughout the main living areas. A formal office with French doors is situated right off the entry. The kitchen is equipped a stainless steel gas cooktop, white cabinetry with crown and hardware, Dallas white granite countertops, and overlooks the eat-in area and great room. Anchored by a gas fireplace, the great room leads way to the covered back porch, perfect for enjoying your backyard that backs up to wetlands. The primary suite features an impressive vaulted ceiling, spacious walk-in closet, dual sinks, and a tile shower with bench. The laundry room is conveniently located on the main level. Upstairs, three secondary bedrooms all feature walk-in closets and share a full bathroom with dual sinks. A large loft includes an added closet for even more storage, and with even more floored storage upstairs, this Pickens is a gem you don't want to miss at Ellington.
May also be listed on the Mungo Homes website
Information last verified by Jome: Today at 5:58 AM (January 19, 2026)
Book your tour. Save an average of $18,473. We'll handle the rest.
We collect exclusive builder offers, book your tours, and support you from start to housewarming.
- Confirmed tours
- Get matched & compare top deals
- Expert help, no pressure
- No added fees
Estimated value based on Jome data, T&C apply
Home details
- Property status:
- Under construction
- Size:
- 2,429 sqft
- Stories:
- 2
- Beds:
- 4
- Baths:
- 2
- Half baths:
- 1
- Garage spaces:
- 2
Construction details
- Builder Name:
- Mungo Homes
- Completion Date:
- March, 2026
Home features & finishes
- Garage/Parking:
- Garage
- Rooms:
- Primary Bedroom Downstairs

Get a consultation with our New Homes Expert
- See how your home builds wealth
- Plan your home-buying roadmap
- Discover hidden gems

Community details
Ellington
by Mungo Homes, Elgin, SC
- 29 homes
- 18 plans
- 1,148 - 3,033 sqft
View Ellington details
More homes in Ellington
- Home at address 3051 Hallsdale Dr, Elgin, SC 29045

Guilford
$269,550
- 4 bd
- 2.5 ba
- 1,772 sqft
3051 Hallsdale Dr, Elgin, SC 29045
- Home at address 5026 Erwin Ct, Elgin, SC 29045

Evans
$271,105
- 4 bd
- 2.5 ba
- 1,709 sqft
5026 Erwin Ct, Elgin, SC 29045
- Home at address 3060 Hallsdale Dr, Elgin, SC 29045

Guilford
$277,132
- 4 bd
- 2.5 ba
- 1,806 sqft
3060 Hallsdale Dr, Elgin, SC 29045
- Home at address 3065 Hallsdale Dr, Elgin, SC 29045

Meriwether
$300,000
- 4 bd
- 3 ba
- 2,223 sqft
3065 Hallsdale Dr, Elgin, SC 29045
- Home at address 3008 Hallsdale Dr, Elgin, SC 29045

Pickens
$300,000
- 4 bd
- 2.5 ba
- 2,429 sqft
3008 Hallsdale Dr, Elgin, SC 29045
- Home at address 2064 County Line Trl, Elgin, SC 29045

Monroe
$305,000
- 4 bd
- 2.5 ba
- 2,392 sqft
2064 County Line Trl, Elgin, SC 29045
Floor plans in Ellington

Guilford - Genesis Value Collection
- 4 bd
- 2.5 ba
- 1,772 sqft

Lancaster - Genesis Value Collection
- 4 bd
- 2.5 ba
- 2,152 sqft

McDowell - Genesis Value Collection
- 4 bd
- 2.5 ba
- 2,218 sqft

Monroe - Genesis Value Collection
- 4 bd
- 2.5 ba
- 2,392 sqft

Pickens - Genesis Value Collection
- 4 bd
- 2.5 ba
- 2,431 sqft

Rutherford - Genesis Value Collection
- 5 bd
- 3.5 ba
- 2,621 sqft

Telfair - Genesis Value Collection
- 4 bd
- 2.5 ba
- 2,771 sqft

Turner - Genesis Value Collection
- 5 bd
- 2.5 ba
- 2,985 sqft
About the builder - Mungo Homes
Neighborhood
Home address
Schools in Richland School District 2
GreatSchools’ Summary Rating calculation is based on 4 of the school’s themed ratings, including test scores, student/academic progress, college readiness, and equity. This information should only be used as a reference. Jome is not affiliated with GreatSchools and does not endorse or guarantee this information. Please reach out to schools directly to verify all information and enrollment eligibility. Data provided by GreatSchools.org © 2025
Places of interest
Getting around
Air quality
Noise level
A Soundscore™ rating is a number between 50 (very loud) and 100 (very quiet) that tells you how loud a location is due to environmental noise.

Considering this home?
Our expert will guide your tour, in-person or virtual
Need more information?
Text or call (888) 486-2818
Financials
Estimated monthly payment
Let us help you find your dream home
How many bedrooms are you looking for?
Similar homes nearby
Recently added communities in this area
Nearby communities in Elgin
New homes in nearby cities
More New Homes in Elgin, SC
- Jome
- New homes search
- South Carolina
- Richland County
- Elgin
- Ellington
- 1141 Crescent Corner Dr, Elgin, SC 29045


























