








Book your tour. Save an average of $18,473. We'll handle the rest.
We collect exclusive builder offers, book your tours, and support you from start to housewarming.
- Confirmed tours
- Get matched & compare top deals
- Expert help, no pressure
- No added fees
Estimated value based on Jome data, T&C apply























Why tour with Jome?
- No pressure toursTour at your own pace with no sales pressure
- Expert guidanceGet insights from our home buying experts
- Exclusive accessSee homes and deals not available elsewhere
Jome is featured in
- Single-Family
- Ready by July 2026
- $148.72/sqft
- 3 days on Jome
Home description
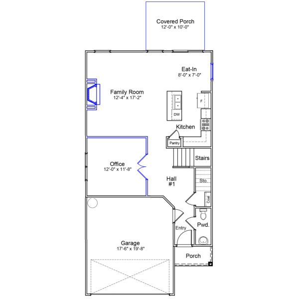
This Kershaw plan is situated on a corner homesite and backs up to wetlands! A welcoming front porch on the elevation greets you into the home, where oyster oak luxury vinyl plank flooring flows throughout the main living areas. A powder room is located right off the entry, and a formal office with French doors provides the perfect place to work from home or utilize as a flex space. A gas fireplace anchors the great room, and the eat-in area and kitchen blend seamlessly with an open-concept layout. The kitchen is equipped with a gas cooktop, white cabinetry with crown and hardware, white tile backsplash, and luna pearl granite countertops. A covered porch with a patio extension in the backyard is the ideal space to enjoy outdoor living. Upstairs, a loft adjoins the second level together, and two bedrooms with large walk-in closets share a bathroom with dual sinks. The primary suite features a vaulted ceiling, dual sinks, spacious walk-in closet, and tile shower with a bench seat. The laundry room is conveniently on the second level and includes cabinetry for added storage. Come experience the Kershaw today at Ellington!
May also be listed on the Mungo Homes website
Information last verified by Jome: Yesterday at 6:05 AM (April 27, 2026)
Book your tour. Save an average of $18,473. We'll handle the rest.
We collect exclusive builder offers, book your tours, and support you from start to housewarming.
- Confirmed tours
- Get matched & compare top deals
- Expert help, no pressure
- No added fees
Estimated value based on Jome data, T&C apply
Home details
- Property status:
- Under construction
- Size:
- 1,962 sqft
- Stories:
- 2
- Beds:
- 3
- Baths:
- 2
- Half baths:
- 1
- Garage spaces:
- 2
Construction details
- Builder Name:
- Mungo Homes
- Completion Date:
- July, 2026
Home features & finishes
- Garage/Parking:
- Garage
- Rooms:
- Primary Bedroom Upstairs

Get a consultation with our New Homes Expert
- See how your home builds wealth
- Plan your home-buying roadmap
- Discover hidden gems

Community details
Ellington
by Mungo Homes, Elgin, SC
- 27 homes
- 18 plans
- 1,148 - 3,033 sqft
View Ellington details
More homes in Ellington
- Home at address 1112 Crescent Corner Dr, Elgin, SC 29045

Bartow
$256,707
- 3 bd
- 2.5 ba
- 1,476 sqft
1112 Crescent Corner Dr, Elgin, SC 29045
- Home at address 1107 Crescent Corner Dr, Elgin, SC 29045

Dawson
$258,215
- 3 bd
- 2.5 ba
- 1,617 sqft
1107 Crescent Corner Dr, Elgin, SC 29045
- Home at address 4026 Monetta Dr, Elgin, SC 29045

Dawson
$260,000
- 3 bd
- 2.5 ba
- 1,617 sqft
4026 Monetta Dr, Elgin, SC 29045
- Home at address 6010 Edgemont Ct, Elgin, SC 29045

Brunswick
$264,163
- 3 bd
- 2 ba
- 1,548 sqft
6010 Edgemont Ct, Elgin, SC 29045
- Home at address 4028 Monetta Dr, Elgin, SC 29045

Evans
$265,000
- 4 bd
- 2.5 ba
- 1,709 sqft
4028 Monetta Dr, Elgin, SC 29045
- Home at address 1110 Crescent Corner Dr, Elgin, SC 29045

Evans
$273,354
- 4 bd
- 2.5 ba
- 1,735 sqft
1110 Crescent Corner Dr, Elgin, SC 29045
Floor plans in Ellington
- View details for Baker - Genesis Value Collection

Baker - Genesis Value Collection
$208,000+- 3 bd
- 2 ba
- 1,148 sqft
- View details for Bartow - Genesis Value Collection

Bartow - Genesis Value Collection
$227,000+- 3 bd
- 2.5 ba
- 1,476 sqft
About the builder - Mungo Homes
Neighborhood
Home address
Schools in Richland School District 2
GreatSchools’ Summary Rating calculation is based on 4 of the school’s themed ratings, including test scores, student/academic progress, college readiness, and equity. This information should only be used as a reference. Jome is not affiliated with GreatSchools and does not endorse or guarantee this information. Please reach out to schools directly to verify all information and enrollment eligibility. Data provided by GreatSchools.org © 2025
Places of interest
Getting around
Air quality
Noise level
A Soundscore™ rating is a number between 50 (very loud) and 100 (very quiet) that tells you how loud a location is due to environmental noise.

Considering this home?
Our expert will guide your tour, in-person or virtual
Need more information?
Text or call (888) 545-5198
Financials
Estimated monthly payment
Let us help you find your dream home
How many bedrooms are you looking for?
Similar homes nearby
Recently added communities in this area
Nearby communities in Elgin
New homes in nearby cities
More New Homes in Elgin, SC
- Jome
- New homes search
- South Carolina
- Richland County
- Elgin
- Ellington
- 1108 Crescent Corner Dr, Elgin, SC 29045































