



Book your tour. Save an average of $18,473. We'll handle the rest.
We collect exclusive builder offers, book your tours, and support you from start to housewarming.
- Confirmed tours
- Get matched & compare top deals
- Expert help, no pressure
- No added fees
Estimated value based on Jome data, T&C apply

Why tour with Jome?
- No pressure toursTour at your own pace with no sales pressure
- Expert guidanceGet insights from our home buying experts
- Exclusive accessSee homes and deals not available elsewhere
Jome is featured in
- Single-Family
- Ready by July 2026
- $125.26/sqft
- 4 days on Jome
Home description
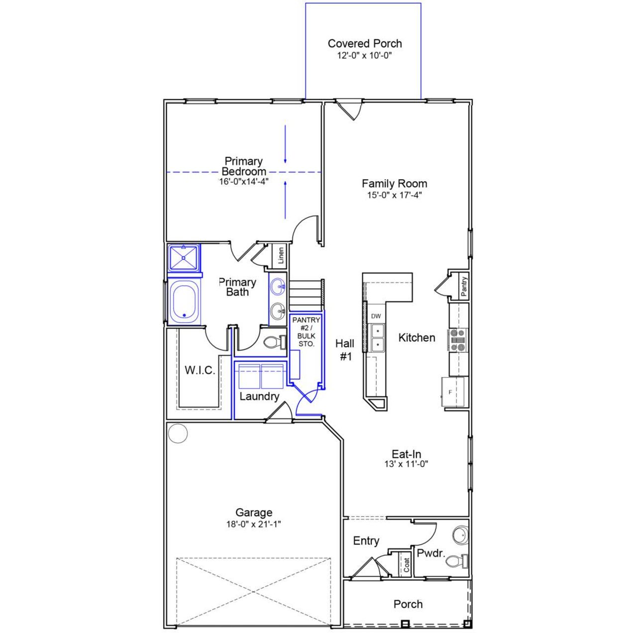
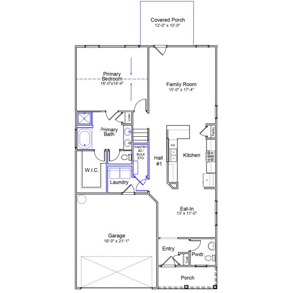
The Rutherford is a stunning two-story home featuring five bedrooms and three-and-a-half bathrooms, thoughtfully designed for comfortable everyday living and effortless entertaining. Just beyond the entry, you’ll find a charming eat-in area that flows into the beautifully appointed kitchen, complete with Miami Vena quartz countertops, Birch Quill cabinets with crown molding, stainless steel appliances, a gas range, microwave, tile backsplash, and elegant pendant lighting. The great room opens seamlessly to the kitchen, creating an inviting space for gathering with family and friends.
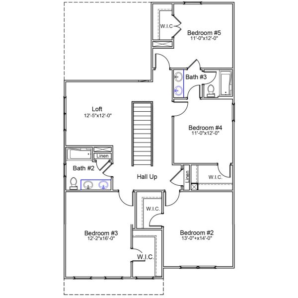
The primary suite is conveniently located on the main floor and showcases a vaulted ceiling, a large tiled shower, a separate garden soaking tub, a dual-sink quartz vanity, and a spacious walk-in closet. Upstairs, attractive wood stair treads lead to four secondary bedrooms—each with generously sized walk-in closets—along with two full bathrooms featuring dual sinks and quartz countertops. A versatile loft offers the perfect space for a game room, media area, or home office.
Step outside to enjoy a covered porch with a ceiling fan, an extended patio, and a fully sodded yard with a sprinkler system—ideal for relaxing or entertaining outdoors.
Don’t miss the opportunity to make this beautiful home yours!Don’t miss the opportunity to make this beautiful home yours!
May also be listed on the Mungo Homes website
Information last verified by Jome: Today at 5:53 AM (April 28, 2026)
Book your tour. Save an average of $18,473. We'll handle the rest.
We collect exclusive builder offers, book your tours, and support you from start to housewarming.
- Confirmed tours
- Get matched & compare top deals
- Expert help, no pressure
- No added fees
Estimated value based on Jome data, T&C apply
Home details
- Property status:
- Under construction
- Size:
- 2,658 sqft
- Stories:
- 2
- Beds:
- 5
- Baths:
- 3
- Half baths:
- 1
- Garage spaces:
- 2
Construction details
- Builder Name:
- Mungo Homes
- Completion Date:
- July, 2026
Home features & finishes
- Garage/Parking:
- Garage
- Rooms:
- Primary Bedroom Downstairs

Get a consultation with our New Homes Expert
- See how your home builds wealth
- Plan your home-buying roadmap
- Discover hidden gems

Community details
Ellington
by Mungo Homes, Elgin, SC
- 25 homes
- 18 plans
- 1,148 - 3,033 sqft
View Ellington details
More homes in Ellington
- Home at address 2070 County Line Trl, Elgin, SC 29045

Lancaster
$310,000
- 5 bd
- 3 ba
- 2,166 sqft
2070 County Line Trl, Elgin, SC 29045
- Home at address 1123 Crescent Corner Dr, Elgin, SC 29045

McDowell
$317,582
- 5 bd
- 2.5 ba
- 2,236 sqft
1123 Crescent Corner Dr, Elgin, SC 29045
- Home at address 6026 Edgemont Ct, Elgin, SC 29045

Lancaster
$320,218
- 5 bd
- 3 ba
- 2,175 sqft
6026 Edgemont Ct, Elgin, SC 29045
- Home at address 1130 Crescent Corner Dr, Elgin, SC 29045

Turner
$361,632
- 5 bd
- 2.5 ba
- 3,033 sqft
1130 Crescent Corner Dr, Elgin, SC 29045
- Home at address 1137 Crescent Corner Dr, Elgin, SC 29045

Turner
$374,944
- 6 bd
- 3.5 ba
- 2,985 sqft
1137 Crescent Corner Dr, Elgin, SC 29045
Floor plans in Ellington
- View details for Rutherford - Genesis Value Collection

Rutherford - Genesis Value Collection
$293,000+- 5 bd
- 3.5 ba
- 2,621 sqft
- View details for Turner - Genesis Value Collection

Turner - Genesis Value Collection
$310,000+- 5 bd
- 2.5 ba
- 2,985 sqft
About the builder - Mungo Homes
Neighborhood
Home address
Schools in Richland School District 2
GreatSchools’ Summary Rating calculation is based on 4 of the school’s themed ratings, including test scores, student/academic progress, college readiness, and equity. This information should only be used as a reference. Jome is not affiliated with GreatSchools and does not endorse or guarantee this information. Please reach out to schools directly to verify all information and enrollment eligibility. Data provided by GreatSchools.org © 2025
Places of interest
Getting around
Air quality
Noise level
A Soundscore™ rating is a number between 50 (very loud) and 100 (very quiet) that tells you how loud a location is due to environmental noise.

Considering this home?
Our expert will guide your tour, in-person or virtual
Need more information?
Text or call (888) 545-5198
Financials
Estimated monthly payment
Let us help you find your dream home
How many bedrooms are you looking for?
Similar homes nearby
Recently added communities in this area
Nearby communities in Elgin
New homes in nearby cities
More New Homes in Elgin, SC
- Jome
- New homes search
- South Carolina
- Richland County
- Elgin
- Ellington
- 2076 County Line Trl, Elgin, SC 29045


























