



Book your tour. Save an average of $18,473. We'll handle the rest.
We collect exclusive builder offers, book your tours, and support you from start to housewarming.
- Confirmed tours
- Get matched & compare top deals
- Expert help, no pressure
- No added fees
Estimated value based on Jome data, T&C apply

Why tour with Jome?
- No pressure toursTour at your own pace with no sales pressure
- Expert guidanceGet insights from our home buying experts
- Exclusive accessSee homes and deals not available elsewhere
Jome is featured in
- Single-Family
- Ready by June 2026
- $150.01/sqft
- 46 days on Jome
Home description
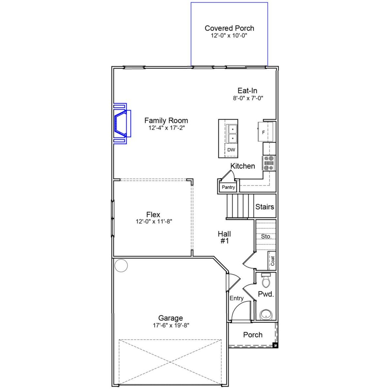
Step into the Kershaw plan, a place you’ll truly love to call home. This thoughtfully designed home features three bedrooms, two-and-one-half bathrooms, and a versatile loft space perfect for relaxing, working, or play. As you enter, beautiful luxury vinyl plank flooring in a soft beige tone guides you down the main hallway and into the heart of the home. The open-concept layout seamlessly connects the kitchen, eat-in area, dining or flex space, and great room, creating the perfect setting for both everyday living and effortless entertaining. The great room is warm and welcoming, highlighted by a charming fireplace with a decorative mantel, an ideal spot for cozy evenings and perfectly positioned for a mounted television above. Just steps away, the inviting kitchen features stylish gray cabinetry, a spacious granite island with pendant lighting, stainless steel GE appliances with a gas range, a pantry, and a bright eat-in area. A wood treaded staircase leads upstairs, where you will find a loft space along with two secondary bedrooms, each offering walk-in closets. The convenient upstairs laundry room and a hall bathroom adds everyday practicality. The spacious primary suite is a peaceful retreat, complete with room for a king-size bed, a soaking garden tub, a separate tiled shower, dual vanities, and a large walk-in closet. Situated on a desirable homesite that backs up to a natural buffer, this home makes outdoor living just as enjoyable. Relax year-round on the covered patio with a ceiling fan or entertain on the extended patio slab. The fully sodded yard with an irrigation system makes maintaining your outdoor space simple and beautiful. Come experience why the Kershaw is one of the most popular floorplans in Ellington.
May also be listed on the Mungo Homes website
Information last verified by Jome: Saturday at 5:57 AM (April 25, 2026)
Book your tour. Save an average of $18,473. We'll handle the rest.
We collect exclusive builder offers, book your tours, and support you from start to housewarming.
- Confirmed tours
- Get matched & compare top deals
- Expert help, no pressure
- No added fees
Estimated value based on Jome data, T&C apply
Home details
- Property status:
- Under construction
- Size:
- 1,962 sqft
- Stories:
- 2
- Beds:
- 3
- Baths:
- 2
- Half baths:
- 1
- Garage spaces:
- 2
Construction details
- Builder Name:
- Mungo Homes
- Completion Date:
- June, 2026
Home features & finishes
- Garage/Parking:
- Garage
- Rooms:
- Primary Bedroom Upstairs

Get a consultation with our New Homes Expert
- See how your home builds wealth
- Plan your home-buying roadmap
- Discover hidden gems

Community details
Ellington
by Mungo Homes, Elgin, SC
- 27 homes
- 18 plans
- 1,148 - 3,033 sqft
View Ellington details
More homes in Ellington
- Home at address 1112 Crescent Corner Dr, Elgin, SC 29045

Bartow
$256,707
- 3 bd
- 2.5 ba
- 1,476 sqft
1112 Crescent Corner Dr, Elgin, SC 29045
- Home at address 1107 Crescent Corner Dr, Elgin, SC 29045

Dawson
$258,215
- 3 bd
- 2.5 ba
- 1,617 sqft
1107 Crescent Corner Dr, Elgin, SC 29045
- Home at address 4026 Monetta Dr, Elgin, SC 29045

Dawson
$260,000
- 3 bd
- 2.5 ba
- 1,617 sqft
4026 Monetta Dr, Elgin, SC 29045
- Home at address 6010 Edgemont Ct, Elgin, SC 29045

Brunswick
$264,163
- 3 bd
- 2 ba
- 1,548 sqft
6010 Edgemont Ct, Elgin, SC 29045
- Home at address 4028 Monetta Dr, Elgin, SC 29045

Evans
$265,000
- 4 bd
- 2.5 ba
- 1,709 sqft
4028 Monetta Dr, Elgin, SC 29045
- Home at address 1110 Crescent Corner Dr, Elgin, SC 29045

Evans
$273,354
- 4 bd
- 2.5 ba
- 1,735 sqft
1110 Crescent Corner Dr, Elgin, SC 29045
Floor plans in Ellington
- View details for Baker - Genesis Value Collection

Baker - Genesis Value Collection
$208,000+- 3 bd
- 2 ba
- 1,148 sqft
- View details for Bartow - Genesis Value Collection

Bartow - Genesis Value Collection
$227,000+- 3 bd
- 2.5 ba
- 1,476 sqft
About the builder - Mungo Homes
Neighborhood
Home address
Schools in Richland School District 2
GreatSchools’ Summary Rating calculation is based on 4 of the school’s themed ratings, including test scores, student/academic progress, college readiness, and equity. This information should only be used as a reference. Jome is not affiliated with GreatSchools and does not endorse or guarantee this information. Please reach out to schools directly to verify all information and enrollment eligibility. Data provided by GreatSchools.org © 2025
Places of interest
Getting around
Air quality
Noise level
A Soundscore™ rating is a number between 50 (very loud) and 100 (very quiet) that tells you how loud a location is due to environmental noise.

Considering this home?
Our expert will guide your tour, in-person or virtual
Need more information?
Text or call (888) 545-5198
Financials
Estimated monthly payment
Let us help you find your dream home
How many bedrooms are you looking for?
Similar homes nearby
Recently added communities in this area
Nearby communities in Elgin
New homes in nearby cities
More New Homes in Elgin, SC
- Jome
- New homes search
- South Carolina
- Richland County
- Elgin
- Ellington
- 5012 Erwin Ct, Elgin, SC 29045































