



- 3 bd
- 2 ba
- 1,548 sqft
2068 County Line Trl, Elgin, SC 29045
- Single-Family
- $173.13/sqft
- 148 days on Jome
New Homes for Sale Near 2068 County Line Trl, Elgin, SC 29045
About this Home
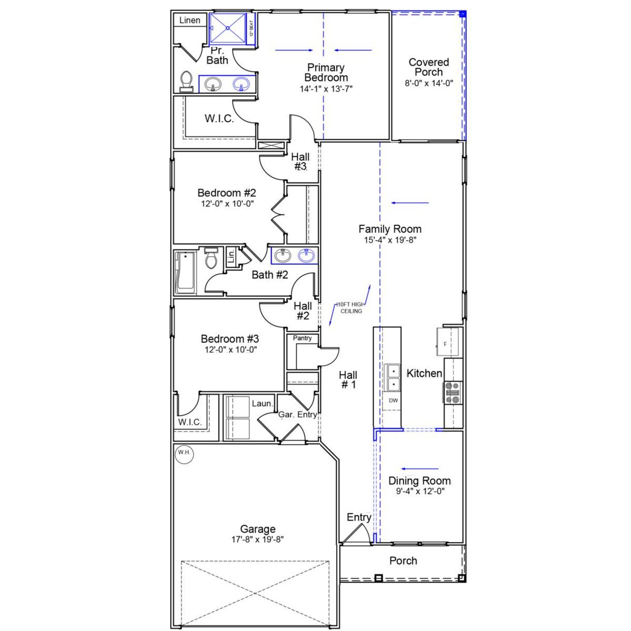
The Brunswick is a one-level home with three bedrooms and two-and-one-half bathrooms! A dining room is situated off the entry, leading to the kitchen. The kitchen features a stainless-steel electric cooktop, white cabinetry with crown and hardware, Iberian sunset granite countertops, and tile backsplash. The large center island overlooks the great room, and vaulted ceilings flow throughout the main living areas with luxury vinyl plank flooring. The primary suite also features a vaulted ceiling, a spacious walk-in closet, and dual sinks. Two secondary bedrooms share a Jack-and-Jill bathroom with dual sinks! A covered back porch completes this home, and the yard includes a sprinkler system! This Brunswick is situated on a homesite that overlooks a tree line. Come experience this plan at Ellington today!
May also be listed on the Mungo Homes website
Information last verified by Jome: Friday at 5:59 AM (March 13, 2026)
Home details
- Property status:
- Sold
- Size:
- 1,548 sqft
- Stories:
- 1
- Beds:
- 3
- Baths:
- 2
- Garage spaces:
- 2
Construction details
- Builder Name:
- Mungo Homes
- Completion Date:
- April, 2026
Home features & finishes
- Garage/Parking:
- Garage
- Rooms:
- Primary Bedroom On MainPrimary Bedroom Downstairs

Community details
Ellington
by Mungo Homes, Elgin, SC
- 22 homes
- 18 plans
- 1,148 - 3,033 sqft
View Ellington details
More homes in Ellington
- Home at address 5008 Erwin Ct, Elgin, SC 29045

$244,111
Under construction- 3 bd
- 2.5 ba
- 1,476 sqft
5008 Erwin Ct, Elgin, SC 29045
- Home at address 4022 Monetta Dr, Elgin, SC 29045

$244,366
Under construction- 3 bd
- 2.5 ba
- 1,476 sqft
4022 Monetta Dr, Elgin, SC 29045
- Home at address 4026 Monetta Dr, Elgin, SC 29045

$258,462
Under construction- 3 bd
- 2.5 ba
- 1,617 sqft
4026 Monetta Dr, Elgin, SC 29045
- Home at address 4028 Monetta Dr, Elgin, SC 29045

$263,974
Under construction- 4 bd
- 2.5 ba
- 1,709 sqft
4028 Monetta Dr, Elgin, SC 29045
- Home at address 6028 Edgemont Ct, Elgin, SC 29045

$265,000
Under construction- 3 bd
- 2 ba
- 1,548 sqft
6028 Edgemont Ct, Elgin, SC 29045
- Home at address 6002 Edgemont Ct, Elgin, SC 29045

$266,000
Under construction- 3 bd
- 2 ba
- 1,548 sqft
6002 Edgemont Ct, Elgin, SC 29045
Floor plans in Ellington
- View details for Baker - Genesis Value Collection

Baker - Genesis Value Collection
$206,000+- 3 bd
- 2 ba
- 1,148 sqft
- View details for Bartow - Genesis Value Collection

Bartow - Genesis Value Collection
$225,000+- 3 bd
- 2.5 ba
- 1,476 sqft
About the builder - Mungo Homes
Neighborhood
Home address
Schools in Richland School District 2
GreatSchools’ Summary Rating calculation is based on 4 of the school’s themed ratings, including test scores, student/academic progress, college readiness, and equity. This information should only be used as a reference. Jome is not affiliated with GreatSchools and does not endorse or guarantee this information. Please reach out to schools directly to verify all information and enrollment eligibility. Data provided by GreatSchools.org © 2025
Places of interest
Getting around
Air quality
Noise level
A Soundscore™ rating is a number between 50 (very loud) and 100 (very quiet) that tells you how loud a location is due to environmental noise.
Financials
Nearby communities in Elgin
Homes in Elgin by Mungo Homes
Recently added communities in this area
Other Builders in Elgin, SC
Nearby sold homes
New homes in nearby cities
More New Homes in Elgin, SC
- Jome
- New homes search
- South Carolina
- Richland County
- Elgin
- Ellington
- 2068 County Line Trl, Elgin, SC 29045






































































