








Book your tour. Save an average of $18,473. We'll handle the rest.
We collect exclusive builder offers, book your tours, and support you from start to housewarming.
- Confirmed tours
- Get matched & compare top deals
- Expert help, no pressure
- No added fees
Estimated value based on Jome data, T&C apply








Why tour with Jome?
- No pressure toursTour at your own pace with no sales pressure
- Expert guidanceGet insights from our home buying experts
- Exclusive accessSee homes and deals not available elsewhere
Jome is featured in
- Single-Family
- Ready by June 2026
- $143.12/sqft
- 51 days on Jome
Home description
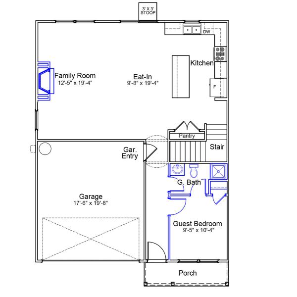
Situated on a homesite that looks out to a tree line, this Lancaster plan features five bedrooms and three full bathrooms. Enter from the front porch to find oyster oak luxury vinyl plank flooring throughout the entire main level. A guest suite is located just off the entry! The kitchen is equipped with a stainless steel gas cooktop, white cabinetry with crown and hardware, luna pearl granite countertops, white tile backsplash, and pendant lighting over the large center island. The kitchen overlooks the eat-in area and great room, which is anchored by a gas fireplace. Enjoy an extended patio slab on the back porch as the perfect place to enjoy your outdoor living space. Hardwood treads on the staircase lead to the second level of the home, where three secondary bedrooms share a bathroom with dual sinks. The laundry room is conveniently located upstairs with cabinets galore! The primary suite features a separate tub and shower, dual sinks, private water closet, and spacious walk-in closet. Complete with full-yard irrigation, this Lancaster could be yours at Ellington!
May also be listed on the Mungo Homes website
Information last verified by Jome: Yesterday at 6:08 AM (April 11, 2026)
Book your tour. Save an average of $18,473. We'll handle the rest.
We collect exclusive builder offers, book your tours, and support you from start to housewarming.
- Confirmed tours
- Get matched & compare top deals
- Expert help, no pressure
- No added fees
Estimated value based on Jome data, T&C apply
Home details
- Property status:
- Under construction
- Size:
- 2,166 sqft
- Stories:
- 2
- Beds:
- 5
- Baths:
- 3
- Garage spaces:
- 2
Construction details
- Builder Name:
- Mungo Homes
- Completion Date:
- June, 2026
Home features & finishes
- Garage/Parking:
- Garage
- Rooms:
- Primary Bedroom Upstairs

Get a consultation with our New Homes Expert
- See how your home builds wealth
- Plan your home-buying roadmap
- Discover hidden gems

Community details
Ellington
by Mungo Homes, Elgin, SC
- 23 homes
- 18 plans
- 1,148 - 3,033 sqft
View Ellington details
More homes in Ellington
- Home at address 1123 Crescent Corner Dr, Elgin, SC 29045

McDowell
$317,582
- 5 bd
- 2.5 ba
- 2,236 sqft
1123 Crescent Corner Dr, Elgin, SC 29045
- Home at address 6026 Edgemont Ct, Elgin, SC 29045

Lancaster
$320,218
- 5 bd
- 3 ba
- 2,175 sqft
6026 Edgemont Ct, Elgin, SC 29045
- Home at address 1130 Crescent Corner Dr, Elgin, SC 29045

Turner
$361,632
- 5 bd
- 2.5 ba
- 3,033 sqft
1130 Crescent Corner Dr, Elgin, SC 29045
- Home at address 1137 Crescent Corner Dr, Elgin, SC 29045

Turner
$374,944
- 6 bd
- 3.5 ba
- 2,985 sqft
1137 Crescent Corner Dr, Elgin, SC 29045
Floor plans in Ellington
- View details for Rutherford - Genesis Value Collection

Rutherford - Genesis Value Collection
$293,000+- 5 bd
- 3.5 ba
- 2,621 sqft
- View details for Turner - Genesis Value Collection

Turner - Genesis Value Collection
$310,000+- 5 bd
- 2.5 ba
- 2,985 sqft
About the builder - Mungo Homes
Neighborhood
Home address
Schools in Richland School District 2
GreatSchools’ Summary Rating calculation is based on 4 of the school’s themed ratings, including test scores, student/academic progress, college readiness, and equity. This information should only be used as a reference. Jome is not affiliated with GreatSchools and does not endorse or guarantee this information. Please reach out to schools directly to verify all information and enrollment eligibility. Data provided by GreatSchools.org © 2025
Places of interest
Getting around
Air quality
Noise level
A Soundscore™ rating is a number between 50 (very loud) and 100 (very quiet) that tells you how loud a location is due to environmental noise.

Considering this home?
Our expert will guide your tour, in-person or virtual
Need more information?
Text or call (888) 545-5198
Financials
Estimated monthly payment
Let us help you find your dream home
How many bedrooms are you looking for?
Similar homes nearby
Recently added communities in this area
Nearby communities in Elgin
New homes in nearby cities
More New Homes in Elgin, SC
- Jome
- New homes search
- South Carolina
- Richland County
- Elgin
- Ellington
- 2070 County Line Trl, Elgin, SC 29045



























