








Book your tour. Save an average of $18,473. We'll handle the rest.
We collect exclusive builder offers, book your tours, and support you from start to housewarming.
- Confirmed tours
- Get matched & compare top deals
- Expert help, no pressure
- No added fees
Estimated value based on Jome data, T&C apply






Why tour with Jome?
- No pressure toursTour at your own pace with no sales pressure
- Expert guidanceGet insights from our home buying experts
- Exclusive accessSee homes and deals not available elsewhere
Jome is featured in
- Single-Family
- Ready by July 2026
- $154.31/sqft
- 2 days on Jome
Home description
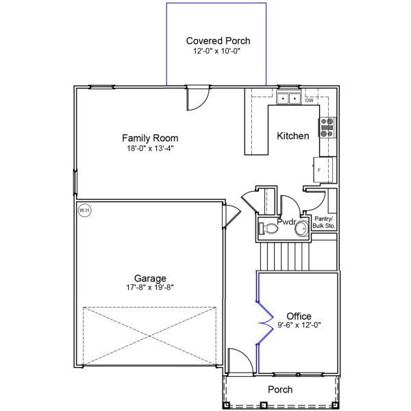
The Guildford has entryway of this four bedroom, two-and-one-half bathroom home opens to an office with french doors. Just past it, the kitchen with a nice tile backsplash, white cabinets, and granite countertops that leads to a walk-in pantry and the great room. This home features a beautiful covered back porch to the great room. Upstairs, a laundry room and a full bathroom with two sinkss are conveniently located near the three spare bedrooms. The primary bedroom with vaulted ceiling, is connected to the primary bathroom and walk-in closet. Primary bathroom features a beautiful garden tub and seperate shower. Come check out the Guildford Plan in Ellington!
May also be listed on the Mungo Homes website
Information last verified by Jome: Yesterday at 6:04 AM (April 8, 2026)
Book your tour. Save an average of $18,473. We'll handle the rest.
We collect exclusive builder offers, book your tours, and support you from start to housewarming.
- Confirmed tours
- Get matched & compare top deals
- Expert help, no pressure
- No added fees
Estimated value based on Jome data, T&C apply
Home details
- Property status:
- Under construction
- Size:
- 1,806 sqft
- Stories:
- 2
- Beds:
- 4
- Baths:
- 2
- Half baths:
- 1
- Garage spaces:
- 2
Construction details
- Builder Name:
- Mungo Homes
- Completion Date:
- July, 2026
Home features & finishes
- Garage/Parking:
- Garage
- Rooms:
- Primary Bedroom Upstairs

Get a consultation with our New Homes Expert
- See how your home builds wealth
- Plan your home-buying roadmap
- Discover hidden gems

Community details
Ellington
by Mungo Homes, Elgin, SC
- 22 homes
- 18 plans
- 1,148 - 3,033 sqft
View Ellington details
More homes in Ellington
- Home at address 4028 Monetta Dr, Elgin, SC 29045

Evans
$265,974
- 4 bd
- 2.5 ba
- 1,709 sqft
4028 Monetta Dr, Elgin, SC 29045
- Home at address 5007 Erwin Ct, Elgin, SC 29045

Evans
$278,391
- 4 bd
- 2.5 ba
- 1,735 sqft
5007 Erwin Ct, Elgin, SC 29045
- Home at address 2070 County Line Trl, Elgin, SC 29045

Lancaster
$310,534
- 5 bd
- 3 ba
- 2,166 sqft
2070 County Line Trl, Elgin, SC 29045
- Home at address 1123 Crescent Corner Dr, Elgin, SC 29045

McDowell
$317,582
- 5 bd
- 2.5 ba
- 2,236 sqft
1123 Crescent Corner Dr, Elgin, SC 29045
- Home at address 2080 County Line Trl, Elgin, SC 29045

Lancaster
$319,000
- 4 bd
- 2.5 ba
- 2,175 sqft
2080 County Line Trl, Elgin, SC 29045
- Home at address 6026 Edgemont Ct, Elgin, SC 29045

Lancaster
$320,218
- 5 bd
- 3 ba
- 2,175 sqft
6026 Edgemont Ct, Elgin, SC 29045
Floor plans in Ellington
- View details for Guilford - Genesis Value Collection

Guilford - Genesis Value Collection
$245,000+- 4 bd
- 2.5 ba
- 1,772 sqft
- View details for Lancaster - Genesis Value Collection

Lancaster - Genesis Value Collection
$267,000+- 4 bd
- 2.5 ba
- 2,152 sqft
About the builder - Mungo Homes
Neighborhood
Home address
Schools in Richland School District 2
GreatSchools’ Summary Rating calculation is based on 4 of the school’s themed ratings, including test scores, student/academic progress, college readiness, and equity. This information should only be used as a reference. Jome is not affiliated with GreatSchools and does not endorse or guarantee this information. Please reach out to schools directly to verify all information and enrollment eligibility. Data provided by GreatSchools.org © 2025
Places of interest
Getting around
Air quality
Noise level
A Soundscore™ rating is a number between 50 (very loud) and 100 (very quiet) that tells you how loud a location is due to environmental noise.

Considering this home?
Our expert will guide your tour, in-person or virtual
Need more information?
Text or call (888) 545-5198
Financials
Estimated monthly payment
Let us help you find your dream home
How many bedrooms are you looking for?
Similar homes nearby
Recently added communities in this area
Nearby communities in Elgin
New homes in nearby cities
More New Homes in Elgin, SC
- Jome
- New homes search
- South Carolina
- Richland County
- Elgin
- Ellington
- 2084 County Line Trl, Elgin, SC 29045































