




- 5 bd
- 3.5 ba
- 2,668 sqft
3063 Hallsdale Dr, Elgin, SC 29045
- Single-Family
- $124.44/sqft
- 265 days on Jome
New Homes for Sale Near 3063 Hallsdale Dr, Elgin, SC 29045
About this Home
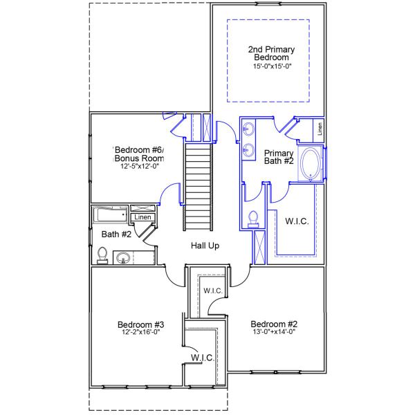
This dual-primary Rutherford plan boasts five bedrooms and three-and-one-half bathrooms. Enter from the front porch to find luxury vinyl plank flooring flowing throughout the main living areas. The kitchen features upgraded cabinetry with hardware, luna pearl granite countertops, and a stainless-steel gas cooktop. The kitchen overlooks the eat-in area and great room. An extended patio slab off your back porch makes for enjoying your outdoor space. The primary suite on the main level offers a vaulted ceiling, a separate tub and shower, large walk-in closet, and private water closet. The laundry room is located on the main level and includes cabinetry for added convenience. Finished hardwood treads lead the way to the second level, where the second primary suite with a boxed ceiling, garden tub, dual sinks, and spacious walk-in closet await. Three secondary bedrooms are also upstairs and share a full bathroom. Come experience the Rutherford today at Ellington!
May also be listed on the Mungo Homes website
Information last verified by Jome: Saturday at 5:34 AM (March 21, 2026)
Home details
- Property status:
- Sold
- Size:
- 2,668 sqft
- Stories:
- 2
- Beds:
- 5
- Baths:
- 3
- Half baths:
- 1
- Garage spaces:
- 2
Construction details
- Builder Name:
- Mungo Homes
- Completion Date:
- March, 2026
Home features & finishes
- Garage/Parking:
- Garage
- Rooms:
- Primary Bedroom Downstairs

Community details
Ellington
by Mungo Homes, Elgin, SC
- 28 homes
- 18 plans
- 1,148 - 3,033 sqft
View Ellington details
More homes in Ellington
- Home at address 1123 Crescent Corner Dr, Elgin, SC 29045

$320,000
Under construction- 5 bd
- 2.5 ba
- 2,236 sqft
1123 Crescent Corner Dr, Elgin, SC 29045
- Home at address 1130 Crescent Corner Dr, Elgin, SC 29045

$364,632
Under construction- 5 bd
- 2.5 ba
- 3,033 sqft
1130 Crescent Corner Dr, Elgin, SC 29045
- Home at address 1137 Crescent Corner Dr, Elgin, SC 29045

$377,000
Under construction- 6 bd
- 3.5 ba
- 2,985 sqft
1137 Crescent Corner Dr, Elgin, SC 29045
Floor plans in Ellington
- View details for Rutherford - Genesis Value Collection

Rutherford - Genesis Value Collection
$296,000+- 5 bd
- 3.5 ba
- 2,621 sqft
- View details for Turner - Genesis Value Collection

Turner - Genesis Value Collection
$313,000+- 5 bd
- 2.5 ba
- 2,985 sqft
About the builder - Mungo Homes
Neighborhood
Home address
Schools in Kershaw County School District
GreatSchools’ Summary Rating calculation is based on 4 of the school’s themed ratings, including test scores, student/academic progress, college readiness, and equity. This information should only be used as a reference. Jome is not affiliated with GreatSchools and does not endorse or guarantee this information. Please reach out to schools directly to verify all information and enrollment eligibility. Data provided by GreatSchools.org © 2025
Places of interest
Getting around
Air quality
Noise level
A Soundscore™ rating is a number between 50 (very loud) and 100 (very quiet) that tells you how loud a location is due to environmental noise.
Financials
Nearby communities in Elgin
Homes in Elgin by Mungo Homes
Recently added communities in this area
Other Builders in Elgin, SC
Nearby sold homes
New homes in nearby cities
More New Homes in Elgin, SC
- Jome
- New homes search
- South Carolina
- Kershaw County
- Elgin
- Ellington
- 3063 Hallsdale Dr, Elgin, SC 29045


































































