



- 3 bd
- 2 ba
- 1,148 sqft
4030 Monetta Dr, Elgin, SC 29045
- Single-Family
- $195.99/sqft
- 147 days on Jome
New Homes for Sale Near 4030 Monetta Dr, Elgin, SC 29045
About this Home
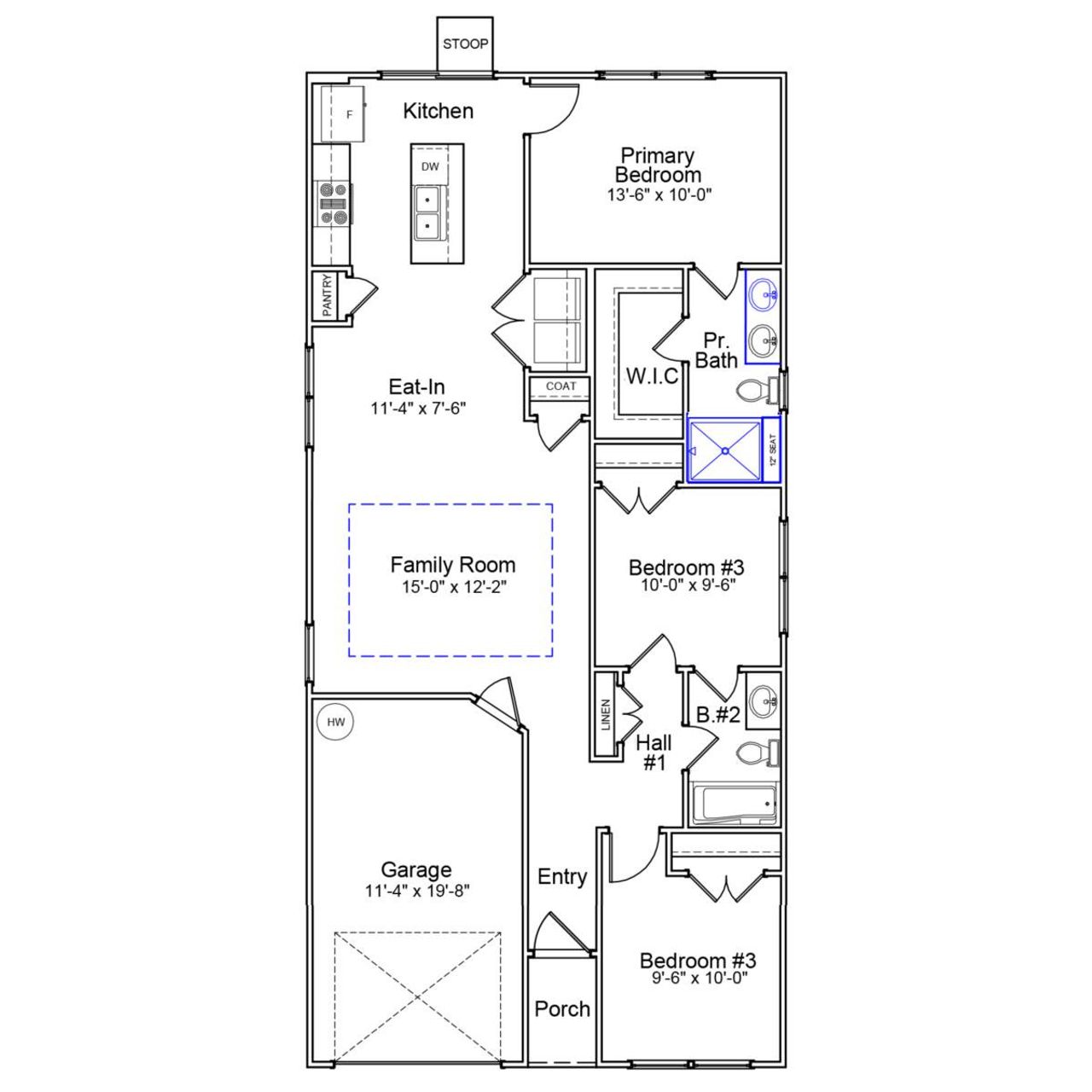
The Baker is a single-story, three bedroom and two full bathroom home! An upgraded elevation for this home provides great curb appeal. Enter from the front porch to find luxury vinyl plank flooring throughout the main living areas. The great room is equipped with a boxed ceiling and leads to the eat-in area and kitchen. The kitchen houses a gas cooktop, stone gray cabinetry with crown and hardware, quartz countertops, and tile backsplash. The laundry room is situated just off the primary bedroom and includes cabinetry. The primary suite features dual sinks, a spacious walk-in closet, and tile shower with bench seat. Two secondary bedrooms share a full bathroom at the front of the home. Completed with an extended patio slab, this Baker is a gem you don't want to miss at Ellington!
May also be listed on the Mungo Homes website
Information last verified by Jome: Wednesday at 6:15 AM (March 4, 2026)
Home details
- Property status:
- Sold
- Size:
- 1,148 sqft
- Stories:
- 1
- Beds:
- 3
- Baths:
- 2
- Garage spaces:
- 1
Construction details
- Builder Name:
- Mungo Homes
- Completion Date:
- April, 2026
Home features & finishes
- Garage/Parking:
- Garage
- Rooms:
- Primary Bedroom On MainPrimary Bedroom Downstairs

Community details
Ellington
by Mungo Homes, Elgin, SC
- 28 homes
- 18 plans
- 1,148 - 3,033 sqft
View Ellington details
More homes in Ellington
- Home at address 1112 Crescent Corner Dr, Elgin, SC 29045

$258,707
Under construction- 3 bd
- 2.5 ba
- 1,476 sqft
1112 Crescent Corner Dr, Elgin, SC 29045
- Home at address 1107 Crescent Corner Dr, Elgin, SC 29045

$260,215
Under construction- 3 bd
- 2.5 ba
- 1,617 sqft
1107 Crescent Corner Dr, Elgin, SC 29045
- Home at address 4026 Monetta Dr, Elgin, SC 29045

$262,000
Under construction- 3 bd
- 2.5 ba
- 1,617 sqft
4026 Monetta Dr, Elgin, SC 29045
- Home at address 5029 Erwin Ct, Elgin, SC 29045

$264,683
Under construction- 3 bd
- 2.5 ba
- 1,617 sqft
5029 Erwin Ct, Elgin, SC 29045
- Home at address 6010 Edgemont Ct, Elgin, SC 29045

$266,163
Under construction- 3 bd
- 2 ba
- 1,548 sqft
6010 Edgemont Ct, Elgin, SC 29045
- Home at address 5013 Erwin Ct, Elgin, SC 29045

$266,857
Under construction- 3 bd
- 2.5 ba
- 1,617 sqft
5013 Erwin Ct, Elgin, SC 29045
Floor plans in Ellington
- View details for Baker - Genesis Value Collection

Baker - Genesis Value Collection
$210,000+- 3 bd
- 2 ba
- 1,148 sqft
- View details for Bartow - Genesis Value Collection

Bartow - Genesis Value Collection
$229,000+- 3 bd
- 2.5 ba
- 1,476 sqft
About the builder - Mungo Homes
Neighborhood
Home address
Schools in Kershaw County School District
GreatSchools’ Summary Rating calculation is based on 4 of the school’s themed ratings, including test scores, student/academic progress, college readiness, and equity. This information should only be used as a reference. Jome is not affiliated with GreatSchools and does not endorse or guarantee this information. Please reach out to schools directly to verify all information and enrollment eligibility. Data provided by GreatSchools.org © 2025
Places of interest
Getting around
Air quality
Noise level
A Soundscore™ rating is a number between 50 (very loud) and 100 (very quiet) that tells you how loud a location is due to environmental noise.
Financials
Nearby communities in Elgin
Homes in Elgin by Mungo Homes
Recently added communities in this area
Other Builders in Elgin, SC
Nearby sold homes
New homes in nearby cities
More New Homes in Elgin, SC
- Jome
- New homes search
- South Carolina
- Kershaw County
- Elgin
- Ellington
- 4030 Monetta Dr, Elgin, SC 29045






































































