























- 5 bd
- 3 ba
- 2,771 sqft
3014 Hallsdale Dr, Elgin, SC 29045
- Single-Family
- $122.7/sqft
- 164 days on Jome
New Homes for Sale Near 3014 Hallsdale Dr, Elgin, SC 29045
About this Home
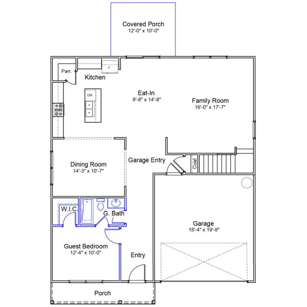
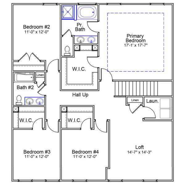
As you enter through the covered front porch of the Telfair plan, this home features five bedrooms, three full bathrooms, a main floor guest suite, a spacious loft upstairs and a covered back porch. The home opens up to a beautiful entry hall leading to a spacious great room overlooking the kitchen, formal dining room, and eat-in area. The kitchen is modern with white shaker cabinetry with crown molding, pendant lights and elegant Miami Vena quartz countertops. Upstairs is a spacious primary suite with a boxed ceiling with fan, large walk in closet, separate soaking tub and tiled shower, and dual rectangular quartz vanity. The three secondary bedrooms upstairs are all rather spacious with a full bath, upstairs laundry, and loft area. Neighborhood resort style amenities include a cabana, pool with wading area, lazy river, and sidewalks throughout the neighborhood. Come check out the Telfair plan in Ellington today!
May also be listed on the Mungo Homes website
Information last verified by Jome: Monday at 5:56 AM (November 17, 2025)
Home details
- Property status:
- Sold
- Size:
- 2,771 sqft
- Stories:
- 2
- Beds:
- 5
- Baths:
- 3
- Garage spaces:
- 2
Construction details
- Builder Name:
- Mungo Homes
- Completion Date:
- December, 2025
Home features & finishes
- Garage/Parking:
- Garage
- Rooms:
- Primary Bedroom Upstairs

Community details
Ellington
by Mungo Homes, Elgin, SC
- 38 homes
- 18 plans
- 1,148 - 3,033 sqft
View Ellington details
More homes in Ellington
Floor plans in Ellington
About the builder - Mungo Homes
Neighborhood
Home address
Schools in Kershaw County School District
GreatSchools’ Summary Rating calculation is based on 4 of the school’s themed ratings, including test scores, student/academic progress, college readiness, and equity. This information should only be used as a reference. Jome is not affiliated with GreatSchools and does not endorse or guarantee this information. Please reach out to schools directly to verify all information and enrollment eligibility. Data provided by GreatSchools.org © 2025
Places of interest
Getting around
Air quality
Noise level
A Soundscore™ rating is a number between 50 (very loud) and 100 (very quiet) that tells you how loud a location is due to environmental noise.
Natural hazards risk
Climate hazards can impact homes and communities, with risks varying by location. These scores reflect the potential impact of natural disasters and climate-related risks on Kershaw County
Provided by FEMA
Financials
Nearby communities in Elgin
Homes in Elgin by Mungo Homes
Recently added communities in this area
Other Builders in Elgin, SC
Nearby sold homes
New homes in nearby cities
More New Homes in Elgin, SC
- Jome
- New homes search
- South Carolina
- Kershaw County
- Elgin
- Ellington
- 3014 Hallsdale Dr, Elgin, SC 29045








































































