






















- 5 bd
- 2.5 ba
- 3,033 sqft
3028 Hallsdale Dr, Elgin, SC 29045
- Single-Family
- $118.87/sqft
- 140 days on Jome
New Homes for Sale Near 3028 Hallsdale Dr, Elgin, SC 29045
About this Home
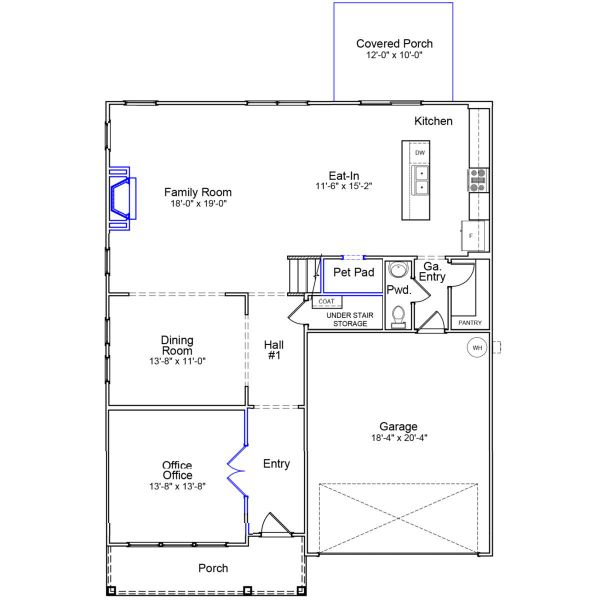
This Turner plan features five bedrooms and two-and-one-half bathrooms. Enter from the front porch to find luxury vinyl plank flooring that flows throughout the entire main level. An office with French doors is situated right off the entry, perfect as a flex space or a home office. A formal dining room is located right off the great room. Anchored by a gas fireplace, the great room leads way to the eat-in area and the kitchen. Equipped with a gas cooktop, gray cabinetry with crown and hardware, Dallas white granite countertops, and tile backsplash, the kitchen checks all the boxes. A covered back porch with an extended slab is perfect for enjoying your outdoor space, and a pet pad completes the main level. Hardwood treads on the staircase lead to the second level, where a spacious loft awaits. Four secondary bedrooms all feature generous closet space and share a bathroom with dual sinks. The laundry room is conveniently located on this level and includes cabinets galore! The primary suite offers French doors to the bathroom, equipped with dual sinks, a separate tub and shower, and a large walk-in closet. Experience the Turner plan at Ellington today, a wonderful plan in a wonderful community!
May also be listed on the Mungo Homes website
Information last verified by Jome: Saturday at 5:42 AM (January 17, 2026)
Home details
- Property status:
- Sold
- Size:
- 3,033 sqft
- Stories:
- 2
- Beds:
- 5
- Baths:
- 2
- Half baths:
- 1
- Garage spaces:
- 2
Construction details
- Builder Name:
- Mungo Homes
- Completion Date:
- March, 2026
Home features & finishes
- Garage/Parking:
- Garage
- Rooms:
- Primary Bedroom Upstairs

Community details
Ellington
by Mungo Homes, Elgin, SC
- 18 homes
- 18 plans
- 1,148 - 3,033 sqft
View Ellington details
More homes in Ellington
- Home at address 2070 County Line Trl, Elgin, SC 29045

$307,534
Under construction- 5 bd
- 3 ba
- 2,166 sqft
2070 County Line Trl, Elgin, SC 29045
- Home at address 6026 Edgemont Ct, Elgin, SC 29045

$317,218
Under construction- 5 bd
- 3 ba
- 2,175 sqft
6026 Edgemont Ct, Elgin, SC 29045
- Home at address 1130 Crescent Corner Dr, Elgin, SC 29045

$358,632
Under construction- 5 bd
- 2.5 ba
- 3,033 sqft
1130 Crescent Corner Dr, Elgin, SC 29045
- Home at address 1137 Crescent Corner Dr, Elgin, SC 29045

$371,944
Under construction- 6 bd
- 3.5 ba
- 2,985 sqft
1137 Crescent Corner Dr, Elgin, SC 29045
Floor plans in Ellington
- View details for Rutherford - Genesis Value Collection

Rutherford - Genesis Value Collection
$293,000+- 5 bd
- 3.5 ba
- 2,621 sqft
- View details for Turner - Genesis Value Collection

Turner - Genesis Value Collection
$310,000+- 5 bd
- 2.5 ba
- 2,985 sqft
About the builder - Mungo Homes
Neighborhood
Home address
Schools in Kershaw County School District
GreatSchools’ Summary Rating calculation is based on 4 of the school’s themed ratings, including test scores, student/academic progress, college readiness, and equity. This information should only be used as a reference. Jome is not affiliated with GreatSchools and does not endorse or guarantee this information. Please reach out to schools directly to verify all information and enrollment eligibility. Data provided by GreatSchools.org © 2025
Places of interest
Getting around
Air quality
Noise level
A Soundscore™ rating is a number between 50 (very loud) and 100 (very quiet) that tells you how loud a location is due to environmental noise.
Financials
Nearby communities in Elgin
Homes in Elgin by Mungo Homes
Recently added communities in this area
Other Builders in Elgin, SC
Nearby sold homes
New homes in nearby cities
More New Homes in Elgin, SC
- Jome
- New homes search
- South Carolina
- Kershaw County
- Elgin
- Ellington
- 3028 Hallsdale Dr, Elgin, SC 29045


































































