




- 3 bd
- 2.5 ba
- 1,617 sqft
4008 Monetta Dr, Elgin, SC 29045
- Single-Family
- $154.61/sqft
- 271 days on Jome
New Homes for Sale Near 4008 Monetta Dr, Elgin, SC 29045
About this Home
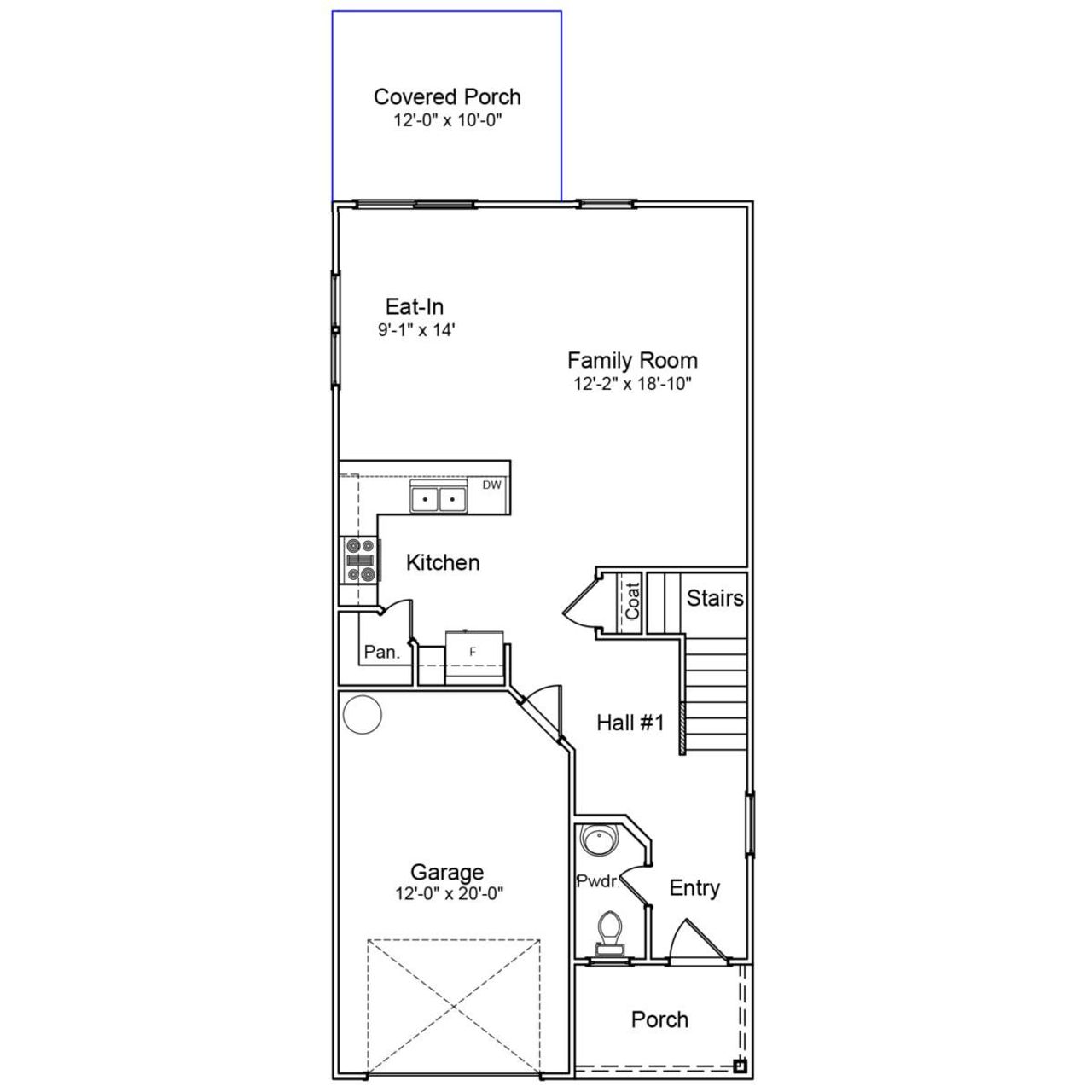
The Dawson is an open concept, three bedroom, two-and-one-half bathroom home! Enter the foyer to find luxury vinyl plank flooring flowing throughout the main level. The kitchen features upgraded Miami vena quartz countertops, birch quill cabinetry, and stainless-steel electric cooktop. Pendant lighting has been added to the peninsula in the kitchen, which overlooks the charming eat-in area and great room. A covered rear porch is ideal for enjoying your outdoor space. Wood spindles on the staircase lead the way to the second level, where the bedrooms are located. The primary suite offers a boxed ceiling, a large walk-in closet, dual sinks in the bathroom, and tile shower. The laundry room is on this level for maximum convenience and has cabinets for added storage! Two additional bedrooms share a full bathroom, and a one-car garage completes the home. The Dawson plan is waiting for you to make it home at Ellington!
May also be listed on the Mungo Homes website
Information last verified by Jome: Friday at 5:42 AM (January 16, 2026)
Home details
- Property status:
- Sold
- Size:
- 1,617 sqft
- Stories:
- 2
- Beds:
- 3
- Baths:
- 2
- Half baths:
- 1
- Garage spaces:
- 1
Construction details
- Builder Name:
- Mungo Homes
- Completion Date:
- February, 2026
Home features & finishes
- Garage/Parking:
- Garage
- Rooms:
- Primary Bedroom Upstairs

Community details
Ellington
by Mungo Homes, Elgin, SC
- 22 homes
- 18 plans
- 1,148 - 3,033 sqft
View Ellington details
More homes in Ellington
- Home at address 5008 Erwin Ct, Elgin, SC 29045

$244,111
Under construction- 3 bd
- 2.5 ba
- 1,476 sqft
5008 Erwin Ct, Elgin, SC 29045
- Home at address 4022 Monetta Dr, Elgin, SC 29045

$244,366
Under construction- 3 bd
- 2.5 ba
- 1,476 sqft
4022 Monetta Dr, Elgin, SC 29045
- Home at address 4026 Monetta Dr, Elgin, SC 29045

$258,462
Under construction- 3 bd
- 2.5 ba
- 1,617 sqft
4026 Monetta Dr, Elgin, SC 29045
- Home at address 4028 Monetta Dr, Elgin, SC 29045

$263,974
Under construction- 4 bd
- 2.5 ba
- 1,709 sqft
4028 Monetta Dr, Elgin, SC 29045
- Home at address 6028 Edgemont Ct, Elgin, SC 29045

$265,000
Under construction- 3 bd
- 2 ba
- 1,548 sqft
6028 Edgemont Ct, Elgin, SC 29045
- Home at address 6002 Edgemont Ct, Elgin, SC 29045

$266,000
Under construction- 3 bd
- 2 ba
- 1,548 sqft
6002 Edgemont Ct, Elgin, SC 29045
Floor plans in Ellington
- View details for Baker - Genesis Value Collection

Baker - Genesis Value Collection
$206,000+- 3 bd
- 2 ba
- 1,148 sqft
- View details for Bartow - Genesis Value Collection

Bartow - Genesis Value Collection
$225,000+- 3 bd
- 2.5 ba
- 1,476 sqft
About the builder - Mungo Homes
Neighborhood
Home address
Schools in Richland School District 2
GreatSchools’ Summary Rating calculation is based on 4 of the school’s themed ratings, including test scores, student/academic progress, college readiness, and equity. This information should only be used as a reference. Jome is not affiliated with GreatSchools and does not endorse or guarantee this information. Please reach out to schools directly to verify all information and enrollment eligibility. Data provided by GreatSchools.org © 2025
Places of interest
Getting around
Air quality
Noise level
A Soundscore™ rating is a number between 50 (very loud) and 100 (very quiet) that tells you how loud a location is due to environmental noise.
Financials
Nearby communities in Elgin
Homes in Elgin by Mungo Homes
Recently added communities in this area
Other Builders in Elgin, SC
Nearby sold homes
New homes in nearby cities
More New Homes in Elgin, SC
- Jome
- New homes search
- South Carolina
- Richland County
- Elgin
- Ellington
- 4008 Monetta Dr, Elgin, SC 29045






































































