















- 4 bd
- 3 ba
- 2,236 sqft
2078 County Line Trl, Elgin, SC 29045
- Single-Family
- $136.21/sqft
- 56 days on Jome
New Homes for Sale Near 2078 County Line Trl, Elgin, SC 29045
About this Home
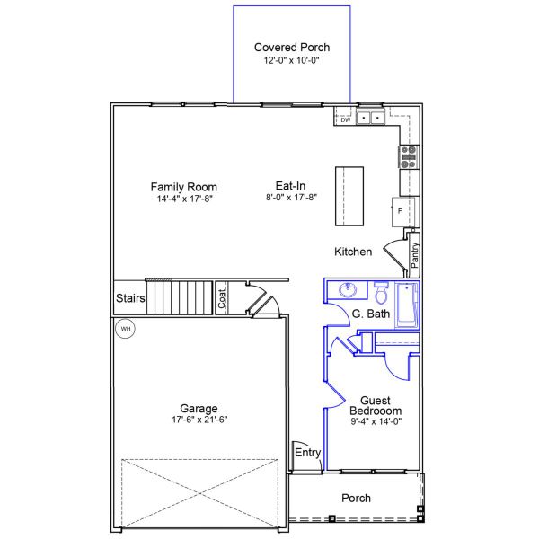
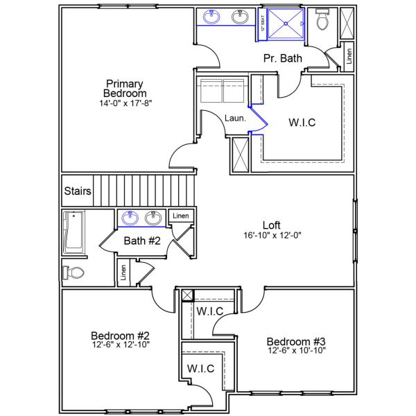
Situated on a homesite that looks out towards a tree line, this Meriwether plan offers four bedrooms and three full bathrooms. A covered front porch welcomes you into the home, where driftwood luxury vinyl plank flooring flows throughout the main living areas. Just off the entry is a guest bedroom with a full bathroom. The kitchen is equipped with pendant lighting over the island, Miami vena countertops, upgraded brown birch cabinetry with crown, and a stainless-steel gas cooktop. The kitchen overlooks the eat-in area and great room and leads to the covered back porch with an extended slab–the perfect place to unwind and enjoy your outdoor living space. An open rail with wooden spindles on the staircase takes you to the second level of the home, where a spacious loft awaits! Two secondary bedrooms each have large walk-in closets and share a bathroom with dual sinks. The primary suite features an expansive layout with a tile shower and bench seat, dual sinks, and private water closet. The laundry room conveniently connects to the large primary suite closet, and houses cabinetry for even more storage. Come make the Meriwether your new home at Ellington!
May also be listed on the Mungo Homes website
Information last verified by Jome: Sunday at 6:12 AM (March 8, 2026)
Home details
- Property status:
- Sold
- Size:
- 2,236 sqft
- Stories:
- 2
- Beds:
- 4
- Baths:
- 3
- Garage spaces:
- 2
Construction details
- Builder Name:
- Mungo Homes
- Completion Date:
- May, 2026
Home features & finishes
- Garage/Parking:
- Garage
- Rooms:
- Primary Bedroom Upstairs

Community details
Ellington
by Mungo Homes, Elgin, SC
- 24 homes
- 18 plans
- 1,148 - 3,033 sqft
View Ellington details
More homes in Ellington
- Home at address 4028 Monetta Dr, Elgin, SC 29045

$265,974
Under construction- 4 bd
- 2.5 ba
- 1,709 sqft
4028 Monetta Dr, Elgin, SC 29045
- Home at address 5007 Erwin Ct, Elgin, SC 29045

$278,391
Under construction- 4 bd
- 2.5 ba
- 1,735 sqft
5007 Erwin Ct, Elgin, SC 29045
- Home at address 2084 County Line Trl, Elgin, SC 29045

$278,682
Under construction- 4 bd
- 2.5 ba
- 1,806 sqft
2084 County Line Trl, Elgin, SC 29045
- Home at address 2070 County Line Trl, Elgin, SC 29045

$310,000
Under construction- 5 bd
- 3 ba
- 2,166 sqft
2070 County Line Trl, Elgin, SC 29045
- Home at address 2072 County Line Trl, Elgin, SC 29045

$311,043
Under construction- 4 bd
- 3 ba
- 2,260 sqft
2072 County Line Trl, Elgin, SC 29045
- Home at address 2080 County Line Trl, Elgin, SC 29045

$316,000
Under construction- 4 bd
- 2.5 ba
- 2,175 sqft
2080 County Line Trl, Elgin, SC 29045
Floor plans in Ellington
- View details for Guilford - Genesis Value Collection

Guilford - Genesis Value Collection
$245,000+- 4 bd
- 2.5 ba
- 1,772 sqft
- View details for Lancaster - Genesis Value Collection

Lancaster - Genesis Value Collection
$267,000+- 4 bd
- 2.5 ba
- 2,152 sqft
About the builder - Mungo Homes
Neighborhood
Home address
Schools in Richland School District 2
GreatSchools’ Summary Rating calculation is based on 4 of the school’s themed ratings, including test scores, student/academic progress, college readiness, and equity. This information should only be used as a reference. Jome is not affiliated with GreatSchools and does not endorse or guarantee this information. Please reach out to schools directly to verify all information and enrollment eligibility. Data provided by GreatSchools.org © 2025
Places of interest
Getting around
Air quality
Noise level
A Soundscore™ rating is a number between 50 (very loud) and 100 (very quiet) that tells you how loud a location is due to environmental noise.
Financials
Nearby communities in Elgin
Homes in Elgin by Mungo Homes
Recently added communities in this area
Other Builders in Elgin, SC
Nearby sold homes
New homes in nearby cities
More New Homes in Elgin, SC
- Jome
- New homes search
- South Carolina
- Richland County
- Elgin
- Ellington
- 2078 County Line Trl, Elgin, SC 29045







































































