




























- 3 bd
- 2 ba
- 1,148 sqft
4015 Monetta Dr, Elgin, SC 29045
- Single-Family
- $191.64/sqft
- 271 days on Jome
New Homes for Sale Near 4015 Monetta Dr, Elgin, SC 29045
About this Home
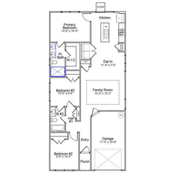
This move-in-ready Baker plan is a one-story home that features three bedrooms, two bathrooms, and a one-car garage! Refrigerator and full-home blinds are included. This home provides luxury vinyl plank flooring throughout the main living areas and primary suite. The great room includes a boxed ceiling and leads the way to the eat-in area, which is situated next to the kitchen. The kitchen has luna pearl granite countertops, an electric cooktop, and white cabinetry. The primary suite offers dual sinks, a spacious walk-in closet, and tile-shower! To complete this home, two secondary bedrooms share a bathroom, and the laundry closet has cabinetry for added storage. Come make the Baker your new home at Ellington!
May also be listed on the Mungo Homes website
Information last verified by Jome: Tuesday at 6:00 AM (February 10, 2026)
Home details
- Property status:
- Sold
- Size:
- 1,148 sqft
- Stories:
- 1
- Beds:
- 3
- Baths:
- 2
- Garage spaces:
- 1
Construction details
- Builder Name:
- Mungo Homes
- Completion Date:
- December, 2025
Home features & finishes
- Garage/Parking:
- Garage
- Rooms:
- Primary Bedroom On MainPrimary Bedroom Downstairs

Community details
Ellington
by Mungo Homes, Elgin, SC
- 22 homes
- 18 plans
- 1,148 - 3,033 sqft
View Ellington details
More homes in Ellington
- Home at address 5008 Erwin Ct, Elgin, SC 29045

$244,111
Under construction- 3 bd
- 2.5 ba
- 1,476 sqft
5008 Erwin Ct, Elgin, SC 29045
- Home at address 4022 Monetta Dr, Elgin, SC 29045

$244,366
Under construction- 3 bd
- 2.5 ba
- 1,476 sqft
4022 Monetta Dr, Elgin, SC 29045
- Home at address 4026 Monetta Dr, Elgin, SC 29045

$258,462
Under construction- 3 bd
- 2.5 ba
- 1,617 sqft
4026 Monetta Dr, Elgin, SC 29045
- Home at address 4028 Monetta Dr, Elgin, SC 29045

$263,974
Under construction- 4 bd
- 2.5 ba
- 1,709 sqft
4028 Monetta Dr, Elgin, SC 29045
- Home at address 6028 Edgemont Ct, Elgin, SC 29045

$265,000
Under construction- 3 bd
- 2 ba
- 1,548 sqft
6028 Edgemont Ct, Elgin, SC 29045
- Home at address 6002 Edgemont Ct, Elgin, SC 29045

$266,000
Under construction- 3 bd
- 2 ba
- 1,548 sqft
6002 Edgemont Ct, Elgin, SC 29045
Floor plans in Ellington
- View details for Baker - Genesis Value Collection

Baker - Genesis Value Collection
$206,000+- 3 bd
- 2 ba
- 1,148 sqft
- View details for Bartow - Genesis Value Collection

Bartow - Genesis Value Collection
$225,000+- 3 bd
- 2.5 ba
- 1,476 sqft
About the builder - Mungo Homes
Neighborhood
Home address
Schools in Richland School District 2
GreatSchools’ Summary Rating calculation is based on 4 of the school’s themed ratings, including test scores, student/academic progress, college readiness, and equity. This information should only be used as a reference. Jome is not affiliated with GreatSchools and does not endorse or guarantee this information. Please reach out to schools directly to verify all information and enrollment eligibility. Data provided by GreatSchools.org © 2025
Places of interest
Getting around
Air quality
Noise level
A Soundscore™ rating is a number between 50 (very loud) and 100 (very quiet) that tells you how loud a location is due to environmental noise.
Financials
Nearby communities in Elgin
Homes in Elgin by Mungo Homes
Recently added communities in this area
Other Builders in Elgin, SC
Nearby sold homes
New homes in nearby cities
More New Homes in Elgin, SC
- Jome
- New homes search
- South Carolina
- Kershaw County
- Elgin
- Ellington
- 4015 Monetta Dr, Elgin, SC 29045






































































