




- 3 bd
- 2.5 ba
- 1,476 sqft
4014 Monetta Dr, Elgin, SC 29045
- Single-Family
- $152.44/sqft
- 271 days on Jome
New Homes for Sale Near 4014 Monetta Dr, Elgin, SC 29045
About this Home
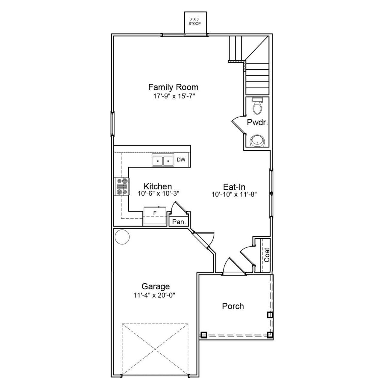
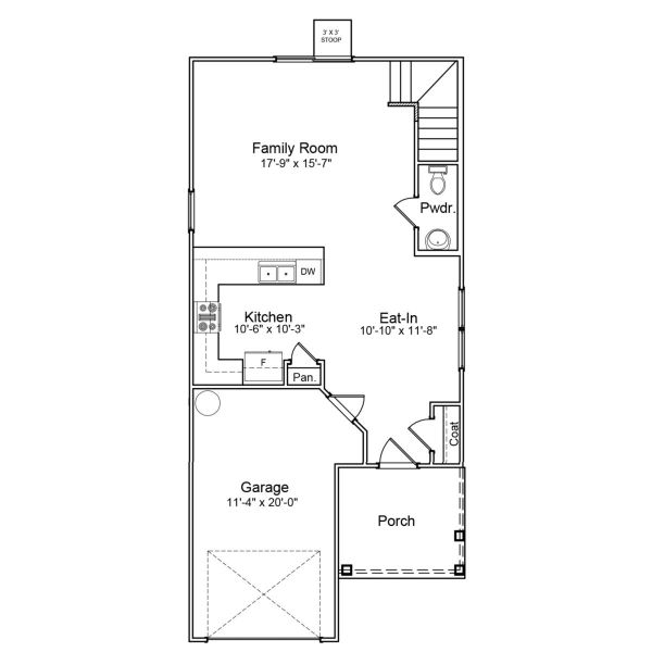
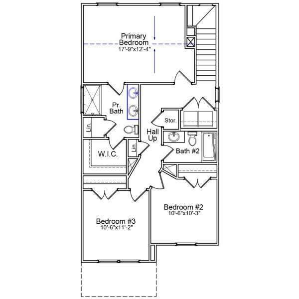
This two-story Bartow boasts three bedrooms and two-and-one-half bathrooms. Step through the covered front porch and be welcomed by the charming eat-in area, which flows seamlessly with luxury vinyl plank flooring into the kitchen and great room. The kitchen features quartz countertops, white cabinetry, and an electric range. This home also includes an extended slab on the back porch, perfect for enjoying your backyard. Upstairs, the laundry area is conveniently located at the top of the stairs, along with hallway storage and linen closets for added convenience. The primary suite features a vaulted ceiling, walk-in closet, tile shower, and dual sinks. Two additional bedrooms are located at the front of the home and share a full bathroom. Come make the Bartow plan yours at Ellington!
May also be listed on the Mungo Homes website
Information last verified by Jome: Monday at 6:04 AM (January 5, 2026)
Home details
- Property status:
- Sold
- Size:
- 1,476 sqft
- Stories:
- 2
- Beds:
- 3
- Baths:
- 2
- Half baths:
- 1
- Garage spaces:
- 1
Construction details
- Builder Name:
- Mungo Homes
- Completion Date:
- January, 2026
Home features & finishes
- Garage/Parking:
- Garage
- Rooms:
- Primary Bedroom Upstairs

Community details
Ellington
by Mungo Homes, Elgin, SC
- 22 homes
- 18 plans
- 1,148 - 3,033 sqft
View Ellington details
More homes in Ellington
- Home at address 5008 Erwin Ct, Elgin, SC 29045

$244,111
Under construction- 3 bd
- 2.5 ba
- 1,476 sqft
5008 Erwin Ct, Elgin, SC 29045
- Home at address 4022 Monetta Dr, Elgin, SC 29045

$244,366
Under construction- 3 bd
- 2.5 ba
- 1,476 sqft
4022 Monetta Dr, Elgin, SC 29045
- Home at address 4026 Monetta Dr, Elgin, SC 29045

$258,462
Under construction- 3 bd
- 2.5 ba
- 1,617 sqft
4026 Monetta Dr, Elgin, SC 29045
- Home at address 4028 Monetta Dr, Elgin, SC 29045

$263,974
Under construction- 4 bd
- 2.5 ba
- 1,709 sqft
4028 Monetta Dr, Elgin, SC 29045
- Home at address 6028 Edgemont Ct, Elgin, SC 29045

$265,000
Under construction- 3 bd
- 2 ba
- 1,548 sqft
6028 Edgemont Ct, Elgin, SC 29045
- Home at address 6002 Edgemont Ct, Elgin, SC 29045

$266,000
Under construction- 3 bd
- 2 ba
- 1,548 sqft
6002 Edgemont Ct, Elgin, SC 29045
Floor plans in Ellington
- View details for Baker - Genesis Value Collection

Baker - Genesis Value Collection
$206,000+- 3 bd
- 2 ba
- 1,148 sqft
- View details for Bartow - Genesis Value Collection

Bartow - Genesis Value Collection
$225,000+- 3 bd
- 2.5 ba
- 1,476 sqft
About the builder - Mungo Homes
Neighborhood
Home address
Schools in Richland School District 2
GreatSchools’ Summary Rating calculation is based on 4 of the school’s themed ratings, including test scores, student/academic progress, college readiness, and equity. This information should only be used as a reference. Jome is not affiliated with GreatSchools and does not endorse or guarantee this information. Please reach out to schools directly to verify all information and enrollment eligibility. Data provided by GreatSchools.org © 2025
Places of interest
Getting around
Air quality
Noise level
A Soundscore™ rating is a number between 50 (very loud) and 100 (very quiet) that tells you how loud a location is due to environmental noise.
Financials
Nearby communities in Elgin
Homes in Elgin by Mungo Homes
Recently added communities in this area
Other Builders in Elgin, SC
Nearby sold homes
New homes in nearby cities
More New Homes in Elgin, SC
- Jome
- New homes search
- South Carolina
- Richland County
- Elgin
- Ellington
- 4014 Monetta Dr, Elgin, SC 29045






































































