
















- 3 bd
- 2 ba
- 1,548 sqft
3059 Hallsdale Dr, Elgin, SC 29045
- Single-Family
- $171.62/sqft
- 187 days on Jome
New Homes for Sale Near 3059 Hallsdale Dr, Elgin, SC 29045
About this Home
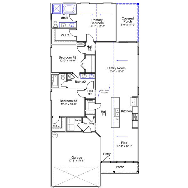
This beautiful Brunswick is a one-level plan that has three bedrooms and two bathrooms. A charming eat-in area greets you from the front porch, with oyster oak luxury vinyl plank flooring flowing throughout. The kitchen offers a large center island with luna pearl granite countertops, stone gray cabinetry with crown, and a stainless-steel gas cooktop. Ten-foot vaulted ceilings provide even more ceiling height in the eat-in, kitchen, and great room. Outside, a covered back porch with a fan is perfect for enjoying your outdoor space. The primary suite also features a vaulted ceiling, luxury vinyl plank flooring, separate tub and shower, and dual sinks! Two additional bedrooms offer large closets and share a bathroom with dual sinks, and a two-car garage completes the home! Come make the Brunswick yours at Ellington, where you can enjoy wonderful amenities minutes from all that Columbia has to offer!
May also be listed on the Mungo Homes website
Information last verified by Jome: Friday at 5:42 AM (November 7, 2025)
Home details
- Property status:
- Sold
- Size:
- 1,548 sqft
- Stories:
- 1
- Beds:
- 3
- Baths:
- 2
- Garage spaces:
- 2
Construction details
- Builder Name:
- Mungo Homes
- Completion Date:
- February, 2026
Home features & finishes
- Garage/Parking:
- Garage
- Rooms:
- Primary Bedroom On MainPrimary Bedroom Downstairs

Community details
Ellington
by Mungo Homes, Elgin, SC
- 33 homes
- 18 plans
- 1,148 - 3,033 sqft
View Ellington details
More homes in Ellington
Floor plans in Ellington
About the builder - Mungo Homes
Neighborhood
Home address
Schools in Kershaw County School District
GreatSchools’ Summary Rating calculation is based on 4 of the school’s themed ratings, including test scores, student/academic progress, college readiness, and equity. This information should only be used as a reference. Jome is not affiliated with GreatSchools and does not endorse or guarantee this information. Please reach out to schools directly to verify all information and enrollment eligibility. Data provided by GreatSchools.org © 2025
Places of interest
Getting around
Air quality
Noise level
A Soundscore™ rating is a number between 50 (very loud) and 100 (very quiet) that tells you how loud a location is due to environmental noise.
Natural hazards risk
Climate hazards can impact homes and communities, with risks varying by location. These scores reflect the potential impact of natural disasters and climate-related risks on Kershaw County
Provided by FEMA
Financials
Nearby communities in Elgin
Homes in Elgin by Mungo Homes
Recently added communities in this area
Other Builders in Elgin, SC
Nearby sold homes
New homes in nearby cities
More New Homes in Elgin, SC
- Jome
- New homes search
- South Carolina
- Kershaw County
- Elgin
- Ellington
- 3059 Hallsdale Dr, Elgin, SC 29045















































































