



Book your tour. Save an average of $18,473. We'll handle the rest.
We collect exclusive builder offers, book your tours, and support you from start to housewarming.
- Confirmed tours
- Get matched & compare top deals
- Expert help, no pressure
- No added fees
Estimated value based on Jome data, T&C apply
Why tour with Jome?
- No pressure toursTour at your own pace with no sales pressure
- Expert guidanceGet insights from our home buying experts
- Exclusive accessSee homes and deals not available elsewhere
Jome is featured in
- Single-Family
- Quick move-in
- $296.13/sqft
- $1,600/annual HOA
Home description
About this home
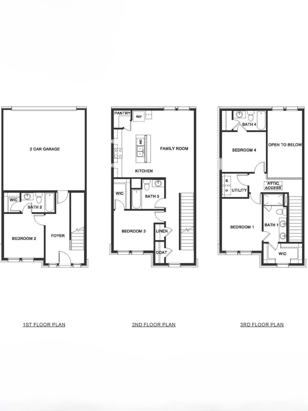
Discover Mustang Square, a D.R. Horton new home community in Plano, TX. These innovative new single family detached homes are designed to meet the needs of today’s busy homeowners. Featuring five different 2- and 3-story floor plans ranging from 1562 to 2246 square feet, 3 to 5 bedrooms, 3 to 3.5 baths, and 2 car rear entry garages, one is sure to meet your needs.
Each home is crafted with timeless details and conveniences, featuring 42” kitchen cabinets, stainless-steel appliances, granite or quartz countertops, laminate flooring, and windows to fill the home with light.
Ideally located just off Sam Rayburn Tollway at Hillcrest Rd. in the heart of thriving Collin County, residents have access to shopping, dining, recreation, and entertainment to their heart’s content. A shorter daily commute will increase time with family and friends enjoying all this Plano community in Frisco ISD has to offer.
With its thoughtfully designed floor plans and convenient location, don’t let the opportunity to make Mustang Square your new home. Schedule your visit today!
May also be listed on the D.R. Horton website
Information last verified by Jome: Today at 4:40 AM (February 28, 2026)
Book your tour. Save an average of $18,473. We'll handle the rest.
We collect exclusive builder offers, book your tours, and support you from start to housewarming.
- Confirmed tours
- Get matched & compare top deals
- Expert help, no pressure
- No added fees
Estimated value based on Jome data, T&C apply
Home details
- Property status:
- Move-in ready
- Size:
- 1,810 sqft
- Stories:
- 3+
- Beds:
- 4
- Baths:
- 4
- Garage spaces:
- 2
Construction details
- Builder Name:
- D.R. Horton
Home features & finishes
- Garage/Parking:
- Garage

Get a consultation with our New Homes Expert
- See how your home builds wealth
- Plan your home-buying roadmap
- Discover hidden gems

Community details
Mustang Square
by D.R. Horton, Plano, TX
- 10 homes
- 6 plans
- 1,376 - 2,223 sqft
View Mustang Square details
More homes in Mustang Square
- Home at address 8825 Shoppers Ln, Plano, TX 75024

Mustang
$516,990
- 4 bd
- 4 ba
- 1,727 sqft
8825 Shoppers Ln, Plano, TX 75024
- Home at address 8811 Shoppers Ln, Plano, TX 75024

Mustang
$516,990
- 4 bd
- 4 ba
- 1,727 sqft
8811 Shoppers Ln, Plano, TX 75024
- Home at address 8829 Shoppers Ln, Plano, TX 75024

Mustang
$525,990
- 4 bd
- 4 ba
- 1,727 sqft
8829 Shoppers Ln, Plano, TX 75024
- Home at address 8803 Shoppers Ln, Plano, TX 75024

Sorrel
$531,990
- 4 bd
- 4 ba
- 1,810 sqft
8803 Shoppers Ln, Plano, TX 75024
- Home at address 8807 Shoppers Ln, Plano, TX 75024

Sorrel
$535,990
- 4 bd
- 4 ba
- 1,810 sqft
8807 Shoppers Ln, Plano, TX 75024
- Home at address 8823 Shoppers Ln, Plano, TX 75024

Sorrel
$535,990
- 4 bd
- 4 ba
- 1,810 sqft
8823 Shoppers Ln, Plano, TX 75024
Floor plans in Mustang Square
About the builder - D.R. Horton

- 1,201communities on Jome
- 9,882homes on Jome
Neighborhood
Home address
Schools in Frisco Independent School District
GreatSchools’ Summary Rating calculation is based on 4 of the school’s themed ratings, including test scores, student/academic progress, college readiness, and equity. This information should only be used as a reference. Jome is not affiliated with GreatSchools and does not endorse or guarantee this information. Please reach out to schools directly to verify all information and enrollment eligibility. Data provided by GreatSchools.org © 2025
Places of interest
Getting around
Air quality
Noise level
A Soundscore™ rating is a number between 50 (very loud) and 100 (very quiet) that tells you how loud a location is due to environmental noise.

Considering this home?
Our expert will guide your tour, in-person or virtual
Need more information?
Text or call (888) 488-9243
Financials
Estimated monthly payment
Let us help you find your dream home
How many bedrooms are you looking for?
Similar homes nearby
Recently added communities in this area
Nearby communities in Plano
New homes in nearby cities
More New Homes in Plano, TX
- Jome
- New homes search
- Texas
- Dallas-Fort Worth Area
- Collin County
- Plano
- Mustang Square
- 8809 Shoppers Ln, Plano, TX 75024

























