




- 3 bd
- 2.5 ba
- 1,962 sqft
5021 Erwin Ct, Elgin, SC 29045
- Single-Family
- $145.77/sqft
- 188 days on Jome
New Homes for Sale Near 5021 Erwin Ct, Elgin, SC 29045
About this Home
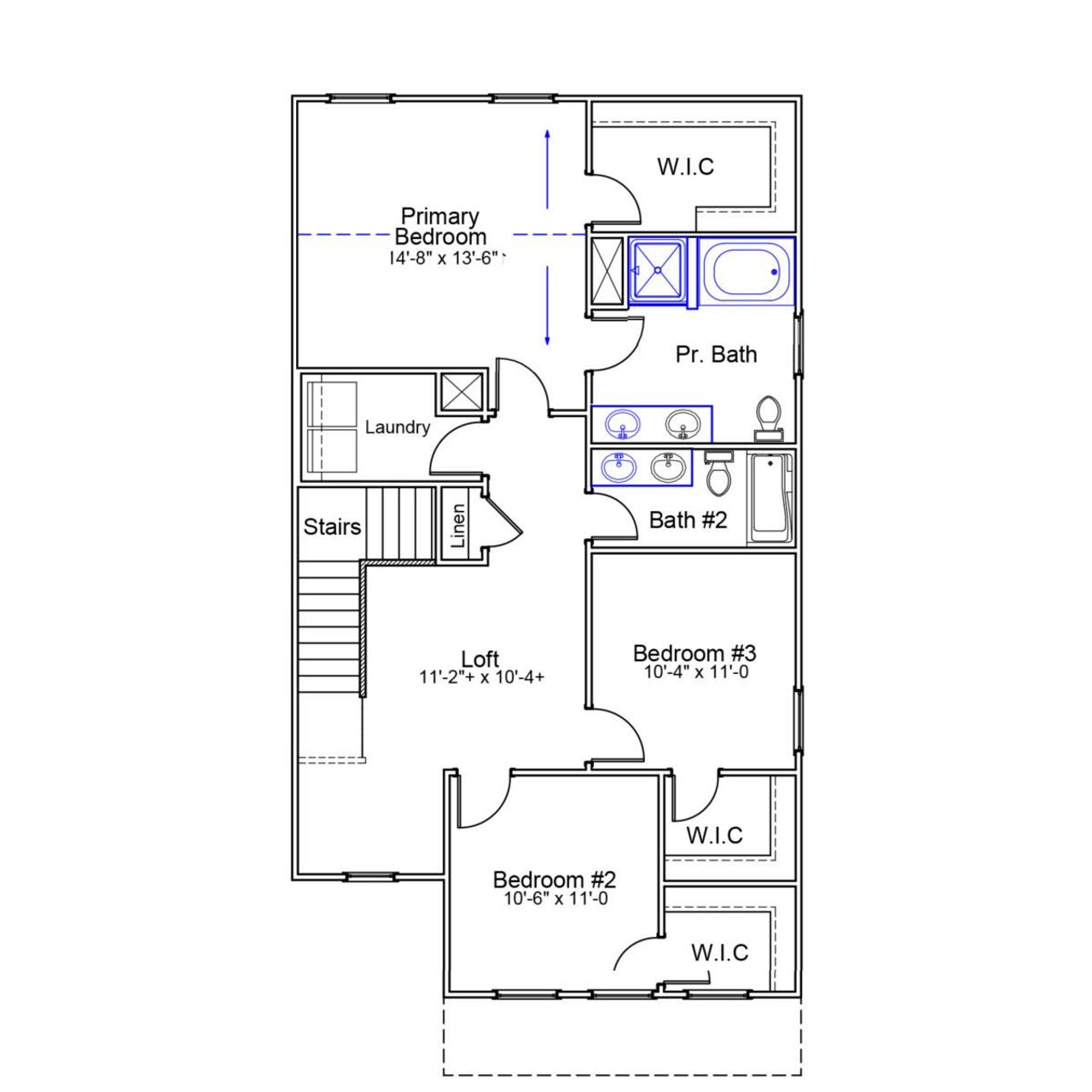
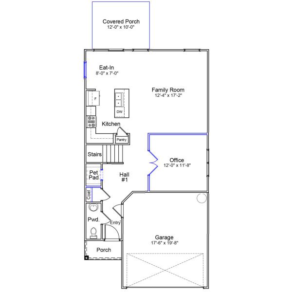
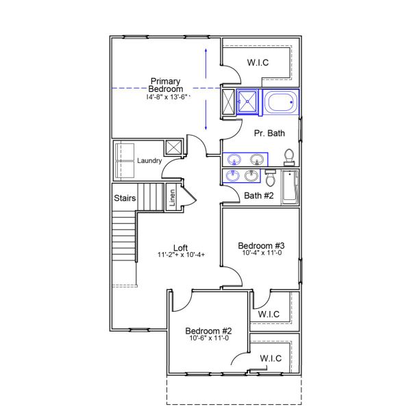
The Kershaw is a three bedroom, two- and one-half-bathroom home with a two-car garage! The main level features a thoughtful layout with a formal office with French doors, ideal for working from home. The kitchen houses a gas cooktop, cabinetry with crown and hardware, quartz countertops, and tile backsplash. A covered porch has been added to this home and makes perfect for enjoying your backyard, and a pet pad completes the main level. Upstairs, a sizable loft awaits! Two secondary bedrooms both feature walk-in closets and share a bathroom with dual sinks. The primary suite provides a vaulted ceiling, a large walk-in closet, dual sinks in the bathroom, and a separate tub and shower. The laundry room includes cabinetry and is conveniently located on the second level. Make the Kershaw your new home at Ellington!
May also be listed on the Mungo Homes website
Information last verified by Jome: Friday at 6:09 AM (December 19, 2025)
Home details
- Property status:
- Sold
- Size:
- 1,962 sqft
- Stories:
- 2
- Beds:
- 3
- Baths:
- 2
- Half baths:
- 1
- Garage spaces:
- 2
Construction details
- Builder Name:
- Mungo Homes
- Completion Date:
- January, 2026
Home features & finishes
- Garage/Parking:
- Garage
- Rooms:
- Primary Bedroom Upstairs

Community details
Ellington
by Mungo Homes, Elgin, SC
- 18 homes
- 18 plans
- 1,148 - 3,033 sqft
View Ellington details
More homes in Ellington
- Home at address 4022 Monetta Dr, Elgin, SC 29045

$244,366
Under construction- 3 bd
- 2.5 ba
- 1,476 sqft
4022 Monetta Dr, Elgin, SC 29045
- Home at address 5008 Erwin Ct, Elgin, SC 29045

$246,111
Under construction- 3 bd
- 2.5 ba
- 1,476 sqft
5008 Erwin Ct, Elgin, SC 29045
- Home at address 4026 Monetta Dr, Elgin, SC 29045

$258,462
Under construction- 3 bd
- 2.5 ba
- 1,617 sqft
4026 Monetta Dr, Elgin, SC 29045
- Home at address 4028 Monetta Dr, Elgin, SC 29045

$263,974
Under construction- 4 bd
- 2.5 ba
- 1,709 sqft
4028 Monetta Dr, Elgin, SC 29045
- Home at address 6028 Edgemont Ct, Elgin, SC 29045

$265,000
Under construction- 3 bd
- 2 ba
- 1,548 sqft
6028 Edgemont Ct, Elgin, SC 29045
- Home at address 5007 Erwin Ct, Elgin, SC 29045

$276,391
Under construction- 4 bd
- 2.5 ba
- 1,735 sqft
5007 Erwin Ct, Elgin, SC 29045
Floor plans in Ellington
- View details for Baker - Genesis Value Collection

Baker - Genesis Value Collection
$208,000+- 3 bd
- 2 ba
- 1,148 sqft
- View details for Bartow - Genesis Value Collection

Bartow - Genesis Value Collection
$227,000+- 3 bd
- 2.5 ba
- 1,476 sqft
About the builder - Mungo Homes
Neighborhood
Home address
Schools in Kershaw County School District
GreatSchools’ Summary Rating calculation is based on 4 of the school’s themed ratings, including test scores, student/academic progress, college readiness, and equity. This information should only be used as a reference. Jome is not affiliated with GreatSchools and does not endorse or guarantee this information. Please reach out to schools directly to verify all information and enrollment eligibility. Data provided by GreatSchools.org © 2025
Places of interest
Getting around
Air quality
Noise level
A Soundscore™ rating is a number between 50 (very loud) and 100 (very quiet) that tells you how loud a location is due to environmental noise.
Financials
Nearby communities in Elgin
Homes in Elgin by Mungo Homes
Recently added communities in this area
Other Builders in Elgin, SC
Nearby sold homes
New homes in nearby cities
More New Homes in Elgin, SC
- Jome
- New homes search
- South Carolina
- Kershaw County
- Elgin
- Ellington
- 5021 Erwin Ct, Elgin, SC 29045






































































