



Book your tour. Save an average of $18,473. We'll handle the rest.
We collect exclusive builder offers, book your tours, and support you from start to housewarming.
- Confirmed tours
- Get matched & compare top deals
- Expert help, no pressure
- No added fees
Estimated value based on Jome data, T&C apply
Why tour with Jome?
- No pressure toursTour at your own pace with no sales pressure
- Expert guidanceGet insights from our home buying experts
- Exclusive accessSee homes and deals not available elsewhere
Jome is featured in
- Single-Family
- Quick move-in
- $167.3/sqft
- $650/annual HOA
Home description
About this home
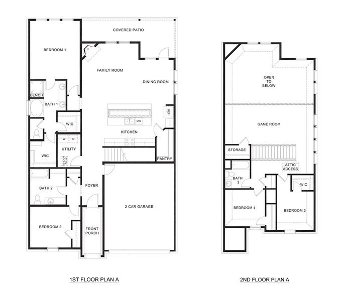
The Rosebud floorplan at Morning Ridge in Princeton, TX is a spacious two-story home offering 2,599 sq. ft. of thoughtfully designed living space with 4 bedrooms, 3 bathrooms, and a 2-car garage—perfect for today’s modern lifestyle.
The first floor features a welcoming front porch that opens into a foyer leading to an open-concept layout. The centrally located kitchen with a large island overlooks the family room and dining area, making it ideal for entertaining and everyday living. A walk-in pantry, nearby utility room, and covered patio add both convenience and comfort. The primary suite is located downstairs, offering privacy with an ensuite bath that includes dual sinks, a soaking tub, separate shower, and a spacious walk-in closet. A secondary bedroom and full bathroom on the main level provide a flexible space for guests or a home office.
Upstairs, you’ll find a spacious game room open to below, creating a light and airy feel. Two additional bedrooms, a full bathroom, and extra storage complete the second floor. With its smart layout, generous square footage, and flexible living spaces, the Rosebud floorplan at Morning Ridge is an ideal place to call home in Princeton, Texas.
May also be listed on the D.R. Horton website
Information last verified by Jome: Today at 5:41 AM (April 21, 2026)
Book your tour. Save an average of $18,473. We'll handle the rest.
We collect exclusive builder offers, book your tours, and support you from start to housewarming.
- Confirmed tours
- Get matched & compare top deals
- Expert help, no pressure
- No added fees
Estimated value based on Jome data, T&C apply
Home details
- Property status:
- Move-in ready
- Size:
- 2,624 sqft
- Stories:
- 2
- Beds:
- 4
- Baths:
- 3
- Garage spaces:
- 2
Construction details
- Builder Name:
- D.R. Horton
Home features & finishes
- Garage/Parking:
- Garage

Get a consultation with our New Homes Expert
- See how your home builds wealth
- Plan your home-buying roadmap
- Discover hidden gems

Community details
Morning Ridge
by D.R. Horton, Princeton, TX
- 17 homes
- 11 plans
- 1,847 - 3,059 sqft
View Morning Ridge details
More homes in Morning Ridge
- Home at address 1803 Sabina Dr, Princeton, TX 75407

Brookview
$340,990
- 4 bd
- 2 ba
- 1,847 sqft
1803 Sabina Dr, Princeton, TX 75407
- Home at address 1714 Sabina Dr, Princeton, TX 75407

Brookview
$340,990
- 4 bd
- 2 ba
- 1,847 sqft
1714 Sabina Dr, Princeton, TX 75407
- Home at address 1718 Sabina Dr, Princeton, TX 75407

Avery
$348,990
- 4 bd
- 2 ba
- 2,041 sqft
1718 Sabina Dr, Princeton, TX 75407
- Home at address 104 Abraham Ct, Princeton, TX 75407

Aspen
$356,490
- 4 bd
- 2 ba
- 2,077 sqft
104 Abraham Ct, Princeton, TX 75407
- Home at address 103 Rita Dr, Princeton, TX 75407

Avery
$356,490
- 4 bd
- 2 ba
- 2,041 sqft
103 Rita Dr, Princeton, TX 75407
- Home at address 1801 Sabina Dr, Princeton, TX 75407

Galena
$376,490
- 4 bd
- 3 ba
- 2,363 sqft
1801 Sabina Dr, Princeton, TX 75407
Floor plans in Morning Ridge
About the builder - D.R. Horton

- 1,152communities on Jome
- 10,637homes on Jome
Neighborhood
Home address
Schools in Princeton Independent School District
- Grades 06-08Publicmattei middle1.6 mi9055 county rd 728na
- Grades M-MPublicjames elementary1.6 mi8633 county rd 728na
GreatSchools’ Summary Rating calculation is based on 4 of the school’s themed ratings, including test scores, student/academic progress, college readiness, and equity. This information should only be used as a reference. Jome is not affiliated with GreatSchools and does not endorse or guarantee this information. Please reach out to schools directly to verify all information and enrollment eligibility. Data provided by GreatSchools.org © 2025
Places of interest
Getting around
Air quality
Noise level
A Soundscore™ rating is a number between 50 (very loud) and 100 (very quiet) that tells you how loud a location is due to environmental noise.

Considering this home?
Our expert will guide your tour, in-person or virtual
Need more information?
Text or call (888) 545-5198
Financials
Estimated monthly payment
Let us help you find your dream home
How many bedrooms are you looking for?
Similar homes nearby
Recently added communities in this area
Nearby communities in Princeton
New homes in nearby cities
More New Homes in Princeton, TX
- Jome
- New homes search
- Texas
- Dallas-Fort Worth Area
- Collin County
- Princeton
- Morning Ridge
- 100 Abraham Ct, Princeton, TX 75407



























