














Book your tour. Save an average of $18,473. We'll handle the rest.
We collect exclusive builder offers, book your tours, and support you from start to housewarming.
- Confirmed tours
- Get matched & compare top deals
- Expert help, no pressure
- No added fees
Estimated value based on Jome data, T&C apply


















- 4 bd
- 4.5 ba
- 3,823 sqft
225 Bee Balm Rd, McKinney, TX 75071
Why tour with Jome?
- No pressure toursTour at your own pace with no sales pressure
- Expert guidanceGet insights from our home buying experts
- Exclusive accessSee homes and deals not available elsewhere
Jome is featured in
- Single-Family
- Ready by July 2026
- $209.26/sqft
- $1,500/annual HOA
Home description
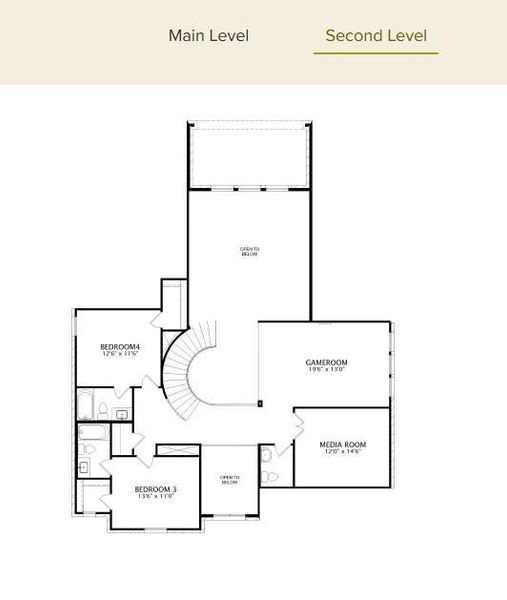
MLS# 21171864 - Built by Drees Custom Homes - Jul 2026 completion! ~ Discover this stunning new construction home, a traditional single-family residence in the desirable Trinity Falls subdivision. Spanning 3,823 sq. ft., this spacious layout features 4 primary bedrooms and 4 bathrooms plus powder bath, perfect for those seeking comfort and convenience. Double entry doors lead you into the heart of the home which boasts a curved staircase, open floorplan with an eat-in kitchen, pantry, and a cozy living area complete with gas log fireplace. The family room has soaring two story ceiling with lots of windows for natural light plus a wine bar perfect for entertaining. Primary bath features an oversized shower and freestanding tub plus yours and mine closets. A second bedroom down includes ensuite bath with shower. Enjoy ample space with three living areas and a single dining area, complemented by luxurious finishes like wood, ceramic tile, and plush carpet flooring. The property also features a covered patio-porch, ideal for outdoor relaxation. Situated on a generous lot, this home includes a sprinkler system for easy maintenance. Located within McKinney ISD, with Ruth and Harold Frazier Elementary nearby, it offers an exceptional lifestyle for all. Don't miss the chance to make this exquisite home yours!
HomesUSA.com, MLS 21171864
May also be listed on the Drees Custom Homes website
Information last verified by Jome: Today at 4:03 PM (February 16, 2026)
Home highlights
Book your tour. Save an average of $18,473. We'll handle the rest.
We collect exclusive builder offers, book your tours, and support you from start to housewarming.
- Confirmed tours
- Get matched & compare top deals
- Expert help, no pressure
- No added fees
Estimated value based on Jome data, T&C apply
Home details
- Property status:
- Under construction
- Lot size (acres):
- 0.19
- Size:
- 3,823 sqft
- Stories:
- 2
- Beds:
- 4
- Baths:
- 4
- Half baths:
- 1
- Garage spaces:
- 3
- Fence:
- Wood Fence
Construction details
- Builder Name:
- Drees Custom Homes
- Completion Date:
- July, 2026
- Year Built:
- 2026
- Roof:
- Roof Gutter, Composition Roofing, Shingle Roofing
Home features & finishes
- Appliances:
- Exhaust Fan VentedSprinkler System
- Construction Materials:
- CementBrick
- Cooling:
- Central Air
- Flooring:
- Ceramic FlooringWood FlooringCarpet FlooringTile Flooring
- Foundation Details:
- Slab
- Garage/Parking:
- Door OpenerGarageGarage StorageFront Entry Garage/ParkingAttached GarageTandem Parking
- Home amenities:
- Green Construction
- Interior Features:
- Walk-In ClosetFoyerPantrySound System WiringLoftDouble Vanity
- Kitchen:
- DishwasherMicrowave OvenDisposalGas CooktopGranite countertopKitchen IslandGourmet KitchenElectric Oven
- Laundry facilities:
- DryerWasherUtility/Laundry Room
- Property amenities:
- BarGas Log FireplaceBackyardOutdoor LivingPatioFireplaceYardSmart Home SystemPorch
- Rooms:
- Primary Bedroom On MainKitchenOffice/StudyDining RoomFamily RoomOpen Concept FloorplanPrimary Bedroom Downstairs
- Security system:
- Smoke DetectorCarbon Monoxide Detector

Get a consultation with our New Homes Expert
- See how your home builds wealth
- Plan your home-buying roadmap
- Discover hidden gems
Utility information
- Heating:
- Water Heater, Central Heating, Tankless water heater
- Utilities:
- City Water System, High Speed Internet Access, Cable TV

Community details
Trinity Falls 60 at Trinity Falls
by Drees Custom Homes, McKinney, TX
- 6 homes
- 9 plans
- 2,600 - 3,824 sqft
View Trinity Falls 60 details
Community amenities
- Playground
- Lake Access
- Fitness Center/Exercise Area
- Club House
- Community Pool
- Park Nearby
- Fishing Pond
- Sidewalks Available
- Greenbelt View
- Walking, Jogging, Hike Or Bike Trails
More homes in Trinity Falls 60
- Home at address 320 Bee Balm Rd, McKinney, TX 75071

Presley
$749,990
- 4 bd
- 4.5 ba
- 3,355 sqft
320 Bee Balm Rd, McKinney, TX 75071
- Home at address 309 Bee Balm Rd, McKinney, TX 75071

Brendan
$749,990
- 5 bd
- 4.5 ba
- 3,644 sqft
309 Bee Balm Rd, McKinney, TX 75071
- Home at address 332 Bay Laurel Rd, McKinney, TX 75071

Sumlin II
$749,990
- 4 bd
- 4.5 ba
- 3,816 sqft
332 Bay Laurel Rd, McKinney, TX 75071
- Home at address 240 S Bee Balm Rd, McKinney, TX 75071

Home
$764,990
- 4 bd
- 3.5 ba
- 3,496 sqft
240 S Bee Balm Rd, McKinney, TX 75071
- Home at address 240 Bee Balm Rd, McKinney, TX 75071

Brendan
$764,990
- 4 bd
- 3.5 ba
- 3,496 sqft
240 Bee Balm Rd, McKinney, TX 75071
Floor plans in Trinity Falls 60
About the builder - Drees Custom Homes
Neighborhood
Home address
Schools in McKinney Independent School District
- Grades KG-05Publicelementary #220.9 mi1600 n sweetwater cvna
GreatSchools’ Summary Rating calculation is based on 4 of the school’s themed ratings, including test scores, student/academic progress, college readiness, and equity. This information should only be used as a reference. Jome is not affiliated with GreatSchools and does not endorse or guarantee this information. Please reach out to schools directly to verify all information and enrollment eligibility. Data provided by GreatSchools.org © 2025
Places of interest
Getting around
Air quality

Considering this home?
Our expert will guide your tour, in-person or virtual
Need more information?
Text or call (888) 488-9243
Financials
Estimated monthly payment
Let us help you find your dream home
How many bedrooms are you looking for?
Similar homes nearby
Recently added communities in this area
Nearby communities in McKinney
New homes in nearby cities
More New Homes in McKinney, TX
HomesUSA.com, MLS 21171864
IDX information is provided exclusively for personal, non-commercial use, and may not be used for any purpose other than to identify prospective properties consumers may be interested in purchasing. You may not reproduce or redistribute this data, it is for viewing purposes only. This data is deemed reliable, but is not guaranteed accurate by the MLS or NTREIS.
Read moreLast checked Feb 16, 4:00 pm
- Jome
- New homes search
- Texas
- Dallas-Fort Worth Area
- Collin County
- McKinney
- Trinity Falls 60
- 225 Bee Balm Rd, McKinney, TX 75071


































