














Book your tour. Save an average of $18,473. We'll handle the rest.
- Confirmed tours
- Get matched & compare top deals
- Expert help, no pressure
- No added fees
Estimated value based on Jome data, T&C apply








Why tour with Jome?
- No pressure toursTour at your own pace with no sales pressure
- Expert guidanceGet insights from our home buying experts
- Exclusive accessSee homes and deals not available elsewhere
Jome is featured in
- Single-Family
- Ready by February 2026
- $133.22/sqft
- 25 days on Jome
Home description
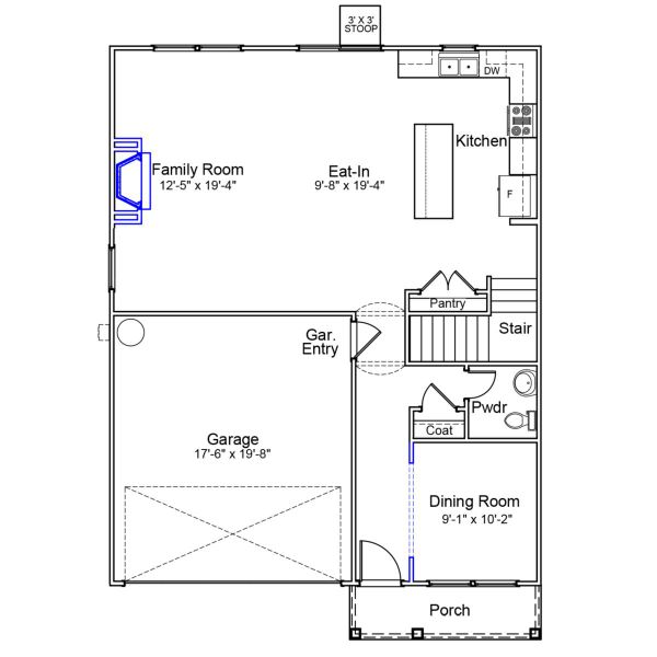
The Lancaster offers spacious two-story living with thoughtful design and modern comfort. This home features four bedrooms and two-and-one-half bathrooms, along with a two-car garage. Just off the entry, a formal dining room provides a welcoming touch and could easily serve as a home office or guest area as well. The kitchen and eat-in area open to the great room, where a cozy fireplace creates a perfect gathering spot. The entrance from the garage leads conveniently into the kitchen for easy access. Upstairs, the primary suite includes two linen closets, a large walk-in closet, and a private bath with a separate tub and shower. Three additional bedrooms share a full bathroom, and the laundry room is centrally located for convenience.
May also be listed on the Mungo Homes website
Information last verified by Jome: Today at 5:38 AM (December 6, 2025)
Home highlights
Book your tour. Save an average of $18,473. We'll handle the rest.
We collect exclusive builder offers, book your tours, and support you from start to housewarming.
- Confirmed tours
- Get matched & compare top deals
- Expert help, no pressure
- No added fees
Estimated value based on Jome data, T&C apply
Home details
- Property status:
- Under construction
- Size:
- 2,175 sqft
- Stories:
- 2
- Beds:
- 4
- Baths:
- 2
- Half baths:
- 1
- Garage spaces:
- 2
Construction details
- Builder Name:
- Mungo Homes
- Completion Date:
- February, 2026
Home features & finishes
- Garage/Parking:
- Garage
- Rooms:
- Primary Bedroom Upstairs

Community details
Killians Crossing
by Mungo Homes, Blythewood, SC
- 13 homes
- 18 plans
- 1,476 - 3,488 sqft
View Killians Crossing details
More homes in Killians Crossing
Floor plans in Killians Crossing
About the builder - Mungo Homes
Neighborhood
Home address
- City:
- Blythewood
- County:
- Richland
- Zip Code:
- 29016
Schools in Richland School District 2
GreatSchools’ Summary Rating calculation is based on 4 of the school’s themed ratings, including test scores, student/academic progress, college readiness, and equity. This information should only be used as a reference. Jome is not affiliated with GreatSchools and does not endorse or guarantee this information. Please reach out to schools directly to verify all information and enrollment eligibility. Data provided by GreatSchools.org © 2025
Getting around
Air quality
Noise level
A Soundscore™ rating is a number between 50 (very loud) and 100 (very quiet) that tells you how loud a location is due to environmental noise.
Natural hazards risk
Climate hazards can impact homes and communities, with risks varying by location. These scores reflect the potential impact of natural disasters and climate-related risks on Richland County
Provided by FEMA

Considering this home?
Our expert will guide your tour, in-person or virtual
Need more information?
Text or call (888) 486-2818
Financials
Estimated monthly payment
Similar homes nearby
Recently added communities in this area
Nearby communities in Blythewood
New homes in nearby cities
More New Homes in Blythewood, SC
- Home
- New homes
- South Carolina
- Richland County
- Blythewood
- Killians Crossing
- 14 Crosby Ln, Blythewood, SC 29016








































