













Book your tour. Save an average of $18,473. We'll handle the rest.
- Confirmed tours
- Get matched & compare top deals
- Expert help, no pressure
- No added fees
Estimated value based on Jome data, T&C apply
- 5 bd
- 3.5 ba
- 2,668 sqft
122 Kingsley Dr, Blythewood, SC 29016
Why tour with Jome?
- No pressure toursTour at your own pace with no sales pressure
- Expert guidanceGet insights from our home buying experts
- Exclusive accessSee homes and deals not available elsewhere
Jome is featured in
- Single-Family
- Ready by February 2026
- $119.82/sqft
- East facing
Home description
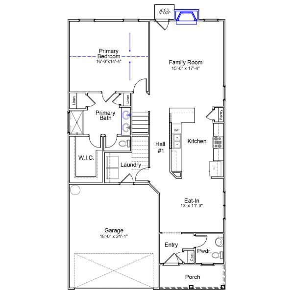
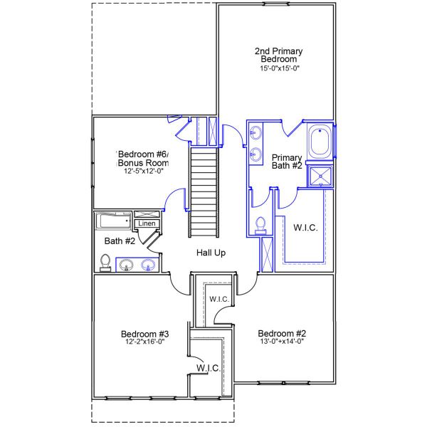
The Rutherford offers the perfect balance of comfort and flexibility with two primary suites—one on each floor. A charming front porch welcomes you inside, where the open layout begins with a bright eat-in area that flows into the kitchen and spacious great room featuring a cozy fireplace. The first-floor primary suite includes a vaulted ceiling, dual-sink vanity, walk-in shower, and a generous walk-in closet, with the laundry room conveniently nearby. Upstairs, a second primary suite awaits with a spa-like bath featuring a separate tub and shower plus dual vanities. Three additional bedrooms share a full hall bath with dual sinks, providing plenty of space for everyone. With a two-car garage and thoughtful design throughout, the Rutherford is ideal for today’s lifestyles.
May also be listed on the Mungo Homes website
Information last verified by Jome: Yesterday at 5:38 AM (December 6, 2025)
Home highlights
Book your tour. Save an average of $18,473. We'll handle the rest.
We collect exclusive builder offers, book your tours, and support you from start to housewarming.
- Confirmed tours
- Get matched & compare top deals
- Expert help, no pressure
- No added fees
Estimated value based on Jome data, T&C apply
Home details
- Property status:
- Under construction
- Size:
- 2,668 sqft
- Stories:
- 2
- Beds:
- 5
- Baths:
- 3
- Half baths:
- 1
- Garage spaces:
- 2
- Facing direction:
- East

Floor plan details
Rutherford - Genesis Value Collection
- 5 bd
- 3.5 ba
- 2,621 sqft
View Rutherford - Genesis Value Collection details
Construction details
- Builder Name:
- Mungo Homes
- Completion Date:
- February, 2026
Home features & finishes
- Garage/Parking:
- GarageAttached Garage
- Interior Features:
- Walk-In ClosetFoyerPantryLoft
- Laundry facilities:
- Utility/Laundry Room
- Property amenities:
- Porch
- Rooms:
- Primary Bedroom On MainKitchenPowder RoomDining RoomFamily RoomOpen Concept FloorplanPrimary Bedroom Downstairs

Community details
Killians Crossing
by Mungo Homes, Blythewood, SC
- 13 homes
- 18 plans
- 1,476 - 3,488 sqft
View Killians Crossing details
More homes in Killians Crossing
Floor plans in Killians Crossing
About the builder - Mungo Homes
Neighborhood
Home address
- City:
- Blythewood
- County:
- Richland
- Zip Code:
- 29016
Schools in Richland School District 2
GreatSchools’ Summary Rating calculation is based on 4 of the school’s themed ratings, including test scores, student/academic progress, college readiness, and equity. This information should only be used as a reference. Jome is not affiliated with GreatSchools and does not endorse or guarantee this information. Please reach out to schools directly to verify all information and enrollment eligibility. Data provided by GreatSchools.org © 2025
Places of interest
Getting around
Air quality
Noise level
A Soundscore™ rating is a number between 50 (very loud) and 100 (very quiet) that tells you how loud a location is due to environmental noise.
Natural hazards risk
Climate hazards can impact homes and communities, with risks varying by location. These scores reflect the potential impact of natural disasters and climate-related risks on Richland County
Provided by FEMA

Considering this home?
Our expert will guide your tour, in-person or virtual
Need more information?
Text or call (888) 486-2818
Financials
Estimated monthly payment
Similar homes nearby
Recently added communities in this area
Nearby communities in Blythewood
New homes in nearby cities
More New Homes in Blythewood, SC
- Home
- New homes
- South Carolina
- Richland County
- Blythewood
- Killians Crossing
- 122 Kingsley Dr, Blythewood, SC 29016
































