














Book your tour. Save an average of $18,473. We'll handle the rest.
- Confirmed tours
- Get matched & compare top deals
- Expert help, no pressure
- No added fees
Estimated value based on Jome data, T&C apply






- 4 bd
- 2.5 ba
- 2,392 sqft
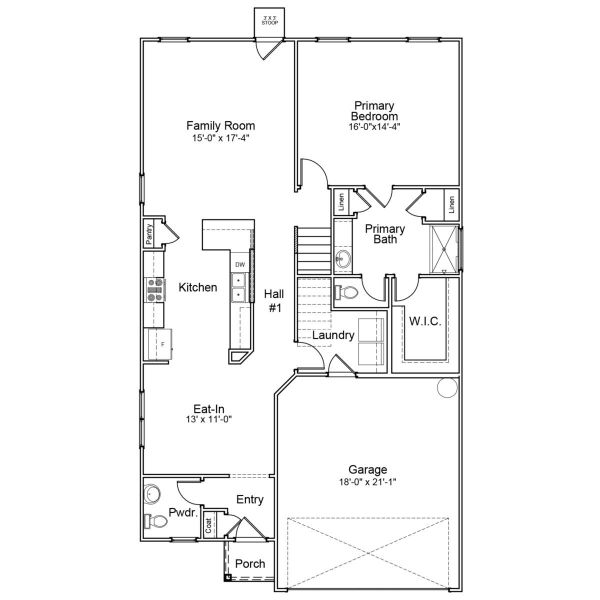
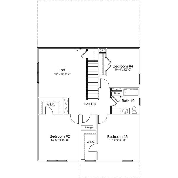
Monroe - Genesis Value Collection plan in Killians Crossing by Mungo Homes
Visit the community to experience this floor plan
Why tour with Jome?
- No pressure toursTour at your own pace with no sales pressure
- Expert guidanceGet insights from our home buying experts
- Exclusive accessSee homes and deals not available elsewhere
Jome is featured in
Plan description
May also be listed on the Mungo Homes website
Information last verified by Jome: Today at 5:52 AM (December 17, 2025)
Plan highlights
Plan details
- Name:
- Monroe - Genesis Value Collection
- Property status:
- Floor plan
- Size:
- 2,392 sqft
- Stories:
- 2
- Beds:
- 4
- Baths:
- 2
- Half baths:
- 1
- Garage spaces:
- 2
Plan features & finishes
- Garage/Parking:
- GarageAttached Garage
- Interior Features:
- Walk-In ClosetFoyerPantryLoft
- Laundry facilities:
- Utility/Laundry Room
- Property amenities:
- Porch
- Rooms:
- Primary Bedroom On MainKitchenPowder RoomDining RoomFamily RoomOpen Concept FloorplanPrimary Bedroom Downstairs
- Upgrade Options:
- Bonus RoomGarden TubCovered PorchFireplace

Get a consultation with our New Homes Expert
- See how your home builds wealth
- Plan your home-buying roadmap
- Discover hidden gems
See the full plan layout
Download the floor plan PDF with room dimensions and home design details.

Instant download, no cost

Community details
Killians Crossing
by Mungo Homes, Blythewood, SC
- 11 homes
- 18 plans
- 1,476 - 3,488 sqft
View Killians Crossing details
Want to know more about what's around here?
The Monroe - Genesis Value Collection floor plan is part of Killians Crossing, a new home community by Mungo Homes, located in Blythewood, SC. Visit the Killians Crossing community page for full neighborhood insights, including nearby schools, shopping, walk & bike-scores, commuting, air quality & natural hazards.

Homes built from this plan
Available homes in Killians Crossing
More floor plans in Killians Crossing

Considering this plan?
Our expert will guide your tour, in-person or virtual
Need more information?
Text or call (888) 486-2818
Financials
Estimated monthly payment
Let us help you find your dream home
How many bedrooms are you looking for?
Similar homes nearby
Recently added communities in this area
Nearby communities in Blythewood
New homes in nearby cities
More New Homes in Blythewood, SC
- Jome
- New homes search
- South Carolina
- Richland County
- Blythewood
- Killians Crossing
- Blythewood, SC 29016








































