








Book your tour. Save an average of $18,473. We'll handle the rest.
We collect exclusive builder offers, book your tours, and support you from start to housewarming.
- Confirmed tours
- Get matched & compare top deals
- Expert help, no pressure
- No added fees
Estimated value based on Jome data, T&C apply
























- 3 bd
- 2.5 ba
- 2,519 sqft
Russell - Genesis Value Collection plan in Killians Crossing by Mungo Homes
Visit the community to experience this floor plan
Why tour with Jome?
- No pressure toursTour at your own pace with no sales pressure
- Expert guidanceGet insights from our home buying experts
- Exclusive accessSee homes and deals not available elsewhere
Jome is featured in
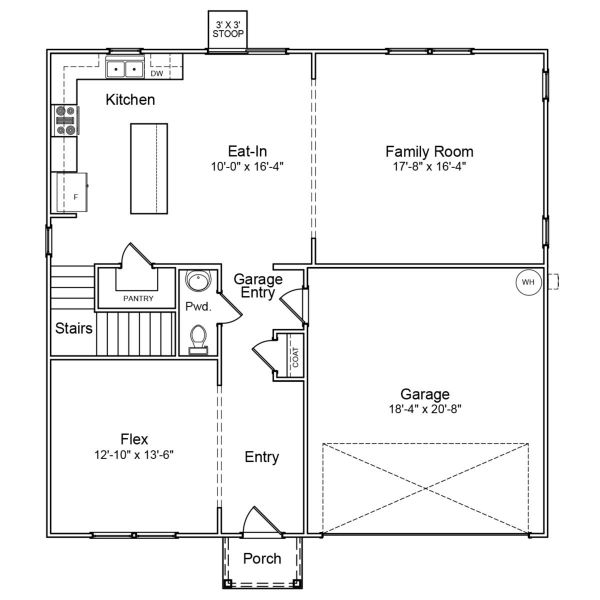
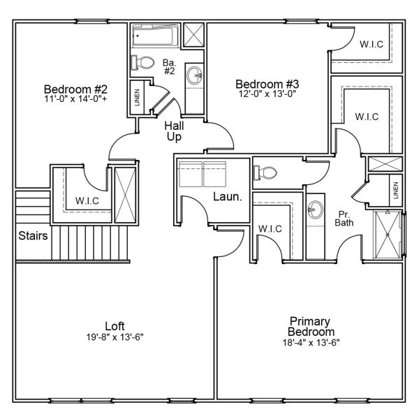
Plan description
May also be listed on the Mungo Homes website
Information last verified by Jome: Today at 5:32 AM (April 1, 2026)
Plan details
- Name:
- Russell - Genesis Value Collection
- Property type:
- Floor plan
- Community:
- Killians Crossing
- Builder:
- Mungo Homes
- Size:
- 2,519 sqft
- Stories:
- 2
- Beds:
- 3
- Baths:
- 2
- Half baths:
- 1
- Garage spaces:
- 2
Plan features & finishes
- Garage/Parking:
- GarageAttached Garage
- Interior Features:
- Walk-In ClosetFoyerPantryLoft
- Laundry facilities:
- Utility/Laundry Room
- Property amenities:
- Porch
- Rooms:
- Flex RoomKitchenPowder RoomDining RoomFamily RoomOpen Concept FloorplanPrimary Bedroom Upstairs
- Upgrade Options:
- Office/StudyGarden TubCovered PorchFireplaceLaundry Cabinets

Get a consultation with our New Homes Expert
- See how your home builds wealth
- Plan your home-buying roadmap
- Discover hidden gems
See the full plan layout
Download the floor plan PDF with room dimensions and home design details.

Instant download, no cost

Community details
Killians Crossing
by Mungo Homes, Blythewood, SC
- 11 homes
- 18 plans
- 1,476 - 3,488 sqft
View Killians Crossing details
Want to know more about what's around here?
The Russell - Genesis Value Collection floor plan is part of Killians Crossing, a new home community by Mungo Homes, located in Blythewood, SC. Visit the Killians Crossing community page for full neighborhood insights, including nearby schools, shopping, walk & bike-scores, commuting, air quality & natural hazards.

Available homes in Killians Crossing
- Home at address 159 Kingsley Dr, Blythewood, SC 29016

Brunswick
$262,477
- 3 bd
- 2.5 ba
- 1,548 sqft
159 Kingsley Dr, Blythewood, SC 29016
- Home at address 185 Kingsley Dr, Blythewood, SC 29016

Brunswick
$267,315
- 3 bd
- 2 ba
- 1,548 sqft
185 Kingsley Dr, Blythewood, SC 29016
- Home at address 237 Kingsley Dr, Blythewood, SC 29016

Guilford
$271,717
- 4 bd
- 2.5 ba
- 1,772 sqft
237 Kingsley Dr, Blythewood, SC 29016
- Home at address 137 Kingsley Dr, Blythewood, SC 29016

Lancaster
$293,000
- 4 bd
- 2.5 ba
- 2,177 sqft
137 Kingsley Dr, Blythewood, SC 29016
- Home at address 179 Kingsley Dr, Blythewood, SC 29016

Lancaster
$294,016
- 5 bd
- 3 ba
- 2,175 sqft
179 Kingsley Dr, Blythewood, SC 29016
- Home at address 187 Kingsley Dr, Blythewood, SC 29016

Lancaster
$302,346
- 5 bd
- 3 ba
- 2,166 sqft
187 Kingsley Dr, Blythewood, SC 29016
More floor plans in Killians Crossing
- View details for Bartow - Genesis Value Collection

Bartow - Genesis Value Collection
$219,000+- 3 bd
- 2.5 ba
- 1,476 sqft
- View details for Dawson - Genesis Value Collection

Dawson - Genesis Value Collection
$221,000+- 3 bd
- 2.5 ba
- 1,617 sqft

Considering this plan?
Our expert will guide your tour, in-person or virtual
Need more information?
Text or call (888) 545-5198
Financials
Estimated monthly payment
Let us help you find your dream home
How many bedrooms are you looking for?
Similar homes nearby
Recently added communities in this area
Nearby communities in Blythewood
New homes in nearby cities
More New Homes in Blythewood, SC
- Jome
- New homes search
- South Carolina
- Richland County
- Blythewood
- Killians Crossing
- Blythewood, SC 29016






























