




Book your tour. Save an average of $18,473. We'll handle the rest.
- Confirmed tours
- Get matched & compare top deals
- Expert help, no pressure
- No added fees
Estimated value based on Jome data, T&C apply
Why tour with Jome?
- No pressure toursTour at your own pace with no sales pressure
- Expert guidanceGet insights from our home buying experts
- Exclusive accessSee homes and deals not available elsewhere
Jome is featured in
- Single-Family
- Ready by March 2026
- $129.6/sqft
- 2 days on Jome
Home description
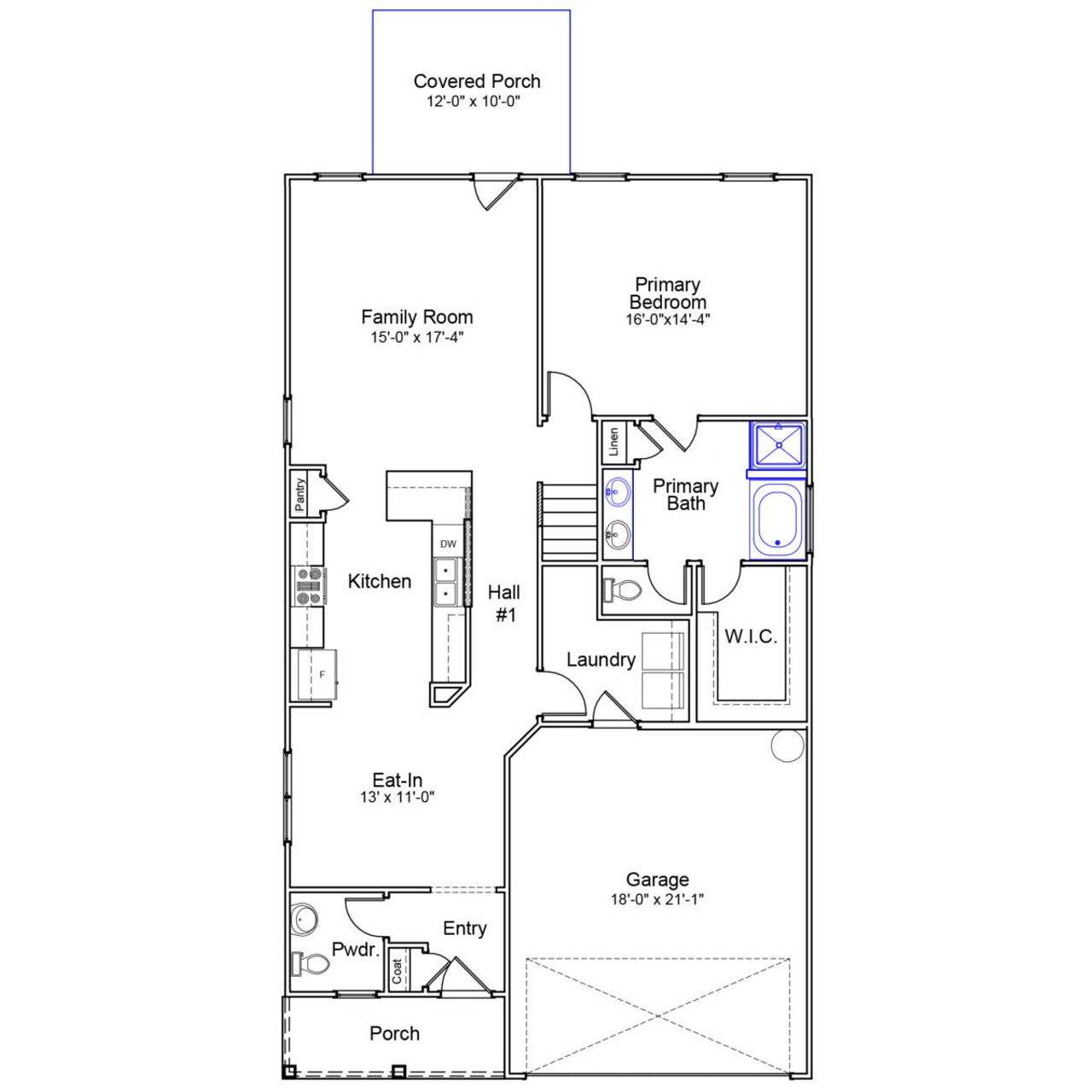
Welcome to the Monroe C in Killian's Crossing—a home designed for modern living and everyday comfort! The open-concept main floor showcases a bright eat-in kitchen, convenient powder room, laundry room plus hardwood stair treads. The first-floor primary suite is a private retreat a spacious walk-in closet, and a spa-like bath with a garden tub with a separate walk-in shower. Step outside to the covered rear porch, perfect for relaxing or entertaining. Upstairs, you’ll find three generous bedrooms, a dual-sink hall bath, and a large loft.
May also be listed on the Mungo Homes website
Information last verified by Jome: Today at 5:45 AM (January 7, 2026)
Book your tour. Save an average of $18,473. We'll handle the rest.
We collect exclusive builder offers, book your tours, and support you from start to housewarming.
- Confirmed tours
- Get matched & compare top deals
- Expert help, no pressure
- No added fees
Estimated value based on Jome data, T&C apply
Home details
- Property status:
- Under construction
- Size:
- 2,405 sqft
- Stories:
- 2
- Beds:
- 4
- Baths:
- 2
- Half baths:
- 1
- Garage spaces:
- 2
Construction details
- Builder Name:
- Mungo Homes
- Completion Date:
- March, 2026
Home features & finishes
- Garage/Parking:
- Garage
- Rooms:
- Primary Bedroom Downstairs

Community details
Killians Crossing
by Mungo Homes, Blythewood, SC
- 8 homes
- 18 plans
- 1,476 - 3,488 sqft
View Killians Crossing details
More homes in Killians Crossing
- 130 Kingsley Dr, Blythewood, SC 29016

Guilford
$264,160
- 4 bd
- 2.5 ba
- 1,816 sqft
130 Kingsley Dr, Blythewood, SC 29016
- 14 Crosby Ln, Blythewood, SC 29016

Lancaster
$289,752
- 4 bd
- 2.5 ba
- 2,175 sqft
14 Crosby Ln, Blythewood, SC 29016
- 137 Kingsley Dr, Blythewood, SC 29016

Lancaster
$294,160
- 4 bd
- 2.5 ba
- 2,177 sqft
137 Kingsley Dr, Blythewood, SC 29016
- 143 Kingsley Dr, Blythewood, SC 29016

Monroe
$299,160
- 4 bd
- 2.5 ba
- 2,415 sqft
143 Kingsley Dr, Blythewood, SC 29016
- 122 Kingsley Dr, Blythewood, SC 29016

Rutherford
$308,160
- 5 bd
- 3.5 ba
- 2,668 sqft
122 Kingsley Dr, Blythewood, SC 29016
Floor plans in Killians Crossing

Lancaster - Genesis Value Collection
- 4 bd
- 2.5 ba
- 2,152 sqft

Rutherford - Genesis Value Collection
- 5 bd
- 3.5 ba
- 2,621 sqft
About the builder - Mungo Homes
Neighborhood
Home address
- City:
- Blythewood
- County:
- Richland
- Zip Code:
- 29016
Schools in Richland School District 2
GreatSchools’ Summary Rating calculation is based on 4 of the school’s themed ratings, including test scores, student/academic progress, college readiness, and equity. This information should only be used as a reference. Jome is not affiliated with GreatSchools and does not endorse or guarantee this information. Please reach out to schools directly to verify all information and enrollment eligibility. Data provided by GreatSchools.org © 2025
Places of interest
Getting around
Air quality
Noise level
A Soundscore™ rating is a number between 50 (very loud) and 100 (very quiet) that tells you how loud a location is due to environmental noise.

Considering this home?
Our expert will guide your tour, in-person or virtual
Need more information?
Text or call (888) 486-2818
Financials
Estimated monthly payment
Similar homes nearby
Recently added communities in this area
Nearby communities in Blythewood
New homes in nearby cities
More New Homes in Blythewood, SC
- Jome
- New homes search
- South Carolina
- Richland County
- Blythewood
- Killians Crossing
- 151 Kingsley Dr, Blythewood, SC 29016

































