



Book your tour. Save an average of $18,473. We'll handle the rest.
We collect exclusive builder offers, book your tours, and support you from start to housewarming.
- Confirmed tours
- Get matched & compare top deals
- Expert help, no pressure
- No added fees
Estimated value based on Jome data, T&C apply

Why tour with Jome?
- No pressure toursTour at your own pace with no sales pressure
- Expert guidanceGet insights from our home buying experts
- Exclusive accessSee homes and deals not available elsewhere
Jome is featured in
- Single-Family
- Ready by June 2026
- $122.48/sqft
- 46 days on Jome
Home description
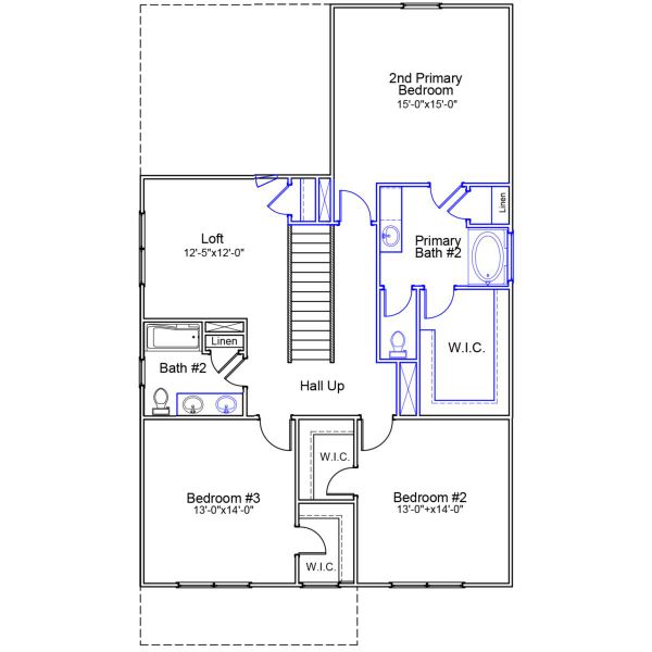
The Rutherford offers the perfect balance of comfort and flexibility with two primary suites—one on the main floor and the second upstairs. This charming home features stone at the water table and backs up to protected space. As you enter, the open layout begins with a bright eat-in area that flows seamlessly into the kitchen and spacious family room. The first-floor primary suite includes a dual-sink vanity, walk-in shower, and a generous walk-in closet, with the laundry room conveniently located nearby. The kitchen features a bar countertop and two pantries for added storage. Upstairs, you’ll find the second primary suite with a garden tub, spacious closet, linen closet, and water closet, along with two additional large bedrooms that share a dual-vanity bath and a large loft. With a two-car garage and thoughtful design throughout, the Rutherford is ideal for today’s lifestyles.
May also be listed on the Mungo Homes website
Information last verified by Jome: Yesterday at 6:10 AM (May 3, 2026)
Book your tour. Save an average of $18,473. We'll handle the rest.
We collect exclusive builder offers, book your tours, and support you from start to housewarming.
- Confirmed tours
- Get matched & compare top deals
- Expert help, no pressure
- No added fees
Estimated value based on Jome data, T&C apply
Home details
- Property status:
- Under construction
- Size:
- 2,621 sqft
- Stories:
- 2
- Beds:
- 4
- Baths:
- 3
- Half baths:
- 1
- Garage spaces:
- 2
Construction details
- Builder Name:
- Mungo Homes
- Completion Date:
- June, 2026
Home features & finishes
- Garage/Parking:
- Garage
- Rooms:
- Primary Bedroom Downstairs

Get a consultation with our New Homes Expert
- See how your home builds wealth
- Plan your home-buying roadmap
- Discover hidden gems

Community details
Killians Crossing
by Mungo Homes, Blythewood, SC
- 9 homes
- 6 plans
- 1,548 - 2,621 sqft
View Killians Crossing details
More homes in Killians Crossing
- Home at address 246 Kingsley Dr, Blythewood, SC 29016

Guilford
$276,455
- 4 bd
- 2.5 ba
- 1,796 sqft
246 Kingsley Dr, Blythewood, SC 29016
- Home at address 126 Kingsley Dr, Blythewood, SC 29016

Lancaster
$305,000
- 5 bd
- 3 ba
- 2,152 sqft
126 Kingsley Dr, Blythewood, SC 29016
- Home at address 187 Kingsley Dr, Blythewood, SC 29016

Lancaster
$307,346
- 5 bd
- 3 ba
- 2,166 sqft
187 Kingsley Dr, Blythewood, SC 29016
- Home at address 161 Kingsley Dr, Blythewood, SC 29016

Monroe
$309,000
- 4 bd
- 2.5 ba
- 2,392 sqft
161 Kingsley Dr, Blythewood, SC 29016
- Home at address 165 Kingsley Dr, Blythewood, SC 29016

Meriwether
$311,000
- 4 bd
- 3 ba
- 2,260 sqft
165 Kingsley Dr, Blythewood, SC 29016
- Home at address 410 Whitehaven Wy, Blythewood, SC 29016

Meriwether
$314,441
- 4 bd
- 3 ba
- 2,237 sqft
410 Whitehaven Wy, Blythewood, SC 29016
Floor plans in Killians Crossing
- View details for Guilford - Genesis Value Collection

Guilford - Genesis Value Collection
$247,000+- 4 bd
- 2.5 ba
- 1,772 sqft
- View details for Lancaster - Genesis Value Collection

Lancaster - Genesis Value Collection
$261,000+- 4 bd
- 2.5 ba
- 2,152 sqft
About the builder - Mungo Homes
Neighborhood
Home address
- City:
- Blythewood
- County:
- Richland
- Zip Code:
- 29016
Schools in Richland School District 2
GreatSchools’ Summary Rating calculation is based on 4 of the school’s themed ratings, including test scores, student/academic progress, college readiness, and equity. This information should only be used as a reference. Jome is not affiliated with GreatSchools and does not endorse or guarantee this information. Please reach out to schools directly to verify all information and enrollment eligibility. Data provided by GreatSchools.org © 2025
Places of interest
Getting around
Air quality
Noise level
A Soundscore™ rating is a number between 50 (very loud) and 100 (very quiet) that tells you how loud a location is due to environmental noise.

Considering this home?
Our expert will guide your tour, in-person or virtual
Need more information?
Text or call (888) 545-5198
Financials
Estimated monthly payment
Let us help you find your dream home
How many bedrooms are you looking for?
Similar homes nearby
Recently added communities in this area
Nearby communities in Blythewood
New homes in nearby cities
More New Homes in Blythewood, SC
- Jome
- New homes search
- South Carolina
- Richland County
- Blythewood
- Killians Crossing
- 233 Kingsley Dr, Blythewood, SC 29016




























