








































- 4 bd
- 2.5 ba
- 2,338 sqft
480 Leathertree Ln, Blythewood, SC 29016
- Single-Family
- $154.03/sqft
- 66 days on Jome
New Homes for Sale Near 480 Leathertree Ln, Blythewood, SC 29016
About this Home
About this home
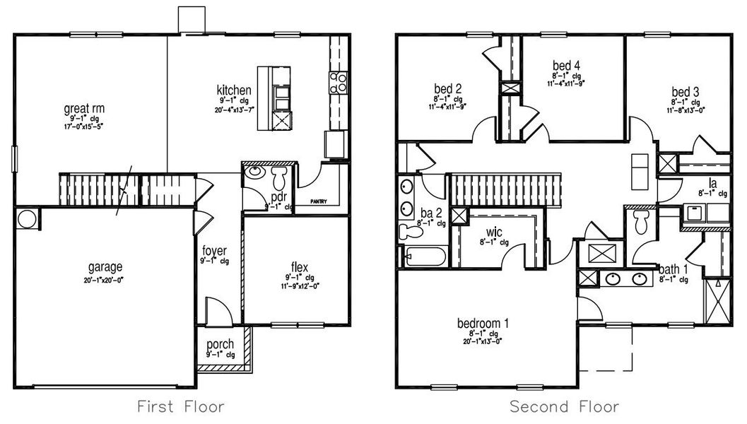
Welcome to the Galen at 480 Leathertree Lane in Blythewood, SC, a 2-story home with durable Hardie Plank siding and a 2-car garage. The Galen's classic design offers an open concept main level. The kitchen, featuring a floating island with room for seating, and an oversized pantry, flows into a casual eating area then into the spacious family room. Luxury vinyl Revwood flooring finishes these main living areas. The kitchen area also comes finished with white quartz countertops, tile backsplash, and gray cabinetry (although white is pictured). An additional flex room on the first floor could be a dedicated home office or even a formal dining room. Upstairs includes a large primary bedroom with expansive bath and generous-sized walk-in closet. The laundry room, conveniently located near the primary bedroom, and three secondary bedrooms complete the second level. Enjoy the peaceful atmosphere of Leatherstone from covered front and back patios.
The location of Leatherstone is ideal, as it is located just down the road from I-77 access. The upcoming Scout plant and Downtown Columbia are both just short commutes from this community. Not the mention, you are just down the street from other booming areas such as Killian Road, Hardscrabble Road, and the Town of Blythewood.
This home features our D.R. Horton's Home is Connected® package, an industry leading suite of smart home products that keeps homeowners connected with the people and place they value the most. The technology allows homeowners to monitor and control their home from the couch or across the globe.
*The photos you see here are for illustration purposes only, interior and exterior features, options, colors and selections will differ. Please see sales agent for options.
May also be listed on the D.R. Horton website
Information last verified by Jome: Monday at 1:01 AM (March 30, 2026)
Home details
- Property status:
- Sold
- Size:
- 2,338 sqft
- Stories:
- 2
- Beds:
- 4
- Baths:
- 2.5
- Garage spaces:
- 2
Construction details
- Builder Name:
- D.R. Horton
Home features & finishes
- Garage/Parking:
- Garage

Community details
Leatherstone
by D.R. Horton, Blythewood, SC
- 6 homes
- 8 plans
- 1,459 - 2,713 sqft
View Leatherstone details
More homes in Leatherstone
- Home at address 430 Leathertree Ln, Blythewood, SC 29016

$385,900
Move-in ready- 5 bd
- 3.5 ba
- 2,713 sqft
430 Leathertree Ln, Blythewood, SC 29016
- Home at address 407 Leathertree Ln, Blythewood, SC 29016

$424,020
Move-in ready- 4 bd
- 2 ba
- 2,305 sqft
407 Leathertree Ln, Blythewood, SC 29016
Floor plans in Leatherstone
About the builder - D.R. Horton

- 1,147communities on Jome
- 11,281homes on Jome
Neighborhood
Home address
- City:
- Blythewood
- County:
- Richland
- Zip Code:
- 29016
Schools in Richland School District 2
GreatSchools’ Summary Rating calculation is based on 4 of the school’s themed ratings, including test scores, student/academic progress, college readiness, and equity. This information should only be used as a reference. Jome is not affiliated with GreatSchools and does not endorse or guarantee this information. Please reach out to schools directly to verify all information and enrollment eligibility. Data provided by GreatSchools.org © 2025
Places of interest
Getting around
Air quality
Noise level
A Soundscore™ rating is a number between 50 (very loud) and 100 (very quiet) that tells you how loud a location is due to environmental noise.
Financials
Nearby communities in Blythewood
Homes in Blythewood by D.R. Horton
Recently added communities in this area
Other Builders in Blythewood, SC
Nearby sold homes
New homes in nearby cities
More New Homes in Blythewood, SC
- Jome
- New homes search
- South Carolina
- Richland County
- Blythewood
- Leatherstone
- 480 Leathertree Ln, Blythewood, SC 29016
































































