





- 4 bd
- 3.5 ba
- 2,703 sqft
4214 Sweet Ivy Lndg, Durham, NC 27703
- Single-Family
- $236.4/sqft
- $105/monthly HOA
- 266 days on Jome
New Homes for Sale Near 4214 Sweet Ivy Lndg, Durham, NC 27703
About this Home
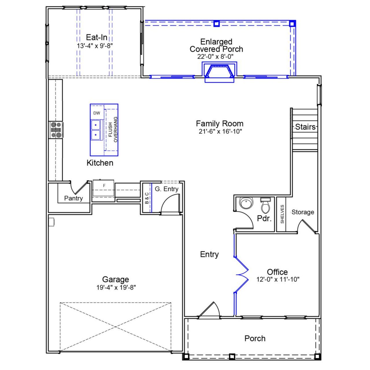
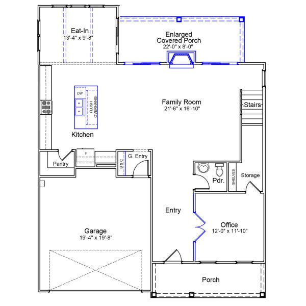
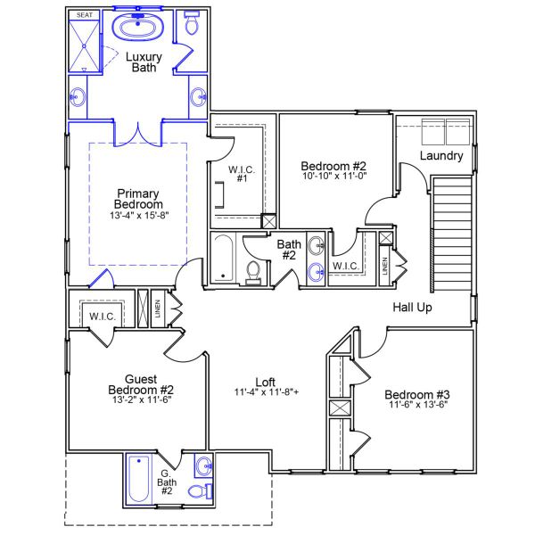
This newly constructed two-story home offers a functional and stylish layout designed for modern living. The main floor features an open-concept design with a spacious great room, formal dining area with boxed beam ceiling detail, and a dedicated office. An enlarged covered porch provides comfortable outdoor living space. The kitchen includes a central island, quartz countertops, and a double sink, while vinyl flooring runs through the main living areas. Upstairs, the primary suite includes a sitting area, boxed ceiling, freestanding tub, tile shower, and dual vanities. Additional bedrooms include their own full baths, with one offering a tiled shower. A loft and a second guest suite add flexibility. Other highlights include luxury vinyl plank flooring and carpet throughout, a traditional staircase with metal spindles, boxed wood stairs, built-in cubbies, smart home prewiring, and a finished laundry area with cabinets and utility sink. The home also includes a fireplace with a mantel, full gutters, architectural shingles, and a two-car garage with opener.
May also be listed on the Mungo Homes website
Information last verified by Jome: Saturday at 5:34 AM (March 21, 2026)
Home details
- Property status:
- Sold
- Size:
- 2,703 sqft
- Stories:
- 2
- Beds:
- 4
- Baths:
- 3
- Half baths:
- 1
- Garage spaces:
- 2

Floor plan details
Roanoke - Vanguard Collection
- 4 bd
- 2.5 ba
- 2,708 sqft
View Roanoke - Vanguard Collection details
Construction details
- Builder Name:
- Mungo Homes
- Completion Date:
- April, 2026
Home features & finishes
- Garage/Parking:
- GarageAttached Garage
- Interior Features:
- Walk-In ClosetPantryLoft
- Kitchen:
- Kitchen Island
- Laundry facilities:
- Utility/Laundry Room
- Property amenities:
- PatioPorch
- Rooms:
- Flex RoomKitchenPowder RoomFamily RoomOpen Concept FloorplanPrimary Bedroom Upstairs

Community details
Sweetbrier
by Mungo Homes, Durham, NC
- 28 homes
- 18 plans
- 1,671 - 4,009 sqft
View Sweetbrier details
More homes in Sweetbrier
- Home at address 2113 Pink Peony Cir, Durham, NC 27703
Savings$425,000
Move-in ready- 4 bd
- 3.5 ba
- 2,459 sqft
2113 Pink Peony Cir, Durham, NC 27703
- Home at address 944 Westerland Wy, Unit 140, Durham, NC 27703

$441,250
Move-in ready- 4 bd
- 3.5 ba
- 2,473 sqft
944 Westerland Wy, Unit 140, Durham, NC 27703
- Home at address 944 Westerland Wy, Durham, NC 27703
Savings$455,894
Under construction- 4 bd
- 3.5 ba
- 2,473 sqft
944 Westerland Wy, Durham, NC 27703
- Home at address 2122 Pink Peony Cir, Durham, NC 27703
Savings$467,265
Move-in ready- 4 bd
- 3.5 ba
- 2,472 sqft
2122 Pink Peony Cir, Durham, NC 27703
- Home at address 946 Westerland Wy, Durham, NC 27703
Savings$469,865
Under construction- 4 bd
- 3.5 ba
- 2,459 sqft
946 Westerland Wy, Durham, NC 27703
- Home at address 946 Westerland Wy, Unit 141, Durham, NC 27703

$469,865
Move-in ready- 4 bd
- 3.5 ba
- 2,459 sqft
946 Westerland Wy, Unit 141, Durham, NC 27703
Floor plans in Sweetbrier
- View details for Lacey - Vanguard Collection

Lacey - Vanguard Collection
$485,000+- 4 bd
- 3.5 ba
- 2,465 sqft
- View details for Nantahala II - Vanguard Collection

Nantahala II - Vanguard Collection
$537,000+- 4 bd
- 2.5 ba
- 2,450 sqft
About the builder - Mungo Homes
Neighborhood
Home address
Schools in Durham Public Schools
GreatSchools’ Summary Rating calculation is based on 4 of the school’s themed ratings, including test scores, student/academic progress, college readiness, and equity. This information should only be used as a reference. Jome is not affiliated with GreatSchools and does not endorse or guarantee this information. Please reach out to schools directly to verify all information and enrollment eligibility. Data provided by GreatSchools.org © 2025
Places of interest
Getting around
Air quality
Noise level
A Soundscore™ rating is a number between 50 (very loud) and 100 (very quiet) that tells you how loud a location is due to environmental noise.
Financials
Nearby communities in Durham
Homes in Durham Neighborhoods
- Morehead Hill
- Watts Hospital-Hillandale
- Downtown
- Omah Street
- Northgate Park
- Warehouse District
- Pleasant Drive
- Forest Hills
- Oak Grove Community
- Scarsdale Village
- Hope Valley
- Walltown
- Northeast Hills
- Old East Durham
- Colvard Farms
- Milan Woods
- Merrick Moore
- Lyon Park
- Lochaven Hills
- Duke Homestead
- Tuscaloosa-Lakewood
- Old North Durham
- Cleveland-Holloway
- Hope Valley Farms
- Southside / St. Teresa
Homes in Durham by Mungo Homes
Recently added communities in this area
Other Builders in Durham, NC
Nearby sold homes
New homes in nearby cities
More New Homes in Durham, NC
- Jome
- New homes search
- North Carolina
- Raleigh-Durham Area
- Durham County
- Durham
- Sweetbrier
- 4214 Sweet Ivy Lndg, Durham, NC 27703



































































