








Book your tour. Save an average of $18,473. We'll handle the rest.
We collect exclusive builder offers, book your tours, and support you from start to housewarming.
- Confirmed tours
- Get matched & compare top deals
- Expert help, no pressure
- No added fees
Estimated value based on Jome data, T&C apply



Why tour with Jome?
- No pressure toursTour at your own pace with no sales pressure
- Expert guidanceGet insights from our home buying experts
- Exclusive accessSee homes and deals not available elsewhere
Jome is featured in
- Single-Family
- Ready by August 2026
- $182.3/sqft
- $105/monthly HOA
Builder deals available
- TOP-TIER DEAL
VA 30 Year Fixed
$12,460 est. value- Rate buydown from 3.49% (1 year) with 4.733% APR
FHA 30 Year Fixed
$1,090 est. value- Rate buydown from 3.49% (1 year) with 5.422% APR and 3.5% down payment
Deals may change and are not guaranteed. Some deals apply to specific homes or plans. Not a financing offer. Eligibility varies by lender. Please verify details.
Home description
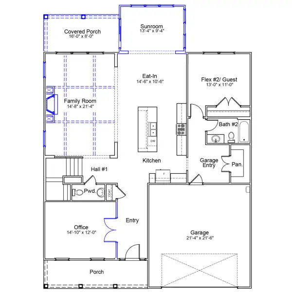
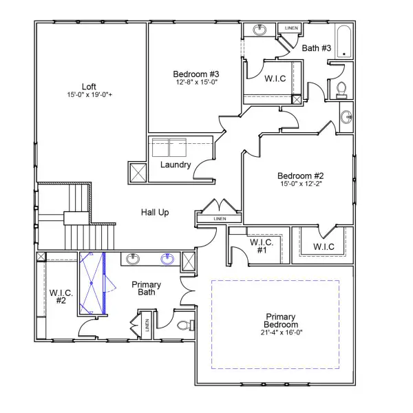
This thoughtfully designed two story home balances open concept living with flexible, private spaces. The welcoming front porch opens to a defined entryway, with a private home office located just off the foyer—ideal for working from home. At the center of the home, the spacious great room flows seamlessly into the eat in kitchen, featuring a large island, ample counter space, and a pantry. A covered porch and sunroom extends the living area outdoors, perfect for relaxing or hosting. A convenient powder room and attached two car garage complete the main level. Upstairs, the private primary suite offers a generous bedroom, walk in closet, and ensuite bath. Three additional bedrooms, including two with walk closets, provide comfortable accommodations for family or guests. A versatile bonus room, two full baths, and a centrally located laundry room round out the upper level, offering everyday convenience and space for everyone.
May also be listed on the Mungo Homes website
Information last verified by Jome: Today at 5:41 AM (April 22, 2026)
Book your tour. Save an average of $18,473. We'll handle the rest.
We collect exclusive builder offers, book your tours, and support you from start to housewarming.
- Confirmed tours
- Get matched & compare top deals
- Expert help, no pressure
- No added fees
Estimated value based on Jome data, T&C apply
Home details
- Property status:
- Under construction
- Size:
- 3,706 sqft
- Stories:
- 2
- Beds:
- 5
- Baths:
- 4
- Half baths:
- 1
- Garage spaces:
- 2
Construction details
- Builder Name:
- Mungo Homes
- Completion Date:
- August, 2026
Home features & finishes
- Garage/Parking:
- Garage
- Rooms:
- Primary Bedroom Upstairs

Get a consultation with our New Homes Expert
- See how your home builds wealth
- Plan your home-buying roadmap
- Discover hidden gems

Community details
Sweetbrier
by Mungo Homes, Durham, NC
- 32 homes
- 18 plans
- 1,671 - 4,009 sqft
View Sweetbrier details
More homes in Sweetbrier
- Home at address 4201 Sweet Ivy Lndg, Durham, NC 27703

Savannah - Vanguard Collection
Savings$679,000
- 5 bd
- 3.5 ba
- 2,913 sqft
4201 Sweet Ivy Lndg, Durham, NC 27703
- Home at address 4210 Sweet Ivy Lndg, Durham, NC 27703

Webster II - Vanguard Collection
Savings$739,000
- 5 bd
- 4.5 ba
- 3,706 sqft
4210 Sweet Ivy Lndg, Durham, NC 27703
Floor plans in Sweetbrier
- View details for Savannah - Vanguard Collection

Savannah - Vanguard Collection
$566,000+- 5 bd
- 2.5 ba
- 2,886 sqft
- View details for Yates II - Vanguard Collection

Yates II - Vanguard Collection
$622,000+- 5 bd
- 4.5 ba
- 4,009 sqft
About the builder - Mungo Homes
Neighborhood
Home address
Schools in Durham Public Schools
GreatSchools’ Summary Rating calculation is based on 4 of the school’s themed ratings, including test scores, student/academic progress, college readiness, and equity. This information should only be used as a reference. Jome is not affiliated with GreatSchools and does not endorse or guarantee this information. Please reach out to schools directly to verify all information and enrollment eligibility. Data provided by GreatSchools.org © 2025
Places of interest
Getting around
Air quality

Considering this home?
Our expert will guide your tour, in-person or virtual
Need more information?
Text or call (888) 545-5198
Financials
Estimated monthly payment
Let us help you find your dream home
How many bedrooms are you looking for?
Similar homes nearby
Recently added communities in this area
Nearby communities in Durham
New homes in nearby cities
More New Homes in Durham, NC
- Jome
- New homes search
- North Carolina
- Raleigh-Durham Area
- Durham County
- Durham
- Sweetbrier
- 4021 Sweet Ivy Lndg, Durham, NC 27703




























