














Book your tour. Save an average of $18,473. We'll handle the rest.
We collect exclusive builder offers, book your tours, and support you from start to housewarming.
- Confirmed tours
- Get matched & compare top deals
- Expert help, no pressure
- No added fees
Estimated value based on Jome data, T&C apply


























- 5 bd
- 4.5 ba
- 4,009 sqft
Yates II - Vanguard Collection plan in Sweetbrier by Mungo Homes
Visit the community to experience this floor plan
Why tour with Jome?
- No pressure toursTour at your own pace with no sales pressure
- Expert guidanceGet insights from our home buying experts
- Exclusive accessSee homes and deals not available elsewhere
Jome is featured in
Plan description
May also be listed on the Mungo Homes website
Information last verified by Jome: Today at 6:16 AM (February 11, 2026)
Plan details
- Name:
- Yates II - Vanguard Collection
- Property status:
- Floor plan
- Size:
- 4,009 sqft
- Stories:
- 2
- Beds:
- 5
- Baths:
- 4
- Half baths:
- 1
Plan features & finishes
- Garage/Parking:
- GarageAttached Garage
- Interior Features:
- Walk-In ClosetPantryStaircasesLoft
- Kitchen:
- Kitchen Island
- Laundry facilities:
- Utility/Laundry Room
- Property amenities:
- PatioPorch
- Rooms:
- Flex RoomKitchenPowder RoomGuest RoomDining RoomFamily RoomOpen Concept FloorplanPrimary Bedroom Upstairs
- Upgrade Options:
- Sun RoomPantrySitting Room

Get a consultation with our New Homes Expert
- See how your home builds wealth
- Plan your home-buying roadmap
- Discover hidden gems
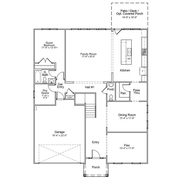
See the full plan layout
Download the floor plan PDF with room dimensions and home design details.

Instant download, no cost

Community details
Sweetbrier
by Mungo Homes, Durham, NC
- 67 homes
- 16 plans
- 1,899 - 4,166 sqft
View Sweetbrier details
Want to know more about what's around here?
The Yates II - Vanguard Collection floor plan is part of Sweetbrier, a new home community by Mungo Homes, located in Durham, NC. Visit the Sweetbrier community page for full neighborhood insights, including nearby schools, shopping, walk & bike-scores, commuting, air quality & natural hazards.

Available homes in Sweetbrier
- Home at address 3003 Dog Rose Dr, Durham, NC 27703

Victor
$619,000
- 5 bd
- 3.5 ba
- 3,100 sqft
3003 Dog Rose Dr, Durham, NC 27703
- Home at address 4201 Sweet Ivy Lndg, Durham, NC 27703

Savannah
$694,489
- 5 bd
- 3.5 ba
- 2,913 sqft
4201 Sweet Ivy Lndg, Durham, NC 27703
- Home at address 4108 Sweet Ivy Lndg, Durham, NC 27703

Webster II
$710,000
- 5 bd
- 4.5 ba
- 3,595 sqft
4108 Sweet Ivy Lndg, Durham, NC 27703
- Home at address 4110 Sweet Ivy Lndg, Durham, NC 27703

Webster II
$710,000
- 5 bd
- 4.5 ba
- 3,718 sqft
4110 Sweet Ivy Lndg, Durham, NC 27703
- Home at address 4101 Sweet Ivy Lndg, Durham, NC 27703

Webster II
$719,000
- 5 bd
- 4.5 ba
- 3,718 sqft
4101 Sweet Ivy Lndg, Durham, NC 27703
- Home at address 4101 Sweet Ivy Lndg, Unit 331, Durham, NC 27703

Home
$719,000
- 5 bd
- 4.5 ba
- 3,718 sqft
4101 Sweet Ivy Lndg, Unit 331, Durham, NC 27703
More floor plans in Sweetbrier
- View details for Savannah - Vanguard Collection

Savannah - Vanguard Collection
$566,000+- 5 bd
- 2.5 ba
- 2,886 sqft

Considering this plan?
Our expert will guide your tour, in-person or virtual
Need more information?
Text or call (888) 486-2818
Financials
Estimated monthly payment
Let us help you find your dream home
How many bedrooms are you looking for?
Similar homes nearby
Recently added communities in this area
Nearby communities in Durham
New homes in nearby cities
More New Homes in Durham, NC
- Jome
- New homes search
- North Carolina
- Raleigh-Durham Area
- Durham County
- Durham
- Sweetbrier
- 1675 Bowhall Dr, Durham, NC 27703


























