




- 5 bd
- 4 ba
- 3,692 sqft
4212 Sweet Ivy Lndg, Durham, NC 27703
- Single-Family
- $197.72/sqft
- $105/monthly HOA
- 298 days on Jome
New Homes for Sale Near 4212 Sweet Ivy Lndg, Durham, NC 27703
About this Home
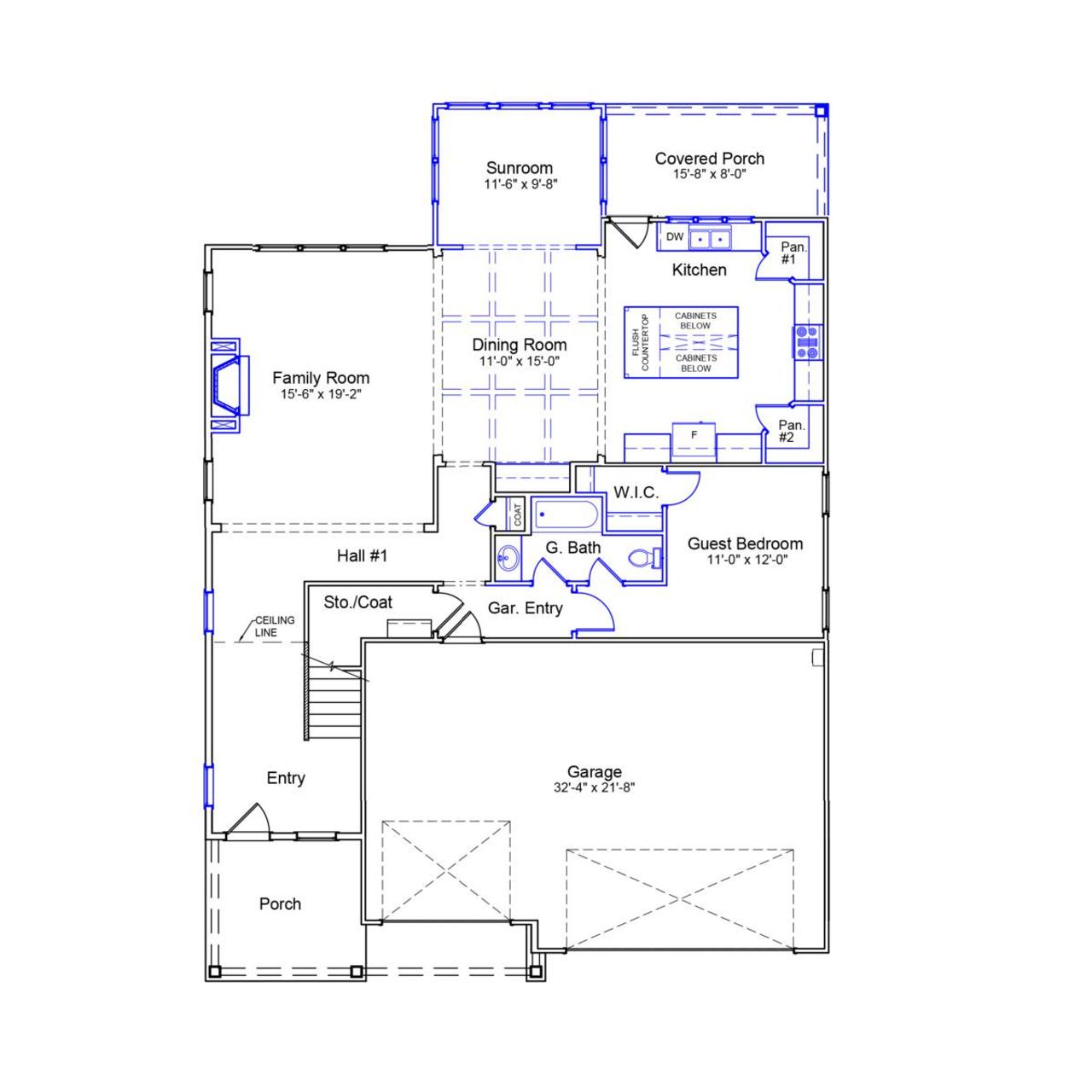
Situated on a premium homesite near the end of a secluded cul-de-sac with a three-car garage, this stunning home welcomes you with cascading windows and a dramatic two-story entryway filled with natural light. The first floor offers a spacious guest bedroom with a walk-in closet and private bath, along with a family room featuring an inviting fireplace and a dining room with an elegant coffered ceiling. The kitchen includes expansive cabinetry, a sizable island with under-cabinet storage, and two walk-in pantries for ample storage space. Enjoy the additional comfort of a sunroom that opens to a covered porch—perfect for relaxing or entertaining.
Upstairs, the primary suite includes a serene sitting room and a primary bath with a standalone tub, an expansive walk-in shower, and a customized window seat that creates a spa-like ambiance. The loft area provides plenty of extra space for gatherings or hobbies, and three additional bedrooms complete the upper level. Bedrooms two and three share a convenient buddy bath. This home combines modern elegance with thoughtful design to create a truly welcoming living experience.
May also be listed on the Mungo Homes website
Information last verified by Jome: Wednesday at 6:09 AM (March 11, 2026)
Home details
- Property status:
- Sold
- Size:
- 3,692 sqft
- Stories:
- 2
- Beds:
- 5
- Baths:
- 4
- Garage spaces:
- 3

Floor plan details
Warwick II - Vanguard Collection
- 4 bd
- 2.5 ba
- 3,295 sqft
View Warwick II - Vanguard Collection details
Construction details
- Builder Name:
- Mungo Homes
- Completion Date:
- April, 2026
Home features & finishes
- Garage/Parking:
- GarageAttached Garage
- Interior Features:
- Walk-In ClosetPantryLoft
- Kitchen:
- Kitchen Island
- Laundry facilities:
- Utility/Laundry Room
- Property amenities:
- PatioPorch
- Rooms:
- KitchenPowder RoomDining RoomFamily RoomOpen Concept FloorplanPrimary Bedroom Upstairs

Community details
Sweetbrier
by Mungo Homes, Durham, NC
- 28 homes
- 18 plans
- 1,671 - 4,009 sqft
View Sweetbrier details
More homes in Sweetbrier
- Home at address 4201 Sweet Ivy Lndg, Durham, NC 27703
Savings$679,000
Move-in ready- 5 bd
- 3.5 ba
- 2,913 sqft
4201 Sweet Ivy Lndg, Durham, NC 27703
- Home at address 4210 Sweet Ivy Lndg, Durham, NC 27703
Savings$739,000
Move-in ready- 5 bd
- 4.5 ba
- 3,706 sqft
4210 Sweet Ivy Lndg, Durham, NC 27703
Floor plans in Sweetbrier
- View details for Savannah - Vanguard Collection

Savannah - Vanguard Collection
$566,000+- 5 bd
- 2.5 ba
- 2,886 sqft
- View details for Yates II - Vanguard Collection

Yates II - Vanguard Collection
$622,000+- 5 bd
- 4.5 ba
- 4,009 sqft
About the builder - Mungo Homes
Neighborhood
Home address
Schools in Durham Public Schools
GreatSchools’ Summary Rating calculation is based on 4 of the school’s themed ratings, including test scores, student/academic progress, college readiness, and equity. This information should only be used as a reference. Jome is not affiliated with GreatSchools and does not endorse or guarantee this information. Please reach out to schools directly to verify all information and enrollment eligibility. Data provided by GreatSchools.org © 2025
Places of interest
Getting around
Air quality
Noise level
A Soundscore™ rating is a number between 50 (very loud) and 100 (very quiet) that tells you how loud a location is due to environmental noise.
Financials
Nearby communities in Durham
Homes in Durham Neighborhoods
- Morehead Hill
- Watts Hospital-Hillandale
- Downtown
- Omah Street
- Northgate Park
- Warehouse District
- Pleasant Drive
- Forest Hills
- Oak Grove Community
- Scarsdale Village
- Hope Valley
- Walltown
- Northeast Hills
- Old East Durham
- Colvard Farms
- Milan Woods
- Merrick Moore
- Lyon Park
- Lochaven Hills
- Duke Homestead
- Tuscaloosa-Lakewood
- Old North Durham
- Cleveland-Holloway
- Hope Valley Farms
- Southside / St. Teresa
Homes in Durham by Mungo Homes
Recently added communities in this area
Other Builders in Durham, NC
Nearby sold homes
New homes in nearby cities
More New Homes in Durham, NC
- Jome
- New homes search
- North Carolina
- Raleigh-Durham Area
- Durham County
- Durham
- Sweetbrier
- 4212 Sweet Ivy Lndg, Durham, NC 27703
































































