





- 4 bd
- 3.5 ba
- 2,479 sqft
2115 Pink Peony Cir, Durham, NC 27703
- Townhouse
- $181.52/sqft
- $105/monthly HOA
- 0.07-acre lot
New Homes for Sale Near 2115 Pink Peony Cir, Durham, NC 27703
About this Home
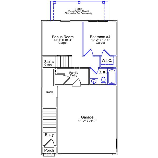
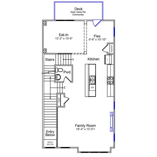
This beautifully designed Winterberry plan offers space, style, and thoughtful features in an end-unit townhome! The home features four spacious bedrooms. The boxed ceiling in the primary suite adds architectural interest, while the ensuite bath impresses with a freestanding soaker tub, tile shower, dual vanities, and upgraded finishes. Enjoy open-concept living with an electric fireplace and future-proof conduit in the family room, plus direct access to both a deck and a patio for extended outdoor entertaining. The kitchen boasts solid surface countertops, a double-bowl sink, and stainless-steel GE appliances. A garden door replaces the typical sliding door for added charm. Upstairs, find upgraded lighting, metal stair railings, finished wood treads, and enhanced organization spaces with built-ins and cubbies. Enhanced exterior siding, full gutters, high brick accents, and fiber cement board and batten detail provide great curb appeal. Smart home features like a video doorbell and automation hub included!
Clayton Properties Group INC
May also be listed on the Mungo Homes website
Information last verified by Jome: Monday at 5:31 AM (April 6, 2026)
Home details
- Property status:
- Sold
- Lot size (acres):
- 0.07
- Size:
- 2,479 sqft
- Stories:
- 3+
- Beds:
- 4
- Baths:
- 3
- Half baths:
- 1
- Garage spaces:
- 2

Floor plan details
Winterberry - Vanguard Collection
- 3 bd
- 2.5 ba
- 2,459 sqft
View Winterberry - Vanguard Collection details
Construction details
- Builder Name:
- Mungo Homes
- Completion Date:
- May, 2026
- Year Built:
- 2026
- Roof:
- Shingle Roofing
Home features & finishes
- Construction Materials:
- CementFrame
- Cooling:
- Central Air
- Flooring:
- Vinyl FlooringCarpet Flooring
- Foundation Details:
- Slab
- Garage/Parking:
- GarageAttached Garage
- Interior Features:
- Walk-In Closet
- Laundry facilities:
- Utility/Laundry Room
- Property amenities:
- Basement
- Rooms:
- KitchenPowder RoomDining RoomFamily RoomPrimary Bedroom Upstairs
Utility information
- Heating:
- Zoned Heating, Gas Heating

Community details
Sweetbrier
by Mungo Homes, Durham, NC
- 28 homes
- 18 plans
- 1,671 - 4,009 sqft
View Sweetbrier details
More homes in Sweetbrier
- Home at address 2113 Pink Peony Cir, Durham, NC 27703
Savings$425,000
Move-in ready- 4 bd
- 3.5 ba
- 2,459 sqft
2113 Pink Peony Cir, Durham, NC 27703
- Home at address 944 Westerland Wy, Unit 140, Durham, NC 27703

$441,250
Move-in ready- 4 bd
- 3.5 ba
- 2,473 sqft
944 Westerland Wy, Unit 140, Durham, NC 27703
- Home at address 944 Westerland Wy, Durham, NC 27703
Savings$455,894
Under construction- 4 bd
- 3.5 ba
- 2,473 sqft
944 Westerland Wy, Durham, NC 27703
- Home at address 2122 Pink Peony Cir, Durham, NC 27703
Savings$467,265
Move-in ready- 4 bd
- 3.5 ba
- 2,472 sqft
2122 Pink Peony Cir, Durham, NC 27703
- Home at address 946 Westerland Wy, Durham, NC 27703
Savings$469,865
Under construction- 4 bd
- 3.5 ba
- 2,459 sqft
946 Westerland Wy, Durham, NC 27703
- Home at address 946 Westerland Wy, Unit 141, Durham, NC 27703

$469,865
Move-in ready- 4 bd
- 3.5 ba
- 2,459 sqft
946 Westerland Wy, Unit 141, Durham, NC 27703
Floor plans in Sweetbrier
- View details for Lacey - Vanguard Collection

Lacey - Vanguard Collection
$485,000+- 4 bd
- 3.5 ba
- 2,465 sqft
- View details for Nantahala II - Vanguard Collection

Nantahala II - Vanguard Collection
$537,000+- 4 bd
- 2.5 ba
- 2,450 sqft
About the builder - Mungo Homes
Neighborhood
Home address
Schools in Durham Public Schools
GreatSchools’ Summary Rating calculation is based on 4 of the school’s themed ratings, including test scores, student/academic progress, college readiness, and equity. This information should only be used as a reference. Jome is not affiliated with GreatSchools and does not endorse or guarantee this information. Please reach out to schools directly to verify all information and enrollment eligibility. Data provided by GreatSchools.org © 2025
Places of interest
Getting around
Air quality
Noise level
A Soundscore™ rating is a number between 50 (very loud) and 100 (very quiet) that tells you how loud a location is due to environmental noise.
Financials
Nearby communities in Durham
Homes in Durham Neighborhoods
- Morehead Hill
- Watts Hospital-Hillandale
- Downtown
- Omah Street
- Northgate Park
- Warehouse District
- Pleasant Drive
- Forest Hills
- Oak Grove Community
- Scarsdale Village
- Hope Valley
- Walltown
- Northeast Hills
- Old East Durham
- Colvard Farms
- Milan Woods
- Merrick Moore
- Lyon Park
- Lochaven Hills
- Duke Homestead
- Tuscaloosa-Lakewood
- Old North Durham
- Cleveland-Holloway
- Hope Valley Farms
- Southside / St. Teresa
Homes in Durham by Mungo Homes
Recently added communities in this area
Other Builders in Durham, NC
Nearby sold homes
New homes in nearby cities
More New Homes in Durham, NC
- Jome
- New homes search
- North Carolina
- Raleigh-Durham Area
- Durham County
- Durham
- Sweetbrier
- 2115 Pink Peony Cir, Durham, NC 27703


































































