






































- 4 bd
- 2.5 ba
- 1,991 sqft
111 Babcock Dr Ne, Rome, GA 30165
- Single-Family
- $158.21/sqft
- $415/annual HOA
- 9 days on Jome
New Homes for Sale Near 111 Babcock Dr Ne, Rome, GA 30165
About this Home
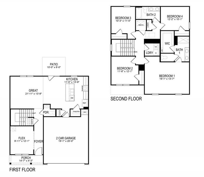
Welcome to the desirable Northberry community in Rome, GA that is home to 111 Babcock Drive NE. This Belhaven floorplan is well designed with 4 bedrooms and 2.5 bathrooms in the 1,991 square feet on a basement. From the quaint front porch, the front foyer opens directly to a flex room that can be used as an office space or dining room to gather with family and friends. As you make your way through the front hallway, you will pass a powder room directly across from the staircase. Relax and unwind in the large, open concept great room. The great room flows easily into the beautiful kitchen that boasts granite countertops, stainless-steel appliances, and finely crafted cabinets. Up the stairs you'll run directly into the laundry room. To the right is the spacious primary suite bedroom. Homeowners can enjoy the luxury bathroom with dual vanity and a large walk-in closet. 3 additional bedrooms and a dual vanity bathroom make up the rest of the second floor. Reach out to us at Northberry today to get your tour of 11 Babcock Drive NE!
D.R. Horton Realty of Georgia Inc, MLS 7740890
May also be listed on the D.R. Horton website
Information last verified by Jome: Today at 2:17 AM (May 26, 2026)
Home details
- Property status:
- Sold
- Size:
- 1,991 sqft
- Stories:
- 2
- Beds:
- 4
- Baths:
- 2
- Half baths:
- 1
- Garage spaces:
- 2
- Fence:
- No Fence
Construction details
- Builder Name:
- D.R. Horton
- Year Built:
- 2026
- Roof:
- Composition Roofing, Shingle Roofing
Home features & finishes
- Construction Materials:
- Cement
- Cooling:
- Central Air
- Flooring:
- Laminate FlooringCarpet Flooring
- Foundation Details:
- Slab
- Garage/Parking:
- GarageFront Entry Garage/ParkingAttached Garage
- Home amenities:
- Internet
- Interior Features:
- Ceiling-HighWalk-In ClosetFoyerPantryLoftDouble Vanity
- Kitchen:
- DishwasherMicrowave OvenDisposalKitchen IslandKitchen Range
- Laundry facilities:
- Laundry Facilities On Upper LevelUtility/Laundry Room
- Property amenities:
- BackyardLandscapingCabinetsPatioPorch
- Rooms:
- Flex RoomKitchenPowder RoomFamily RoomOpen Concept FloorplanPrimary Bedroom Upstairs
- Security system:
- Smoke DetectorCarbon Monoxide Detector
Utility information
- Heating:
- Electric Heating, Heat Pump, Central Heating, Forced Air Heating
- Sewer:
- Public Sewer
- Utilities:
- Electricity Available, Underground Utilities, Cable Available, Sewer Available, Water Available, High Speed Internet Access
- Water source:
- Public

Community details
Northberry
by D.R. Horton, Rome, GA
- 6 homes
- 5 plans
- 1,475 - 2,361 sqft
View Northberry details
Community amenities
- Playground
- Park Nearby
More homes in Northberry
- Home at address 95 Babcock Dr Ne, Rome, GA 30165

$309,990
Under construction- 4 bd
- 2 ba
- 1,774 sqft
95 Babcock Dr Ne, Rome, GA 30165
- Home at address 91 Babcock Dr Ne, Rome, GA 30165

$320,490
Move-in ready- 4 bd
- 2.5 ba
- 1,991 sqft
91 Babcock Dr Ne, Rome, GA 30165
- Home at address 97 Babcock Dr Ne, Rome, GA 30165

$329,990
Move-in ready- 5 bd
- 3 ba
- 2,361 sqft
97 Babcock Dr Ne, Rome, GA 30165
Floor plans in Northberry
About the builder - D.R. Horton

- 1,140communities on Jome
- 11,207homes on Jome
Neighborhood
Home address
Schools in Floyd County School District
- Grades KG-08Privateberry college elementary school2.0 mi2277 martha berry hwy nwna
- Grades KG-12Privatethe academy of rome3.6 mi201 turner mccall blvd nwna
GreatSchools’ Summary Rating calculation is based on 4 of the school’s themed ratings, including test scores, student/academic progress, college readiness, and equity. This information should only be used as a reference. Jome is not affiliated with GreatSchools and does not endorse or guarantee this information. Please reach out to schools directly to verify all information and enrollment eligibility. Data provided by GreatSchools.org © 2025
Places of interest
Getting around
Noise level
A Soundscore™ rating is a number between 50 (very loud) and 100 (very quiet) that tells you how loud a location is due to environmental noise.
Financials
Nearby communities in Rome
Homes in Rome by D.R. Horton
Recently added communities in this area
Other Builders in Rome, GA
Nearby sold homes
New homes in nearby cities
More New Homes in Rome, GA
D.R. Horton Realty of Georgia Inc, MLS 7740890
Some IDX listings have been excluded from this IDX display. Listings identified with the FMLS IDX logo come from FMLS and are held by brokerage firms other than the owner of this website. The listing brokerage is identified in any listing details. Information is deemed reliable but is not guaranteed. If you believe any FMLS listing contains material that infringes your copyrighted work please click here to review our DMCA policy and learn how to submit a takedown request. © 2025 First Multiple Listing Service, Inc.
Read moreLast checked May 26, 1:40 pm
- Jome
- New homes search
- Georgia
- Atlanta Metropolitan Area
- Floyd County
- Rome
- Northberry
- 111 Babcock Dr Ne, Rome, GA 30165

































































