
























- 4 bd
- 2.5 ba
- 1,772 sqft
Guilford - Genesis Value Collection plan in Braxton Place by Mungo Homes
New Homes for Sale Near 109 Braxton Dr, Moore, SC 29369
About this Plan
May also be listed on the Mungo Homes website
Information last verified by Jome: Tuesday at 6:16 AM (January 6, 2026)
Plan details
- Name:
- Guilford - Genesis Value Collection
- Property type:
- Sold
- Community:
- Braxton Place
- Builder:
- Mungo Homes
- Size:
- 1,772 sqft
- Stories:
- 2
- Beds:
- 4
- Baths:
- 2
- Half baths:
- 1
- Garage spaces:
- 2
Plan features & finishes
- Garage/Parking:
- GarageAttached Garage
- Interior Features:
- Walk-In ClosetFoyerPantryLoft
- Laundry facilities:
- Utility/Laundry Room
- Property amenities:
- Porch
- Rooms:
- Flex RoomKitchenPowder RoomDining RoomFamily RoomOpen Concept FloorplanPrimary Bedroom Upstairs
- Upgrade Options:
- Vaulted CeilingCovered PorchFireplace
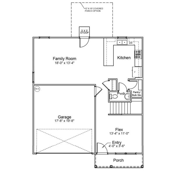
See the full plan layout
Download the floor plan PDF with room dimensions and home design details.

Instant download, no cost

Community details
Braxton Place
by Mungo Homes, Moore, SC
- 9 homes
- 1,148 - 2,241 sqft
View Braxton Place details
Want to know more about what's around here?
The Guilford - Genesis Value Collection floor plan is part of Braxton Place, a new home community by Mungo Homes, located in Moore, SC. Visit the Braxton Place community page for full neighborhood insights, including nearby schools, shopping, walk & bike-scores, commuting, air quality & natural hazards.

Available homes in Braxton Place
- Home at address 105 Braxton Dr, Moore, SC 29369

$257,000
Under construction- 4 bd
- 2.5 ba
- 1,786 sqft
105 Braxton Dr, Moore, SC 29369
- Home at address 369 Prosperity Ln, Moore, SC 29369

$259,000
Under construction- 4 bd
- 2.5 ba
- 1,786 sqft
369 Prosperity Ln, Moore, SC 29369
- Home at address 404 Prosperity Ln, Moore, SC 29369

$261,000
Under construction- 4 bd
- 2.5 ba
- 1,786 sqft
404 Prosperity Ln, Moore, SC 29369
- Home at address 388 Prosperity Ln, Moore, SC 29369

$261,000
Under construction- 4 bd
- 2.5 ba
- 1,786 sqft
388 Prosperity Ln, Moore, SC 29369
- Home at address 389 Prosperity Ln, Moore, SC 29369

$276,000
Under construction- 4 bd
- 2.5 ba
- 2,241 sqft
389 Prosperity Ln, Moore, SC 29369
Financials
Nearby communities in Moore
Homes in Moore by Mungo Homes
Recently added communities in this area
Other Builders in Moore, SC
Nearby sold homes
New homes in nearby cities
More New Homes in Moore, SC
- Jome
- New homes search
- South Carolina
- Spartanburg County
- Moore
- Braxton Place
- 109 Braxton Dr, Moore, SC 29369




















































