
























- 3 bd
- 2.5 ba
- 1,709 sqft
360 Prosperity Ln, Moore, SC 29369
- Single-Family
- $142.77/sqft
- Southwest facing
- 279 days on Jome
New Homes for Sale Near 360 Prosperity Ln, Moore, SC 29369
About this Home
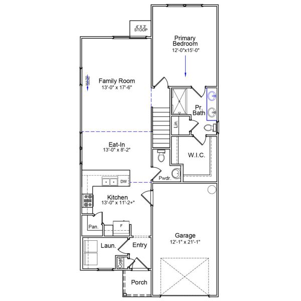
This two-story Evans floor plan features three bedrooms and two-and-one-half bathrooms. The kitchen and laundry room sit off the entryway, and an eat-in area and great room lead off the kitchen. The primary bedroom and bathroom, with walk-in linen and clothes closets, are located downstairs next to the great room. Upstairs, there are two more bedrooms and a bonus room, along with a full bathroom. Each bedroom comes with its own walk-in closet!
May also be listed on the Mungo Homes website
Information last verified by Jome: Wednesday at 5:43 AM (January 21, 2026)
Home details
- Property status:
- Sold
- Size:
- 1,709 sqft
- Stories:
- 2
- Beds:
- 3
- Baths:
- 2
- Half baths:
- 1
- Garage spaces:
- 1
- Facing direction:
- Southwest
Construction details
- Builder Name:
- Mungo Homes
- Completion Date:
- October, 2025
Home features & finishes
- Garage/Parking:
- GarageAttached Garage
- Interior Features:
- Walk-In ClosetFoyerPantry
- Laundry facilities:
- Utility/Laundry Room
- Property amenities:
- Porch
- Rooms:
- Bonus RoomPrimary Bedroom On MainKitchenPowder RoomDining RoomFamily RoomOpen Concept FloorplanPrimary Bedroom Downstairs

Community details
Braxton Place
by Mungo Homes, Moore, SC
- 9 homes
- 1,148 - 2,241 sqft
View Braxton Place details
More homes in Braxton Place
- Home at address 408 Prosperity Ln, Moore, SC 29369

$228,000
Under construction- 3 bd
- 2 ba
- 1,148 sqft
408 Prosperity Ln, Moore, SC 29369
- Home at address 401 Prosperity Ln, Moore, SC 29369

$246,000
Under construction- 3 bd
- 2.5 ba
- 1,476 sqft
401 Prosperity Ln, Moore, SC 29369
- Home at address 105 Braxton Dr, Moore, SC 29369

$257,000
Under construction- 4 bd
- 2.5 ba
- 1,786 sqft
105 Braxton Dr, Moore, SC 29369
- Home at address 369 Prosperity Ln, Moore, SC 29369

$259,000
Under construction- 4 bd
- 2.5 ba
- 1,786 sqft
369 Prosperity Ln, Moore, SC 29369
- Home at address 404 Prosperity Ln, Moore, SC 29369

$261,000
Under construction- 4 bd
- 2.5 ba
- 1,786 sqft
404 Prosperity Ln, Moore, SC 29369
- Home at address 388 Prosperity Ln, Moore, SC 29369

$261,000
Under construction- 4 bd
- 2.5 ba
- 1,786 sqft
388 Prosperity Ln, Moore, SC 29369
About the builder - Mungo Homes
Neighborhood
Home address
- City:
- Moore
- County:
- Spartanburg
- Zip Code:
- 29369
Schools in Spartanburg School District 6
GreatSchools’ Summary Rating calculation is based on 4 of the school’s themed ratings, including test scores, student/academic progress, college readiness, and equity. This information should only be used as a reference. Jome is not affiliated with GreatSchools and does not endorse or guarantee this information. Please reach out to schools directly to verify all information and enrollment eligibility. Data provided by GreatSchools.org © 2025
Places of interest
Getting around
Air quality
Noise level
A Soundscore™ rating is a number between 50 (very loud) and 100 (very quiet) that tells you how loud a location is due to environmental noise.
Financials
Nearby communities in Moore
Homes in Moore by Mungo Homes
Recently added communities in this area
Other Builders in Moore, SC
Nearby sold homes
New homes in nearby cities
More New Homes in Moore, SC
- Jome
- New homes search
- South Carolina
- Spartanburg County
- Moore
- Braxton Place
- 360 Prosperity Ln, Moore, SC 29369


















































