



- 3 bd
- 2 ba
- 1,149 sqft
361 Prosperity Ln, Moore, SC 29369
- Single-Family
- $190.6/sqft
- Northeast facing
- 57 days on Jome
New Homes for Sale Near 361 Prosperity Ln, Moore, SC 29369
About this Home
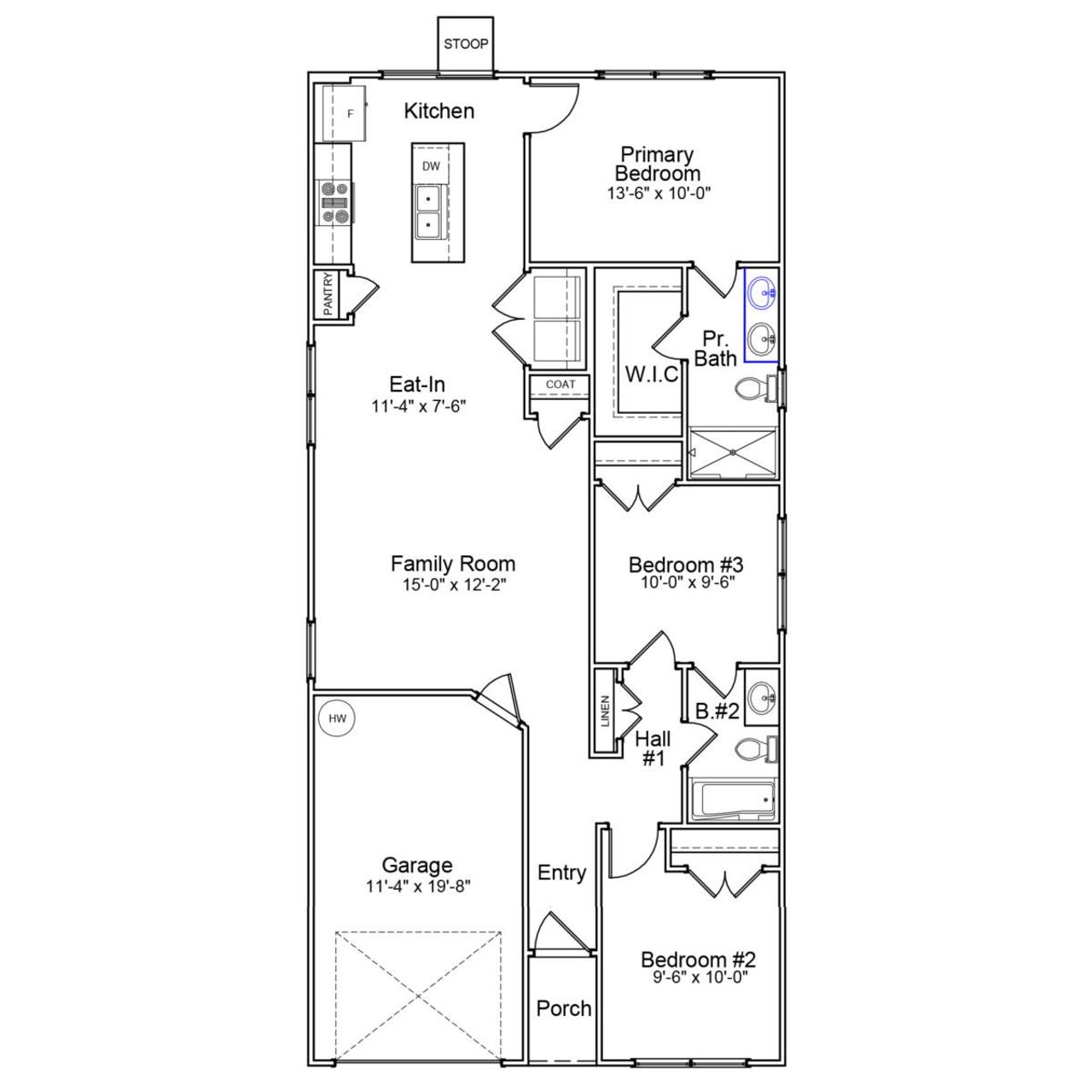
This one-story Baker floor plan features three bedrooms, two bathrooms, and a one-car garage. Upon entry, you will notice two bedrooms and a shared bathroom on your right. The great room flows seamlessly into the eat-in and kitchen. The primary suite is located away from the kitchen and has a private bathroom with double sinks, a walk-in shower, and a walk-in closet.
May also be listed on the Mungo Homes website
Information last verified by Jome: Friday at 5:42 AM (January 23, 2026)
Home details
- Property status:
- Sold
- Size:
- 1,149 sqft
- Stories:
- 1
- Beds:
- 3
- Baths:
- 2
- Garage spaces:
- 1
- Facing direction:
- Northeast
Construction details
- Builder Name:
- Mungo Homes
- Completion Date:
- October, 2025
Home features & finishes
- Garage/Parking:
- GarageAttached Garage
- Interior Features:
- Walk-In ClosetFoyerPantry
- Laundry facilities:
- Utility/Laundry Room
- Property amenities:
- Porch
- Rooms:
- Primary Bedroom On MainKitchenPowder RoomDining RoomFamily RoomOpen Concept FloorplanPrimary Bedroom Downstairs

Community details
Braxton Place
by Mungo Homes, Moore, SC
- 12 homes
- 1,148 - 2,241 sqft
View Braxton Place details
More homes in Braxton Place
- Home at address 384 Prosperity Ln, Moore, SC 29369

$222,000
Under construction- 3 bd
- 2 ba
- 1,148 sqft
384 Prosperity Ln, Moore, SC 29369
- Home at address 396 Prosperity Ln, Moore, SC 29369

$225,000
Under construction- 3 bd
- 2 ba
- 1,148 sqft
396 Prosperity Ln, Moore, SC 29369
- Home at address 408 Prosperity Ln, Moore, SC 29369

$226,000
Under construction- 3 bd
- 2 ba
- 1,148 sqft
408 Prosperity Ln, Moore, SC 29369
- Home at address 401 Prosperity Ln, Moore, SC 29369

$244,000
Under construction- 3 bd
- 2.5 ba
- 1,476 sqft
401 Prosperity Ln, Moore, SC 29369
- Home at address 388 Prosperity Ln, Moore, SC 29369

$259,000
Under construction- 4 bd
- 2.5 ba
- 1,786 sqft
388 Prosperity Ln, Moore, SC 29369
- Home at address 217 Braxton Dr, Moore, SC 29369

$259,000
Under construction- 4 bd
- 2.5 ba
- 1,772 sqft
217 Braxton Dr, Moore, SC 29369
About the builder - Mungo Homes
Neighborhood
Home address
- City:
- Moore
- County:
- Spartanburg
- Zip Code:
- 29369
Schools in Spartanburg School District 6
GreatSchools’ Summary Rating calculation is based on 4 of the school’s themed ratings, including test scores, student/academic progress, college readiness, and equity. This information should only be used as a reference. Jome is not affiliated with GreatSchools and does not endorse or guarantee this information. Please reach out to schools directly to verify all information and enrollment eligibility. Data provided by GreatSchools.org © 2025
Places of interest
Getting around
Air quality
Noise level
A Soundscore™ rating is a number between 50 (very loud) and 100 (very quiet) that tells you how loud a location is due to environmental noise.
Financials
Nearby communities in Moore
Homes in Moore by Mungo Homes
Recently added communities in this area
Other Builders in Moore, SC
Nearby sold homes
New homes in nearby cities
More New Homes in Moore, SC
- Jome
- New homes search
- South Carolina
- Spartanburg County
- Moore
- Braxton Place
- 361 Prosperity Ln, Moore, SC 29369



















































