















- 4 bd
- 2.5 ba
- 1,735 sqft
376 Prosperity Ln, Moore, SC 29369
- Single-Family
- $146.4/sqft
- 83 days on Jome
New Homes for Sale Near 376 Prosperity Ln, Moore, SC 29369
About this Home
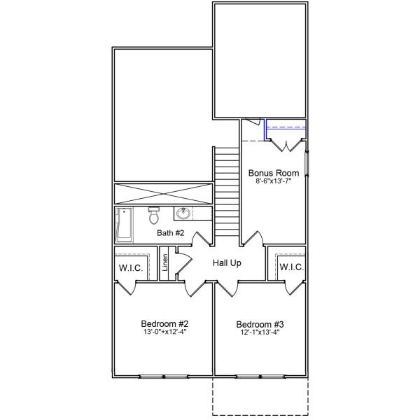
Welcome to this beautiful Evans floorplan, a perfect blend of style, space, and modern design including a primary bedroom on the main floor. This stunning home features three spacious bedrooms, two-and-a-half baths, and 1,736 square feet of impeccable design with an open, inviting layout that is perfect for both living and entertaining. The heart of the home is the well-appointed kitchen, featuring sleek countertops, modern appliances, and ample cabinet space. It flows effortlessly into the dining area and great room, making it ideal for gatherings and dinners. A convenient half bath is located just off the great room. The first floor has all upgraded luxury vinyl plank flooring and the upstairs is carpeted. The primary bedroom is large and connects to a generous walk-in closet and bathroom with a five-foot shower and two sinks in the large vanity. Two additional well-sized bedrooms are located upstairs, sharing a full bath. Perfect for guests, these rooms provide comfort and privacy.
May also be listed on the Mungo Homes website
Information last verified by Jome: Saturday at 5:53 AM (December 6, 2025)
Home details
- Property status:
- Sold
- Size:
- 1,735 sqft
- Stories:
- 2
- Beds:
- 4
- Baths:
- 2
- Half baths:
- 1
- Garage spaces:
- 1
Construction details
- Builder Name:
- Mungo Homes
- Completion Date:
- October, 2025
Home features & finishes
- Garage/Parking:
- Garage
- Rooms:
- Primary Bedroom Downstairs

Community details
Braxton Place
by Mungo Homes, Moore, SC
- 12 homes
- 8 plans
- 1,148 - 2,621 sqft
View Braxton Place details
More homes in Braxton Place
Floor plans in Braxton Place
About the builder - Mungo Homes
Neighborhood
Home address
- City:
- Moore
- County:
- Spartanburg
- Zip Code:
- 29369
Schools in Spartanburg School District 6
GreatSchools’ Summary Rating calculation is based on 4 of the school’s themed ratings, including test scores, student/academic progress, college readiness, and equity. This information should only be used as a reference. Jome is not affiliated with GreatSchools and does not endorse or guarantee this information. Please reach out to schools directly to verify all information and enrollment eligibility. Data provided by GreatSchools.org © 2025
Places of interest
Getting around
Air quality
Noise level
A Soundscore™ rating is a number between 50 (very loud) and 100 (very quiet) that tells you how loud a location is due to environmental noise.
Natural hazards risk
Climate hazards can impact homes and communities, with risks varying by location. These scores reflect the potential impact of natural disasters and climate-related risks on Spartanburg County
Provided by FEMA
Financials
Nearby communities in Moore
Homes in Moore by Mungo Homes
Recently added communities in this area
Other Builders in Moore, SC
Nearby sold homes
New homes in nearby cities
More New Homes in Moore, SC
- Jome
- New homes search
- South Carolina
- Spartanburg County
- Moore
- Braxton Place
- 376 Prosperity Ln, Moore, SC 29369

































































