



- 3 bd
- 2.5 ba
- 1,562 sqft
2011 Hillman Wy, Roebuck, SC 29376
- Single-Family
- $129.9/sqft
- 228 days on Jome
New Homes for Sale Near 2011 Hillman Wy, Roebuck, SC 29376
About this Home
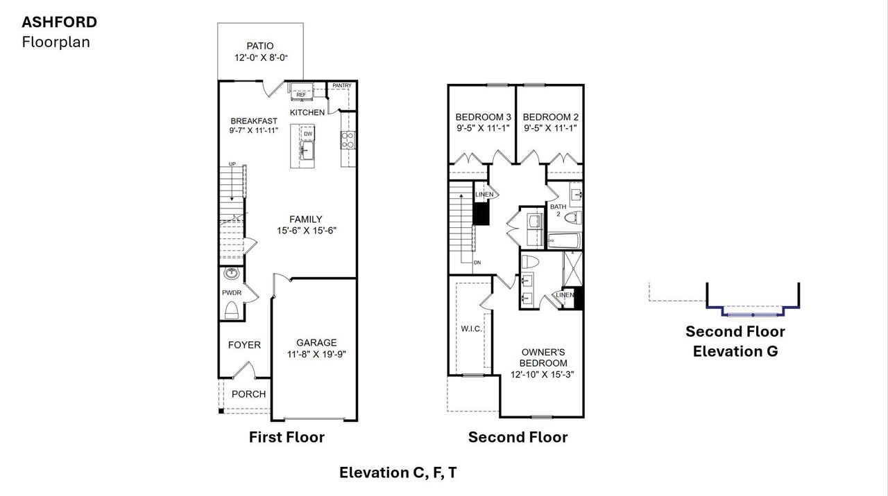
The Ashford floor plan features a modern, open-concept layout designed for both comfort and functionality. The first floor welcomes you with a charming front porch and foyer that lead into a spacious family room, perfect for relaxing or entertaining. The adjoining kitchen includes a large island, pantry, and breakfast area that opens to the back patio, creating an easy flow between indoor and outdoor living. A convenient powder room and attached garage complete the main level. Upstairs, the owner’s suite offers a peaceful retreat with a private bath and generous walk-in closet. Two additional bedrooms share a full bath, providing ideal space for family, guests, or a home office. With thoughtful details and efficient design throughout, the Ashford combines everyday practicality with timeless style.
May also be listed on the Veranda Homes website
Information last verified by Jome: Tuesday at 6:04 AM (February 17, 2026)
Home details
- Property status:
- Sold
- Size:
- 1,562 sqft
- Stories:
- 2
- Beds:
- 3
- Baths:
- 2
- Half baths:
- 1
- Garage spaces:
- 1
Construction details
- Builder Name:
- Veranda Homes
- Completion Date:
- September, 2025
Home features & finishes
- Garage/Parking:
- Garage

Community details
Trenton Place
by Veranda Homes, Roebuck, SC
- 1 home
- 2 plans
- 1,562 - 1,570 sqft
View Trenton Place details
More homes in Trenton Place
- Home at address 2013 Hillman Wy, Roebuck, SC 29376

$203,900
Move-in ready- 3 bd
- 2.5 ba
- 1,570 sqft
2013 Hillman Wy, Roebuck, SC 29376
Floor plans in Trenton Place
About the builder - Veranda Homes
Neighborhood
Home address
- City:
- Roebuck
- County:
- Spartanburg
- Zip Code:
- 29376
Schools in Spartanburg School District 6
GreatSchools’ Summary Rating calculation is based on 4 of the school’s themed ratings, including test scores, student/academic progress, college readiness, and equity. This information should only be used as a reference. Jome is not affiliated with GreatSchools and does not endorse or guarantee this information. Please reach out to schools directly to verify all information and enrollment eligibility. Data provided by GreatSchools.org © 2025
Places of interest
Getting around
Air quality
Noise level
A Soundscore™ rating is a number between 50 (very loud) and 100 (very quiet) that tells you how loud a location is due to environmental noise.
Financials
Nearby communities in Roebuck
Homes in Roebuck by Veranda Homes
Recently added communities in this area
Other Builders in Roebuck, SC
Nearby sold homes
New homes in nearby cities
More New Homes in Roebuck, SC
- Jome
- New homes search
- South Carolina
- Spartanburg County
- Roebuck
- Trenton Place
- 2011 Hillman Wy, Roebuck, SC 29376























































