














- 4 bd
- 2.5 ba
- 2,392 sqft
400 Prosperity Ln, Moore, SC 29369
- Single-Family
- $115.38/sqft
- 197 days on Jome
New Homes for Sale Near 400 Prosperity Ln, Moore, SC 29369
About this Home
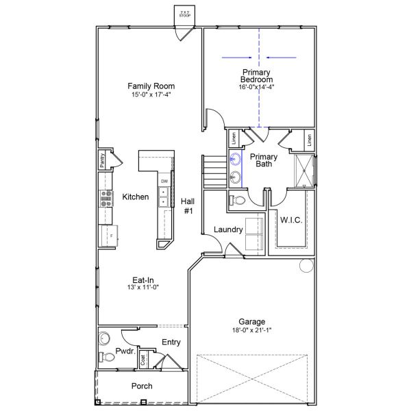
PRIMARY on the main level! This well-designed Monroe two-story floorplan offers four bedrooms, two-and-one-half bathrooms, and 2,400 sq. ft. of thoughtfully planned living space. The centrally located kitchen seamlessly connects the dining area and great room, creating a functional and inviting open-concept layout with vaulted ceiling in the great room. Featuring Shaker-style cabinetry, a gas range, stainless steel appliances, a pantry, and granite countertops, the kitchen combines both style and practicality. The main-level primary suite provides a private retreat with a vaulted ceiling, a spacious walk-in closet, and an en-suite bathroom complete with dual vanity sinks, two lien closets, and a five-foot shower. Upstairs, three additional bedrooms share a full bathroom, along with a versatile loft space that can serve as a play area, home office, or additional lounge.
May also be listed on the Mungo Homes website
Information last verified by Jome: Wednesday at 6:14 AM (December 31, 2025)
Home details
- Property status:
- Sold
- Size:
- 2,392 sqft
- Stories:
- 2
- Beds:
- 4
- Baths:
- 2
- Half baths:
- 1
- Garage spaces:
- 2
Construction details
- Builder Name:
- Mungo Homes
- Completion Date:
- October, 2025
Home features & finishes
- Garage/Parking:
- Garage
- Rooms:
- Primary Bedroom Downstairs

Community details
Braxton Place
by Mungo Homes, Moore, SC
- 12 homes
- 1,148 - 2,241 sqft
View Braxton Place details
More homes in Braxton Place
- Home at address 388 Prosperity Ln, Moore, SC 29369

$259,000
Under construction- 4 bd
- 2.5 ba
- 1,786 sqft
388 Prosperity Ln, Moore, SC 29369
- Home at address 217 Braxton Dr, Moore, SC 29369

$259,000
Under construction- 4 bd
- 2.5 ba
- 1,772 sqft
217 Braxton Dr, Moore, SC 29369
- Home at address 369 Prosperity Ln, Moore, SC 29369

$260,000
Under construction- 4 bd
- 2.5 ba
- 1,786 sqft
369 Prosperity Ln, Moore, SC 29369
- Home at address 404 Prosperity Ln, Moore, SC 29369

$262,000
Under construction- 4 bd
- 2.5 ba
- 1,786 sqft
404 Prosperity Ln, Moore, SC 29369
- Home at address 389 Prosperity Ln, Moore, SC 29369

$274,000
Under construction- 4 bd
- 2.5 ba
- 2,241 sqft
389 Prosperity Ln, Moore, SC 29369
- Home at address 208 Braxton Dr, Moore, SC 29369

$277,000
Move-in ready- 4 bd
- 2.5 ba
- 2,166 sqft
208 Braxton Dr, Moore, SC 29369
About the builder - Mungo Homes
Neighborhood
Home address
- City:
- Moore
- County:
- Spartanburg
- Zip Code:
- 29369
Schools in Spartanburg School District 6
GreatSchools’ Summary Rating calculation is based on 4 of the school’s themed ratings, including test scores, student/academic progress, college readiness, and equity. This information should only be used as a reference. Jome is not affiliated with GreatSchools and does not endorse or guarantee this information. Please reach out to schools directly to verify all information and enrollment eligibility. Data provided by GreatSchools.org © 2025
Places of interest
Getting around
Air quality
Noise level
A Soundscore™ rating is a number between 50 (very loud) and 100 (very quiet) that tells you how loud a location is due to environmental noise.
Financials
Nearby communities in Moore
Homes in Moore by Mungo Homes
Recently added communities in this area
Other Builders in Moore, SC
Nearby sold homes
New homes in nearby cities
More New Homes in Moore, SC
- Jome
- New homes search
- South Carolina
- Spartanburg County
- Moore
- Braxton Place
- 400 Prosperity Ln, Moore, SC 29369



















































