





- 4 bd
- 3.5 ba
- 3,498 sqft
Venice - 50' Homesites plan in Avalon Woods by Dream Finders Homes
New Homes for Sale Near 5710 Avalon Rd, Winter Garden, FL 34787
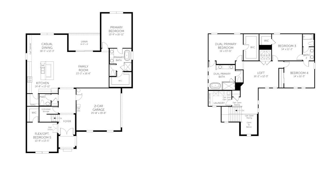
About this Plan
May also be listed on the Dream Finders Homes website
Information last verified by Jome: Thursday at 5:02 AM (March 19, 2026)
Plan details
- Name:
- Venice - 50' Homesites
- Property type:
- Sold
- Community:
- Avalon Woods
- Builder:
- Dream Finders Homes
- Collection:
- Avalon Woods 50'
- Lot width (feet):
- 50
- Size:
- 3,498 sqft
- Stories:
- 2
- Beds:
- 4
- Baths:
- 3
- Half baths:
- 1
- Garage spaces:
- 2
Plan features & finishes
- Garage/Parking:
- GarageAttached Garage
- Interior Features:
- Walk-In ClosetFoyerPantryStorageLoft
- Kitchen:
- Kitchen Island
- Laundry facilities:
- Utility/Laundry Room
- Property amenities:
- Lanai
- Rooms:
- Flex RoomPrimary Bedroom On MainKitchenPowder RoomDining RoomFamily RoomOpen Concept FloorplanPrimary Bedroom Downstairs
- Upgrade Options:
- Vanity at Halt BathSliding Glass DoorsAlternate Primary BathShower in Primary BathMedia RoomExtra BathroomExtra BedroomShower
See the full plan layout
Download the floor plan PDF with room dimensions and home design details.

Instant download, no cost

Community details
Avalon Woods
by Dream Finders Homes, Winter Garden, FL
- 16 homes
- 16 plans
- 1,772 - 4,024 sqft
View Avalon Woods details
Want to know more about what's around here?
The Venice - 50' Homesites floor plan is part of Avalon Woods, a new home community by Dream Finders Homes, located in Winter Garden, FL. Visit the Avalon Woods community page for full neighborhood insights, including nearby schools, shopping, walk & bike-scores, commuting, air quality & natural hazards.

Available homes in Avalon Woods
- Home at address 15111 Tea Tree Dr, Winter Garden, FL 34787
Savings$797,398
Move-in ready- 4 bd
- 3.5 ba
- 2,688 sqft
15111 Tea Tree Dr, Winter Garden, FL 34787
- Home at address 15075 Tea Tree Dr, Winter Garden, FL 34787
Savings$829,347
Under construction- 4 bd
- 3 ba
- 3,038 sqft
15075 Tea Tree Dr, Winter Garden, FL 34787
- Home at address 15081 Tea Tree Dr, Oakland, FL 34787
Savings$849,278
Move-in ready- 4 bd
- 3.5 ba
- 2,688 sqft
15081 Tea Tree Dr, Oakland, FL 34787
- Home at address 5983 Flowering Cherry Bnd, Winter Garden, FL 34787
Savings$858,014
Under construction- 5 bd
- 3 ba
- 2,879 sqft
5983 Flowering Cherry Bnd, Winter Garden, FL 34787
- Home at address 5930 Flowering Cherry Bnd, Winter Garden, FL 34787
Savings$863,442
Move-in ready- 4 bd
- 2.5 ba
- 2,802 sqft
5930 Flowering Cherry Bnd, Winter Garden, FL 34787
- Home at address 5995 Flowering Cherry Bnd, Winter Garden, FL 34787
Savings$871,085
Move-in ready- 4 bd
- 3 ba
- 2,726 sqft
5995 Flowering Cherry Bnd, Winter Garden, FL 34787
More floor plans in Avalon Woods
- View details for Carter - 40' Homesites

Carter - 40' Homesites
SavingsAvalon Woods 40'
$605,990+- 4 bd
- 3.5 ba
- 2,515 sqft
- View details for Anna Maria - 50' Homesites

Anna Maria - 50' Homesites
SavingsAvalon Woods 50'
$649,990+- 4 bd
- 2.5 ba
- 2,235 sqft
Financials
Nearby communities in Winter Garden
Homes in Winter Garden by Dream Finders Homes
Recently added communities in this area
Other Builders in Winter Garden, FL
Nearby sold homes
New homes in nearby cities
More New Homes in Winter Garden, FL
- Jome
- New homes search
- Florida
- Greater Orlando Area
- Orange County
- Winter Garden
- Avalon Woods
- Avalon Woods 50'
- 5710 Avalon Rd, Winter Garden, FL 34787































































