









Book your tour. Save an average of $18,473. We'll handle the rest.
We collect exclusive builder offers, book your tours, and support you from start to housewarming.
- Confirmed tours
- Get matched & compare top deals
- Expert help, no pressure
- No added fees
Estimated value based on Jome data, T&C apply







































- 4 bd
- 3.5 ba
- 2,688 sqft
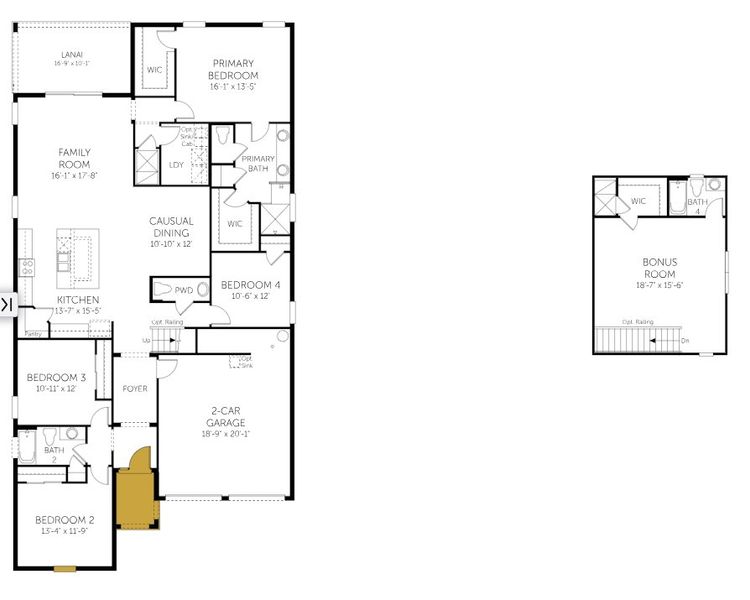
Anna Maria With Bonus - 50' Homesites plan in Avalon Woods by Dream Finders Homes
Visit the community to experience this floor plan
Why tour with Jome?
- No pressure toursTour at your own pace with no sales pressure
- Expert guidanceGet insights from our home buying experts
- Exclusive accessSee homes and deals not available elsewhere
Jome is featured in
Plan description
May also be listed on the Dream Finders Homes website
Information last verified by Jome: Yesterday at 5:01 AM (April 15, 2026)
Plan details
- Name:
- Anna Maria With Bonus - 50' Homesites
- Property type:
- Floor plan
- Community:
- Avalon Woods
- Builder:
- Dream Finders Homes
- Collection:
- Avalon Woods 50'
- Lot width (feet):
- 50
- Size:
- 2,688 sqft
- Stories:
- 2
- Beds:
- 4
- Baths:
- 3
- Half baths:
- 1
- Garage spaces:
- 2
Plan features & finishes
- Garage/Parking:
- GarageAttached Garage
- Interior Features:
- Walk-In ClosetFoyerPantry
- Kitchen:
- Kitchen Island
- Laundry facilities:
- Utility/Laundry Room
- Property amenities:
- Lanai
- Rooms:
- Bonus RoomPrimary Bedroom On MainKitchenPowder RoomDining RoomFamily RoomOpen Concept FloorplanPrimary Bedroom Downstairs
- Upgrade Options:
- Gourmet KitchenSliding Glass DoorsAlternate Primary BathAlternate ShowerExtra BathroomExtra Bedroom

Get a consultation with our New Homes Expert
- See how your home builds wealth
- Plan your home-buying roadmap
- Discover hidden gems
See the full plan layout
Download the floor plan PDF with room dimensions and home design details.

Instant download, no cost

Community details
Avalon Woods
by Dream Finders Homes, Winter Garden, FL
- 16 homes
- 16 plans
- 1,772 - 4,024 sqft
View Avalon Woods details
Want to know more about what's around here?
The Anna Maria With Bonus - 50' Homesites floor plan is part of Avalon Woods, a new home community by Dream Finders Homes, located in Winter Garden, FL. Visit the Avalon Woods community page for full neighborhood insights, including nearby schools, shopping, walk & bike-scores, commuting, air quality & natural hazards.

Homes built from this plan
Available homes in Avalon Woods
- Home at address 15075 Tea Tree Dr, Winter Garden, FL 34787

Biscayne - 50' Homesites
SavingsAvalon Woods 50'
$829,347
- 4 bd
- 3 ba
- 3,038 sqft
15075 Tea Tree Dr, Winter Garden, FL 34787
- Home at address 5983 Flowering Cherry Bnd, Winter Garden, FL 34787

Tidewater
SavingsAvalon Woods 60'
$858,014
- 5 bd
- 3 ba
- 2,879 sqft
5983 Flowering Cherry Bnd, Winter Garden, FL 34787
- Home at address 5930 Flowering Cherry Bnd, Winter Garden, FL 34787

Davis
SavingsAvalon Woods 40'
$863,442
- 4 bd
- 2.5 ba
- 2,802 sqft
5930 Flowering Cherry Bnd, Winter Garden, FL 34787
- Home at address 5995 Flowering Cherry Bnd, Winter Garden, FL 34787

Arlington
SavingsAvalon Woods 60'
$871,085
- 4 bd
- 3 ba
- 2,726 sqft
5995 Flowering Cherry Bnd, Winter Garden, FL 34787
- Home at address 15160 Tea Tree Dr, Winter Garden, FL 34787

Arlington
SavingsAvalon Woods 60'
$879,805
- 4 bd
- 3 ba
- 2,726 sqft
15160 Tea Tree Dr, Winter Garden, FL 34787
- Home at address 15130 Tea Tree Dr, Winter Garden, FL 34787

Arlington
SavingsAvalon Woods 60'
$926,582
- 4 bd
- 3 ba
- 2,726 sqft
15130 Tea Tree Dr, Winter Garden, FL 34787
More floor plans in Avalon Woods
- View details for Carter - 40' Homesites

Carter - 40' Homesites
SavingsAvalon Woods 40'
$605,990+- 4 bd
- 3.5 ba
- 2,515 sqft
- View details for Anna Maria - 50' Homesites

Anna Maria - 50' Homesites
SavingsAvalon Woods 50'
$649,990+- 4 bd
- 2.5 ba
- 2,235 sqft

Considering this plan?
Our expert will guide your tour, in-person or virtual
Need more information?
Text or call (888) 545-5198
Financials
Estimated monthly payment
Let us help you find your dream home
How many bedrooms are you looking for?


































