








Book your tour. Save an average of $18,473. We'll handle the rest.
We collect exclusive builder offers, book your tours, and support you from start to housewarming.
- Confirmed tours
- Get matched & compare top deals
- Expert help, no pressure
- No added fees
Estimated value based on Jome data, T&C apply






































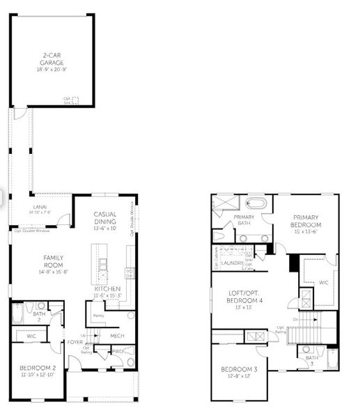
- 4 bd
- 3.5 ba
- 2,515 sqft
Carter - 19176 plan in Avalon Woods by Dream Finders Homes
Visit the community to experience this floor plan
Why tour with Jome?
- No pressure toursTour at your own pace with no sales pressure
- Expert guidanceGet insights from our home buying experts
- Exclusive accessSee homes and deals not available elsewhere
Jome is featured in
Plan description
May also be listed on the Dream Finders Homes website
Information last verified by Jome: Today at 5:01 AM (May 30, 2026)
Plan details
- Name:
- Carter - 19176
- Property type:
- Floor plan
- Community:
- Avalon Woods
- Builder:
- Dream Finders Homes
- Collection:
- Avalon Woods 40'
- Lot width (feet):
- 40
- Size:
- 2,515 sqft
- Stories:
- 2
- Beds:
- 4
- Baths:
- 3
- Half baths:
- 1
- Garage spaces:
- 2
Plan features & finishes
- Garage/Parking:
- GarageAttached Garage
- Interior Features:
- Walk-In ClosetFoyerPantryLoft
- Kitchen:
- Kitchen Island
- Laundry facilities:
- Laundry Facilities On Upper LevelUtility/Laundry Room
- Property amenities:
- Lanai
- Rooms:
- KitchenDining RoomFamily RoomOpen Concept FloorplanPrimary Bedroom Upstairs
- Upgrade Options:
- Gourmet KitchenSliding Glass DoorsAlternate ShowerExtra Bedroom

Get a consultation with our New Homes Expert
- See how your home builds wealth
- Plan your home-buying roadmap
- Discover hidden gems
See the full plan layout
Download the floor plan PDF with room dimensions and home design details.

Instant download, no cost

Community details
Avalon Woods
by Dream Finders Homes, Winter Garden, FL
- 12 homes
- 16 plans
- 1,772 - 4,024 sqft
View Avalon Woods details
Want to know more about what's around here?
The Carter - 19176 floor plan is part of Avalon Woods, a new home community by Dream Finders Homes, located in Winter Garden, FL. Visit the Avalon Woods community page for full neighborhood insights, including nearby schools, shopping, walk & bike-scores, commuting, air quality & natural hazards.

Homes built from this plan
Available homes in Avalon Woods
- Home at address 5978 Flowering Cherry Bnd, Winter Garden, FL 34787

Home
$681,240
- 4 bd
- 2.5 ba
- 2,802 sqft
5978 Flowering Cherry Bnd, Winter Garden, FL 34787
- Home at address 5954 Flowering Cherry Bnd, Winter Garden, FL 34787

Davis
Avalon Woods 40'
$707,995
- 4 bd
- 2.5 ba
- 2,802 sqft
5954 Flowering Cherry Bnd, Winter Garden, FL 34787
- Home at address 6351 Wild Persimmon Wy, Winter Garden, FL 34787

Davis
Avalon Woods 40'
$708,312
- 4 bd
- 2.5 ba
- 2,802 sqft
6351 Wild Persimmon Wy, Winter Garden, FL 34787
- Home at address 5983 Flowering Cherry Bnd, Winter Garden, FL 34787

Tidewater
Avalon Woods 60'
$870,513
- 4 bd
- 2.5 ba
- 2,752 sqft
5983 Flowering Cherry Bnd, Winter Garden, FL 34787
- Home at address 15160 Tea Tree Dr, Winter Garden, FL 34787

Arlington
Avalon Woods 60'
$879,805
- 4 bd
- 3 ba
- 2,726 sqft
15160 Tea Tree Dr, Winter Garden, FL 34787
- Home at address 5995 Flowering Cherry Bnd, Winter Garden, FL 34787

Arlington
Avalon Woods 60'
$886,085
- 4 bd
- 3 ba
- 2,726 sqft
5995 Flowering Cherry Bnd, Winter Garden, FL 34787
More floor plans in Avalon Woods

Considering this plan?
Our expert will guide your tour, in-person or virtual
Need more information?
Text or call (888) 545-5198
Financials
Estimated monthly payment
Let us help you find your dream home
How many bedrooms are you looking for?



































