





Book your tour. Save an average of $18,473. We'll handle the rest.
- Confirmed tours
- Get matched & compare top deals
- Expert help, no pressure
- No added fees
Estimated value based on Jome data, T&C apply
- 4 bd
- 3.5 ba
- 2,843 sqft
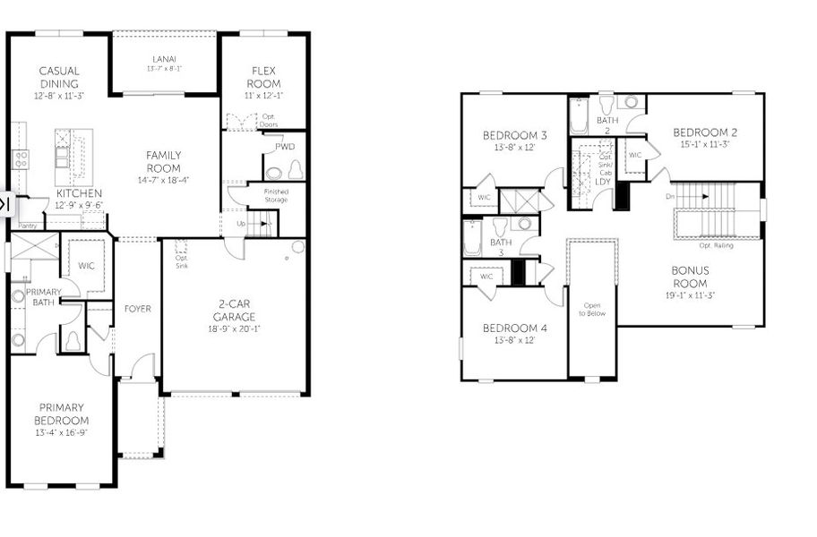
Captiva - 50' Homesites plan in Avalon Woods by Dream Finders Homes
Visit the community to experience this floor plan
Why tour with Jome?
- No pressure toursTour at your own pace with no sales pressure
- Expert guidanceGet insights from our home buying experts
- Exclusive accessSee homes and deals not available elsewhere
Jome is featured in
Plan description
May also be listed on the Dream Finders Homes website
Information last verified by Jome: Monday at 5:15 AM (November 10, 2025)
Plan highlights
Plan details
- Name:
- Captiva - 50' Homesites
- Property status:
- Floor plan
- Lot width (feet):
- 50
- Size:
- 2,843 sqft
- Stories:
- 2
- Beds:
- 4
- Baths:
- 3
- Half baths:
- 1
- Garage spaces:
- 2
Plan features & finishes
- Garage/Parking:
- GarageAttached Garage
- Interior Features:
- Walk-In ClosetFoyerPantry
- Laundry facilities:
- Utility/Laundry Room
- Property amenities:
- Lanai
- Rooms:
- Bonus RoomFlex RoomKitchenDining RoomFamily RoomOpen Concept FloorplanPrimary Bedroom Downstairs
- Upgrade Options:
- Gourmet KitchenSliding Glass DoorsExtra BathroomExtra Bedroom
See the full plan layout
Download the floor plan PDF with room dimensions and home design details.

Instant download, no cost

Community details
Avalon Woods
by Dream Finders Homes, Winter Garden, FL
- 13 homes
- 15 plans
- 1,772 - 4,024 sqft
View Avalon Woods details
Want to know more about what's around here?
The Captiva - 50' Homesites floor plan is part of Avalon Woods, a new home community by Dream Finders Homes, located in Winter Garden, FL. Visit the Avalon Woods community page for full neighborhood insights, including nearby schools, shopping, walk & bike-scores, commuting, air quality & natural hazards.

Available homes in Avalon Woods
More floor plans in Avalon Woods

Considering this plan?
Our expert will guide your tour, in-person or virtual
Need more information?
Text or call (888) 486-2818
Financials
Estimated monthly payment
Similar homes nearby
Recently added communities in this area
Nearby communities in Winter Garden
New homes in nearby cities
More New Homes in Winter Garden, FL
- Home
- New homes
- Florida
- Greater Orlando Area
- Orange County
- Winter Garden
- Avalon Woods
- Winter Garden, FL 34787









































