



Book your tour. Save an average of $18,473. We'll handle the rest.
We collect exclusive builder offers, book your tours, and support you from start to housewarming.
- Confirmed tours
- Get matched & compare top deals
- Expert help, no pressure
- No added fees
Estimated value based on Jome data, T&C apply


- 3 bd
- 2.5 ba
- 1,729 sqft
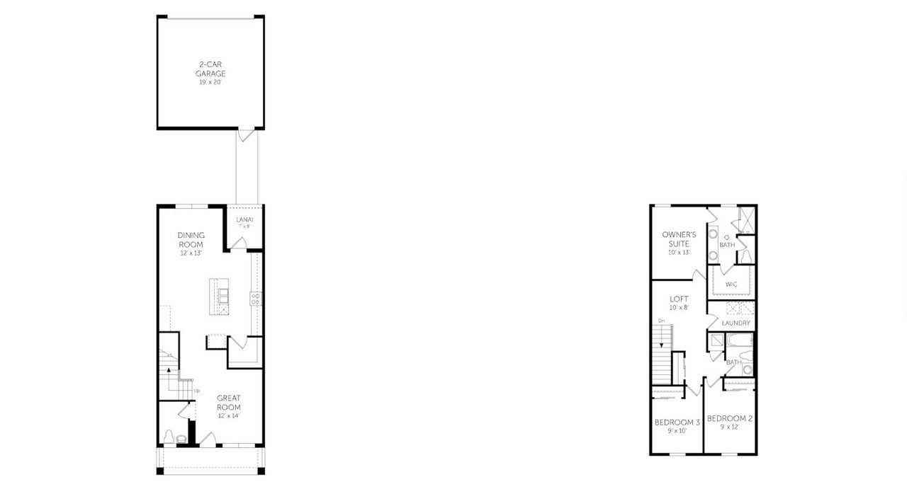
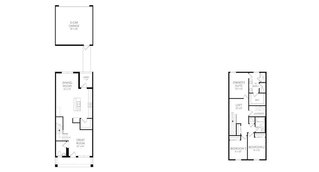
Sage - 19215 plan in Serenade at Ovation by Dream Finders Homes
Visit the community to experience this floor plan
Why tour with Jome?
- No pressure toursTour at your own pace with no sales pressure
- Expert guidanceGet insights from our home buying experts
- Exclusive accessSee homes and deals not available elsewhere
Jome is featured in
Plan description
May also be listed on the Dream Finders Homes website
Information last verified by Jome: Today at 5:04 AM (May 31, 2026)
Plan details
- Name:
- Sage - 19215
- Property type:
- Floor plan
- Community:
- Serenade at Ovation
- Builder:
- Dream Finders Homes
- Collection:
- Serenade at Ovation Townhomes
- Size:
- 1,729 sqft
- Stories:
- 2
- Beds:
- 3
- Baths:
- 2
- Half baths:
- 1
- Garage spaces:
- 2
Plan features & finishes
- Garage/Parking:
- Garage
- Interior Features:
- Walk-In ClosetFoyerPantryLoft
- Kitchen:
- Kitchen Island
- Laundry facilities:
- Utility/Laundry Room
- Property amenities:
- LanaiPorch
- Rooms:
- KitchenPowder RoomDining RoomFamily RoomLiving RoomOpen Concept FloorplanPrimary Bedroom Upstairs
- Upgrade Options:
- Shower

Get a consultation with our New Homes Expert
- See how your home builds wealth
- Plan your home-buying roadmap
- Discover hidden gems
See the full plan layout
Download the floor plan PDF with room dimensions and home design details.

Instant download, no cost

Community details
Serenade at Ovation at Ovation
by Dream Finders Homes, Oakland, FL
- 13 homes
- 12 plans
- 1,644 - 2,843 sqft
View Serenade at Ovation details
Want to know more about what's around here?
The Sage - 19215 floor plan is part of Serenade at Ovation, a new home community by Dream Finders Homes, located in Winter Garden, FL. Visit the Serenade at Ovation community page for full neighborhood insights, including nearby schools, shopping, walk & bike-scores, commuting, air quality & natural hazards.

Homes built from this plan
Available homes in Serenade at Ovation
- Home at address 13307 Peaceful Melody Dr, Winter Garden, FL 34787

Home
Savings$437,990
- 3 bd
- 2.5 ba
- 1,644 sqft
13307 Peaceful Melody Dr, Winter Garden, FL 34787
- Home at address 13295 Peaceful Melody Dr, Winter Garden, FL 34787

Home
Savings$439,990
- 3 bd
- 2.5 ba
- 1,715 sqft
13295 Peaceful Melody Dr, Winter Garden, FL 34787
- Home at address 13299 Peaceful Melody Dr, Winter Garden, FL 34787

Home
Savings$449,990
- 3 bd
- 2.5 ba
- 1,729 sqft
13299 Peaceful Melody Dr, Winter Garden, FL 34787
- Home at address 13013 Serene Glade Rd, Winter Garden, FL 34787

Brantley
SavingsSerenade at Ovation Bungalows
$559,989
- 3 bd
- 2.5 ba
- 1,836 sqft
13013 Serene Glade Rd, Winter Garden, FL 34787
- Home at address 13037 Serene Glade Rd, Winter Garden, FL 34787

Brantley
SavingsSerenade at Ovation Bungalows
$559,989
- 3 bd
- 2.5 ba
- 1,836 sqft
13037 Serene Glade Rd, Winter Garden, FL 34787
- Home at address 17119 Stillness Aly, Winter Garden, FL 34787

Brantley
SavingsSerenade at Ovation Bungalows
$572,386
- 3 bd
- 2.5 ba
- 1,836 sqft
17119 Stillness Aly, Winter Garden, FL 34787
More floor plans in Serenade at Ovation
- View details for Harbor - 19215

Harbor - 19215
SavingsSerenade at Ovation Townhomes
$401,990+- 3 bd
- 2.5 ba
- 1,644 sqft
- View details for Porter - 19215

Porter - 19215
SavingsSerenade at Ovation Townhomes
$409,990+- 3 bd
- 2.5 ba
- 1,715 sqft

Considering this plan?
Our expert will guide your tour, in-person or virtual
Need more information?
Text or call (888) 545-5198
Financials
Estimated monthly payment
Let us help you find your dream home
How many bedrooms are you looking for?
Similar homes nearby
Recently added communities in this area
Nearby communities in Winter Garden
New homes in nearby cities
More New Homes in Winter Garden, FL
- Jome
- New homes search
- Florida
- Greater Orlando Area
- Orange County
- Winter Garden
- Serenade at Ovation
- Serenade at Ovation Townhomes
- 14229 Lanyard Wy, Winter Garden, FL 34787
































