



- 4 bd
- 4.5 ba
- 1,727 sqft
4544 Community Ct, Plano, TX 75024
- Single-Family
- $298.15/sqft
- $1,600/annual HOA
- 0.03-acre lot
New Homes for Sale Near 4544 Community Ct, Plano, TX 75024
About this Home
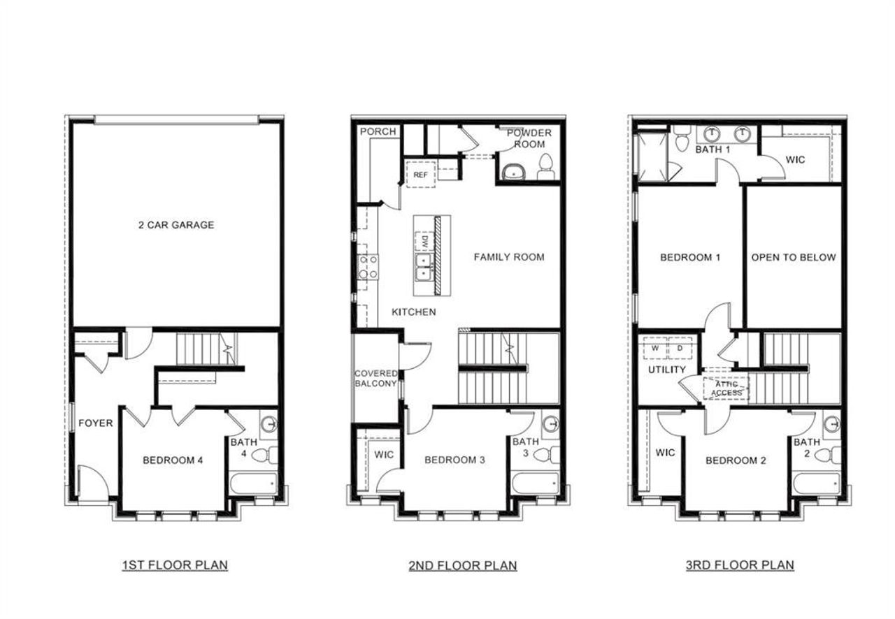
Welcome to the Mustang floorplan — a thoughtfully designed three-story home offering 1,727 square feet of modern living space. The first floor includes a private bedroom with full bath, perfect for guests or a home office, along with convenient garage access.On the second floor, enjoy open-concept living with a spacious kitchen featuring an oversized island with quartz countertops, soft-close shaker-style cabinetry, and a bright family room that opens to a covered balcony — perfect for entertaining or relaxing outdoors.The third floor features the private primary suite with walk-in closet and dual vanity bath, along with two additional bedrooms each with their own bath for ultimate comfort and privacy.This home includes a two-car garage, energy-efficient features, and contemporary finishes throughout.Disclaimer: Photos shown here are representational and may include options or upgrades not included in the standard community plan. Prices, plans, features, and co-broke are subject to change without notice. Additional restrictions may apply. Square footages are approximate.
Keller Williams Realty Lone St, MLS 21085803
May also be listed on the D.R. Horton website
Information last verified by Jome: Today at 1:16 AM (March 8, 2026)
Home details
- Property status:
- Sold
- Lot size (acres):
- 0.03
- Size:
- 1,727 sqft
- Beds:
- 4
- Baths:
- 4
- Half baths:
- 1
- Garage spaces:
- 2
Construction details
- Builder Name:
- D.R. Horton
- Year Built:
- 2025
Home features & finishes
- Garage/Parking:
- Door OpenerGarageAttached Garage
- Interior Features:
- Ceiling-VaultedWalk-In ClosetPantryLoftDouble Vanity
- Kitchen:
- DishwasherDisposalKitchen Island
- Property amenities:
- SidewalkAlleySmart Home System
- Rooms:
- KitchenOpen Concept Floorplan
Utility information
- Utilities:
- Electricity Available, Underground Utilities, Phone Available, City Water System, Cable Available, Individual Water Meter, Cable TV

Community details
Mustang Square
by D.R. Horton, Plano, TX
- 9 homes
- 6 plans
- 1,376 - 2,223 sqft
View Mustang Square details
More homes in Mustang Square
- Home at address 8825 Shoppers Ln, Plano, TX 75024

$516,990
Under construction- 4 bd
- 4 ba
- 1,727 sqft
8825 Shoppers Ln, Plano, TX 75024
- Home at address 8811 Shoppers Ln, Plano, TX 75024

$516,990
Under construction- 4 bd
- 4 ba
- 1,727 sqft
8811 Shoppers Ln, Plano, TX 75024
- Home at address 8829 Shoppers Ln, Plano, TX 75024

$525,990
Move-in ready- 4 bd
- 4 ba
- 1,727 sqft
8829 Shoppers Ln, Plano, TX 75024
- Home at address 8803 Shoppers Ln, Plano, TX 75024

$531,990
Under construction- 4 bd
- 4 ba
- 1,810 sqft
8803 Shoppers Ln, Plano, TX 75024
- Home at address 8809 Shoppers Ln, Plano, TX 75024

$535,990
Move-in ready- 4 bd
- 4 ba
- 1,810 sqft
8809 Shoppers Ln, Plano, TX 75024
- Home at address 8807 Shoppers Ln, Plano, TX 75024

$535,990
Move-in ready- 4 bd
- 4 ba
- 1,810 sqft
8807 Shoppers Ln, Plano, TX 75024
Floor plans in Mustang Square
About the builder - D.R. Horton

- 1,182communities on Jome
- 10,253homes on Jome
Neighborhood
Home address
Schools in Frisco Independent School District
GreatSchools’ Summary Rating calculation is based on 4 of the school’s themed ratings, including test scores, student/academic progress, college readiness, and equity. This information should only be used as a reference. Jome is not affiliated with GreatSchools and does not endorse or guarantee this information. Please reach out to schools directly to verify all information and enrollment eligibility. Data provided by GreatSchools.org © 2025
Places of interest
Getting around
Air quality
Noise level
A Soundscore™ rating is a number between 50 (very loud) and 100 (very quiet) that tells you how loud a location is due to environmental noise.
Financials
Nearby communities in Plano
Homes in Plano Neighborhoods
Homes in Plano by D.R. Horton
Recently added communities in this area
Other Builders in Plano, TX
Nearby sold homes
New homes in nearby cities
More New Homes in Plano, TX
Keller Williams Realty Lone St, MLS 21085803
IDX information is provided exclusively for personal, non-commercial use, and may not be used for any purpose other than to identify prospective properties consumers may be interested in purchasing. You may not reproduce or redistribute this data, it is for viewing purposes only. This data is deemed reliable, but is not guaranteed accurate by the MLS or NTREIS.
Read moreLast checked Mar 8, 4:00 am
- Jome
- New homes search
- Texas
- Dallas-Fort Worth Area
- Collin County
- Plano
- Mustang Square
- 4544 Community Ct, Plano, TX 75024






















































