




































- 5 bd
- 3 ba
- 2,683 sqft
1232 Unity Vlg, Lucas, TX 75098
- Single-Family
- $232.27/sqft
- $870/semi-annual HOA
- 0.15-acre lot
New Homes for Sale Near 1232 Unity Vlg, Lucas, TX 75098
About this Home
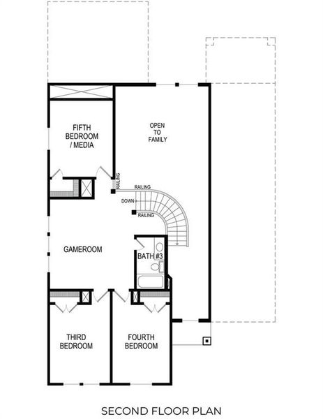
MLS# 21077614 - Built by First Texas Homes - Ready Now! ~ The Caroline 2F offers 5 bedrooms, 3 bathrooms, and 2683 sq. ft. of thoughtfully designed living space that adapts to your needs. From everyday routines to special moments, this layout is built to support how you live — with comfort, functionality, and style in mind. Features like a flexible layout with dedicated flex and dining rooms, a spacious gourmet kitchen with butler’s pantry, and a covered patio—perfect for outdoor living create a flexible foundation for personalization and convenience. Whether you're relaxing, hosting, working from home, or simply enjoying daily life, the Caroline 2F provides the right spaces in the right places. Some of the upgrades this home offers are Faux Blinds, a Painted Island, The fireplace wall has Stunning floor to ceiling tile, Beautiful Luxury Vinyl Plank in family room and raised ceilings. Available in select First Texas Homes communities across DFW, this plan can be tailored with a variety of structural options and design finishes. Explore the Caroline 2F today and discover how First Texas Homes makes it easy to create a home that feels truly yours.
HomesUSA.com, MLS 21077614
May also be listed on the First Texas Homes website
Information last verified by Jome: Today at 1:34 AM (May 30, 2026)
Home details
- Property status:
- Sold
- Lot size (acres):
- 0.15
- Size:
- 2,683 sqft
- Stories:
- 2
- Beds:
- 5
- Baths:
- 3
- Garage spaces:
- 2
- Fence:
- Wood Fence

Floor plan details
Princeton 2F-EW
- 5 bd
- 3.5 ba
- 3,502 sqft
View Princeton 2F-EW details
Construction details
- Builder Name:
- First Texas Homes
- Year Built:
- 2025
- Roof:
- Composition Roofing
Home features & finishes
- Construction Materials:
- CementBrick
- Cooling:
- Central Air
- Flooring:
- Carpet Flooring
- Foundation Details:
- Slab
- Garage/Parking:
- GarageMulti-Door GarageAttached Garage
- Home amenities:
- Green Construction
- Interior Features:
- Ceiling-VaultedWalk-In ClosetFoyerPantry
- Kitchen:
- DishwasherDisposalGranite countertopKitchen Island
- Laundry facilities:
- DryerWasherStackable Washer/DryerUtility/Laundry Room
- Property amenities:
- SidewalkBackyardElectric FireplacePatioSmart Home SystemPorch
- Rooms:
- Flex RoomPrimary Bedroom On MainKitchenGame RoomMedia RoomOffice/StudyDining RoomFamily RoomBreakfast AreaPrimary Bedroom Downstairs
- Security system:
- Smoke DetectorCarbon Monoxide Detector
Utility information
- Heating:
- Central Heating, Gas Heating
- Utilities:
- Underground Utilities, City Water System, Individual Water Meter, Individual Gas Meter, High Speed Internet Access, Cable TV, Curbs

Community details
Inspiration at Inspiration
by First Texas Homes, Lucas, TX
- 6 homes
- 14 plans
- 1,817 - 3,744 sqft
View Inspiration details
Community amenities
- Playground
- Club House
- Greenbelt View
More homes in Inspiration
- Home at address 813 Golden Galaxy Wy, Lucas, TX 75098

$704,751
Move-in ready- 5 bd
- 4 ba
- 3,497 sqft
813 Golden Galaxy Wy, Lucas, TX 75098
- Home at address 1022 Stellar Truth Wy, Lucas, TX 75098

$711,599
Move-in ready- 5 bd
- 4 ba
- 3,502 sqft
1022 Stellar Truth Wy, Lucas, TX 75098
- Home at address 933 Salvation Dr, Lucas, TX 75098

$722,722
Move-in ready- 5 bd
- 4 ba
- 3,535 sqft
933 Salvation Dr, Lucas, TX 75098
- Home at address 1203 Pearly Wy, Lucas, TX 75098

$733,145
Under construction- 6 bd
- 4 ba
- 3,533 sqft
1203 Pearly Wy, Lucas, TX 75098
Floor plans in Inspiration
About the builder - First Texas Homes
Neighborhood
Home address
Schools in Wylie Independent School District
GreatSchools’ Summary Rating calculation is based on 4 of the school’s themed ratings, including test scores, student/academic progress, college readiness, and equity. This information should only be used as a reference. Jome is not affiliated with GreatSchools and does not endorse or guarantee this information. Please reach out to schools directly to verify all information and enrollment eligibility. Data provided by GreatSchools.org © 2025
Places of interest
Getting around
Air quality
Noise level
A Soundscore™ rating is a number between 50 (very loud) and 100 (very quiet) that tells you how loud a location is due to environmental noise.
Financials
Nearby communities in Lucas
Homes in Lucas by First Texas Homes
Recently added communities in this area
Other Builders in Lucas, TX
Nearby sold homes
New homes in nearby cities
More New Homes in Lucas, TX
HomesUSA.com, MLS 21077614
IDX information is provided exclusively for personal, non-commercial use, and may not be used for any purpose other than to identify prospective properties consumers may be interested in purchasing. You may not reproduce or redistribute this data, it is for viewing purposes only. This data is deemed reliable, but is not guaranteed accurate by the MLS or NTREIS.
Read moreLast checked May 30, 10:00 pm
- Jome
- New homes search
- Texas
- Dallas-Fort Worth Area
- Collin County
- Lucas
- Inspiration
- 1232 Unity Vlg, Lucas, TX 75098
























































