



- 5 bd
- 3.5 ba
- 2,618 sqft
7754 Vista View Ln, Knoxville, TN 37924
- Single-Family
- $142.66/sqft
- 98 days on Jome
New Homes for Sale Near 7754 Vista View Ln, Knoxville, TN 37924
About this Home
About this home
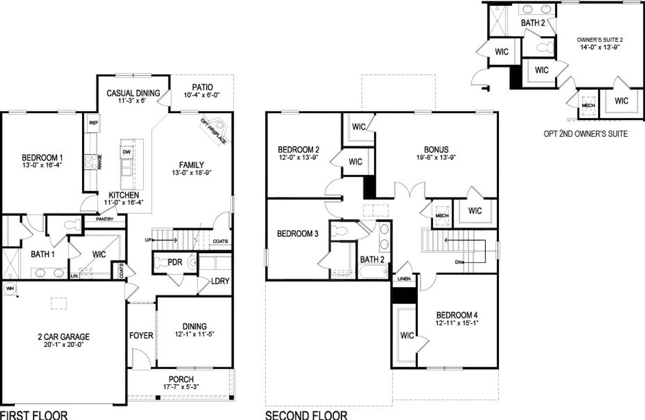
Welcome to the Salem, one of our more popular floorplans. The main floor features a formal dining, laundry, and powder room. The kitchen and living areas are open concept. The kitchen also features a breakfast nook, pantry, and an island with countertop seating. The breakfast nook overlooks a patio. This space is perfect for entertaining. Additionally, the primary bedroom is on the main floor. It features a walk-in closet and a private bathroom. Upstairs are three additional bedrooms with walk-in closets and a second full bathroom. There is also an additional owner's suite on the upper lever.
May also be listed on the D.R. Horton website
Information last verified by Jome: Friday at 2:18 AM (October 31, 2025)
Home details
- Property status:
- Sold
- Size:
- 2,618 sqft
- Stories:
- 2
- Beds:
- 5
- Baths:
- 3.5
- Garage spaces:
- 2
Construction details
- Builder Name:
- D.R. Horton
Home features & finishes
- Garage/Parking:
- Garage

Community details
The Ridge at Neals Landing
by D.R. Horton, Knoxville, TN
- 5 homes
- 9 plans
- 1,618 - 3,110 sqft
View The Ridge at Neals Landing details
More homes in The Ridge at Neals Landing
- Home at address 2431 Limelight Ln, Knoxville, TN 37924

$328,900
Move-in ready- 3 bd
- 2.5 ba
- 1,645 sqft
2431 Limelight Ln, Knoxville, TN 37924
- Home at address 2440 Limelight Ln, Knoxville, TN 37924

$328,900
Move-in ready- 3 bd
- 2.5 ba
- 1,645 sqft
2440 Limelight Ln, Knoxville, TN 37924
- Home at address 2432 Limelight Ln, Knoxville, TN 37924

$328,900
Move-in ready- 3 bd
- 2.5 ba
- 1,645 sqft
2432 Limelight Ln, Knoxville, TN 37924
- Home at address 2456 Limelight Ln, Knoxville, TN 37924

$339,705
Move-in ready- 4 bd
- 2 ba
- 1,764 sqft
2456 Limelight Ln, Knoxville, TN 37924
- Home at address 7731 Vista View Ln, Knoxville, TN 37924

$401,405
Move-in ready- 4 bd
- 3.5 ba
- 3,110 sqft
7731 Vista View Ln, Knoxville, TN 37924
Floor plans in The Ridge at Neals Landing
About the builder - D.R. Horton

- 1,200communities on Jome
- 9,446homes on Jome
Neighborhood
Home address
Schools in Knox County School District
GreatSchools’ Summary Rating calculation is based on 4 of the school’s themed ratings, including test scores, student/academic progress, college readiness, and equity. This information should only be used as a reference. Jome is not affiliated with GreatSchools and does not endorse or guarantee this information. Please reach out to schools directly to verify all information and enrollment eligibility. Data provided by GreatSchools.org © 2025
Places of interest
Getting around
Air quality
Noise level
A Soundscore™ rating is a number between 50 (very loud) and 100 (very quiet) that tells you how loud a location is due to environmental noise.
Financials
Nearby communities in Knoxville
Homes in Knoxville by D.R. Horton
Recently added communities in this area
Other Builders in Knoxville, TN
Nearby sold homes
New homes in nearby cities
More New Homes in Knoxville, TN
- Jome
- New homes search
- Tennessee
- Chattanooga-Knoxville Area
- Knox County
- Knoxville
- The Ridge at Neals Landing
- 7754 Vista View Ln, Knoxville, TN 37924


















































