



- 5 bd
- 3 ba
- 2,511 sqft
7774 Vista View Ln, Knoxville, TN 37924
- Single-Family
- $145.32/sqft
- 142 days on Jome
New Homes for Sale Near 7774 Vista View Ln, Knoxville, TN 37924
About this Home
About this home
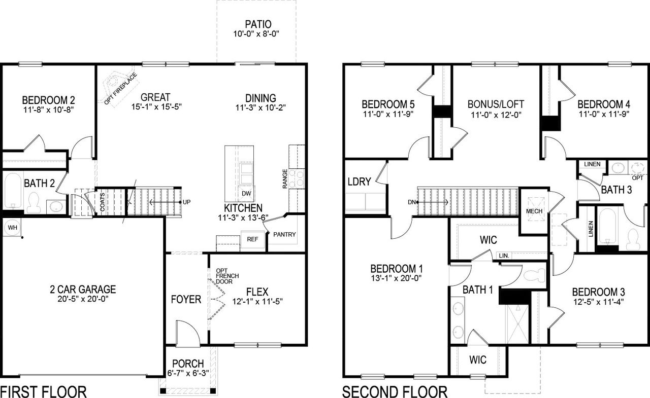
Welcome to the Hayden floor plan. This amazing home features 5 bedrooms and 3 bathrooms optimizing living space with an open concept design. The eat-in kitchen overlooks the living area, while having a view to the outdoor patio. The kitchen features an island with bar seating and plentiful cabinets and counter space. The first floor also features a flex room that could be used as a formal dining room or office, as well as a bedroom and full bathroom. As you head up to the second floor, you are greeted with the primary bedroom that features an ensuite bathroom as well as three additional bedrooms that surround a second living area, a full bathroom, and a laundry area. The Hayden plan is a stunning home that utilizes space. Make it your next home by scheduling an appointment with a New Home Specialist today.
May also be listed on the D.R. Horton website
Information last verified by Jome: Wednesday at 2:10 AM (November 19, 2025)
Home details
- Property status:
- Sold
- Size:
- 2,511 sqft
- Stories:
- 2
- Beds:
- 5
- Baths:
- 3
- Garage spaces:
- 2
Construction details
- Builder Name:
- D.R. Horton
Home features & finishes
- Garage/Parking:
- Garage

Community details
The Ridge at Neals Landing
by D.R. Horton, Knoxville, TN
- 7 homes
- 9 plans
- 1,618 - 3,110 sqft
View The Ridge at Neals Landing details
More homes in The Ridge at Neals Landing
- Home at address 7742 Vista View Ln, Knoxville, TN 37924

$330,900
Move-in ready- 3 bd
- 2.5 ba
- 1,645 sqft
7742 Vista View Ln, Knoxville, TN 37924
- Home at address 7738 Vista View Ln, Knoxville, TN 37924

$330,900
Move-in ready- 3 bd
- 2.5 ba
- 1,645 sqft
7738 Vista View Ln, Knoxville, TN 37924
- Home at address 7779 Vista View Ln, Knoxville, TN 37924

$330,900
Move-in ready- 3 bd
- 2.5 ba
- 1,645 sqft
7779 Vista View Ln, Knoxville, TN 37924
- Home at address 7778 Vista View Ln, Knoxville, TN 37924

$349,825
Move-in ready- 4 bd
- 2.5 ba
- 1,991 sqft
7778 Vista View Ln, Knoxville, TN 37924
- Home at address 7726 Vista View Ln, Knoxville, TN 37924

$357,825
Move-in ready- 3 bd
- 2.5 ba
- 2,164 sqft
7726 Vista View Ln, Knoxville, TN 37924
- Home at address 7775 Vista View Ln, Knoxville, TN 37924

$357,825
Move-in ready- 3 bd
- 2.5 ba
- 2,164 sqft
7775 Vista View Ln, Knoxville, TN 37924
Floor plans in The Ridge at Neals Landing
About the builder - D.R. Horton

- 1,164communities on Jome
- 10,478homes on Jome
Neighborhood
Home address
Schools in Knox County School District
GreatSchools’ Summary Rating calculation is based on 4 of the school’s themed ratings, including test scores, student/academic progress, college readiness, and equity. This information should only be used as a reference. Jome is not affiliated with GreatSchools and does not endorse or guarantee this information. Please reach out to schools directly to verify all information and enrollment eligibility. Data provided by GreatSchools.org © 2025
Places of interest
Getting around
Air quality
Noise level
A Soundscore™ rating is a number between 50 (very loud) and 100 (very quiet) that tells you how loud a location is due to environmental noise.
Financials
Nearby communities in Knoxville
Homes in Knoxville by D.R. Horton
Recently added communities in this area
Other Builders in Knoxville, TN
Nearby sold homes
New homes in nearby cities
More New Homes in Knoxville, TN
- Jome
- New homes search
- Tennessee
- Chattanooga-Knoxville Area
- Knox County
- Knoxville
- The Ridge at Neals Landing
- 7774 Vista View Ln, Knoxville, TN 37924





















































